ISTRA, POREČ - Kuća na traženoj lokaciji
Poreč
505.000€
4 243 €/m2
Tip
Kuća
Površina
119 m2
Struktura
5+
Detalji
- Tip
- Kuća
- Struktura
- 5+
- Cijena
- 505.000€
- Površina
- 119 m2 (4 243 €/m2)
- Površina zemljišta
- 200
- Grijanje
- Podno grijanje
- Terasa
- Da
- Udaljenost od mora
- 1000m
- Parkirno mjesto
- Da
- Ažuriran
- 22.04.2026
- ID
- 48897
Opis
ISTRA, POREČ - Kuća na traženoj lokaciji
Grad Poreč, jedan od najljepših bisera Jadranskog mora, smjestio se na zapadnoj obali Istre. Na relativno malom poluotočnom prostoru na kojemu je grad iznikao i danas su jasno vidljivi tragovi susreta slavenskog, romanskog i germanskog svijeta, koji ujedno svjedoče o mnogobrojnosti promjena – političkih, društvenih i etničkih – što ih je ovaj istarski gradić doživio u povijesti. Povijest Poreča povijest je stalnih promjena, kretanja i previranja, nestalnosti naroda, uzleta i padova, u kojoj se kao konstanta javlja povijest novih početaka. Ovaj grad neprestano otkriva tragove života mnogih civilizacija i kultura koje su izgradile njegov urbani i povijesni identitet.
Na samo 10 minuta hoda od prelijepih plaža smjestila se ova moderna kuća sa bazenom.
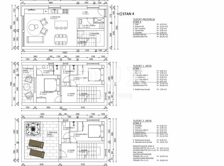
Njezina netto površina iznosi 119.34m2 raspoređenih na 3 etaže.
U prizemlju se nalazi prostrani dnevni boravak, blagovaonica i kuhinja u open space konceptu s neometanim pogledom, jedan wc, praonica, spremište i izlaz na terasu s sunčalištem i bazenom, savršenim za opuštanje i uživanje. Na prvom katu su dvije spavaće sobe, svaka s vlastitom kupaonicom, pri čemu jedna soba ima izlaz na natkrivenu terasu od 6,34 m2, idealnu za večernje opuštanje uz romantične zalaske sunca.
Na drugom katu se nalazi još jedna glavna spavaća soba s vlastitom kupaonicom i izlazom na prostranu terasu na kojoj se nalazi jacuzzi te prekrasan i direktan pogled na mo
Kontakt info
- Agencija
-
DUX NEKRETNINE
- Kontakt osoba
- Dux Nekretnine
- Telefon 1
- + 385 51 518... Prikaži broj
- Telefon 2
- + 385 91 480 ... Prikaži broj
- Adresa
- Tizianova 8
- Rijeka, Hrvatska
Slične nekretnine
POREČ, KUĆA U NIZU S POGLEDOM NA MORE
- 505.000€ 169 m2
Poreč, moderna kuća sa pogledom na more
- 505.000€ 125 m2
Istra, Poreč: Moderna kuća s pogledom na more na prodaju
- 505.000€ 125 m2
Poreč, moderna kuća u nizu sa pogledom na more
- 505.000€ 168 m2
Poreč - vrhunska villa s pogledom na more!
- 504.000€ 140 m2
Poreč, okolica, potpuno opremljena prizemnica u mirnom mjestu
- 510.000€ 102 m2
Poreč, okolica, autohtona kuća s pogledom na more!
- 500.000€ 176 m2
Poreč, okolica, istarska kamena kuća u mirnom mjestu!
- 500.000€ 247 m2
Istra, Poreč, okolica, moderna novogradnja s bazenom!
- 499.999€ 137 m2
Istra, Poreč, okolica, moderna novogradnja s bazenom!
- 499.999€ 137 m2
ISTRA, POREČ - Kuća s pogledom na more
- 499.000€ 180 m2
DVOJNA KUĆA NEDALEKO POREČA
- 499.000€ 138 m2