Hrvatska, Pag, Povljana, Luksuzni apartmani, 56.92 m2, Prvi red do mora, S3

Povljana

307.000€

5 482 €/m2

Tip

Stan

Površina

56 m2

Struktura

1.5

Detalji

Tip
Stan
Struktura
1.5
Cijena
307.000€
Površina
56 m2 (5 482 €/m2)
Ažuriran
24.10.2025
ID
92379

Opis

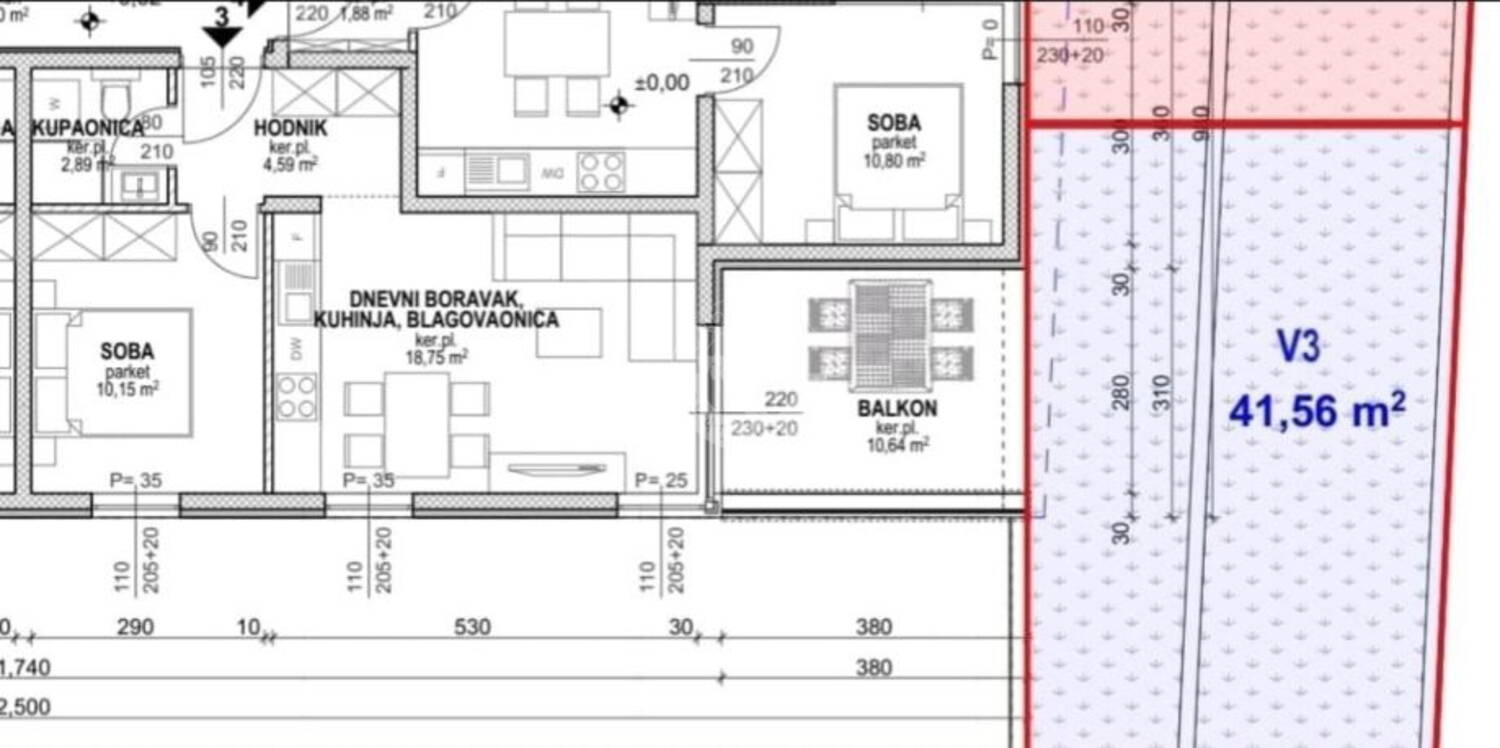
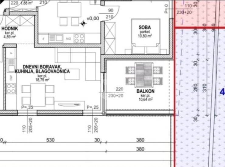
OTOK PAG-POVLJANA-LUKSUZNI APARTMANI Prodaje se dvosoban stan sa vrtom u novogradnji.

Stan se sastoji od:

ulaznog hodnika:4,59m2

kupaonice:2,89m2

spavaće sobe1:10,15m2

dnevnog boravka/blagovaone/kuhinje:18,75m2

terase:10,64m2

vrta 41,56m2 x 0.2 = 8,3m2

spremišta:2.13m2×0.75=1.6m2

_________________________

UKUPNO:56,92m2

Uz stan je obavezna kupnja vanjskog ili garažnog parkirnog mjesta.

Vanjsko parkirno mjesto:18.000€

Garažno parkirno mjesto:35.000€

O PROJEKTU:

Početak gradnje listopad 2025g. a završetak gradnje prosinac 2026g.

Građevina stambene namjene s 12 stambenih jedinica.

Predviđene su stambene jedinice sa jednom spavaćom sobom, dvije ili tri.

Vizija je izgraditi objekt koji se odmiče od konkurencije i konfekcije, upravo sa svojim izgledom, sadržajima, kvalitetom izgradnje te posebice opremanjem stanova, zajedničkih dijelova i sveobuhvatne završne obrade.

Objekt je interpoliran u smjeru juga sa pogledom na more sa svake etaže.

Predviđena je izgradnja po svim zadnjim trendovima u graditeljstvu, upotrebom materijala isključivo vrhunske kvalitete.

To se također odnosi na opremanje stambenih jedinica gdje se ugrađuju isključivo prvoklasni parketi, vanjska i unutarnja stolarija, sanitarija, keramika.

Zgrada ima lift.

SIGURNOST i GARANCIJA:

stabilni investitor, građevinska tvrtka s referencama u gradnji, dugi niz godina na tržištu nekretnina, daljnji projekti u izgradn

Kontakt info

Cro Living
Agencija
CRO LIVING
Kontakt osoba
Marija Božić
Telefon 1
+ 385 91 617 ... Prikaži broj
Adresa
Jurišićeva ul. 19/1
Zagreb, Hrvatska

Kontakt forma