OTOK PAG, POVLJANA - PRILIKA! Novoizgrađeni apartman uz more!
Povljana
280.000€
4 242 €/m2
Tip
Stan
Površina
66 m2
Struktura
3
Detalji
- Tip
- Stan
- Struktura
- 3
- Cijena
- 280.000€
- Površina
- 66 m2 (4 242 €/m2)
- Kat
- 1
- Grijanje
- Podno grijanje/Dizalica topline
- Terasa
- Da
- Udaljenost od mora
- 300m
- Parkirno mjesto
- Da
- Ažuriran
- 20.04.2026
- ID
- 103394
Opis
OTOK PAG, POVLJANA - PRILIKA! Novoizgrađeni apartman uz more!
ATRAKTIVNA NOVOGRADNJA – 300 m od mora, Povljana (otok Pag)
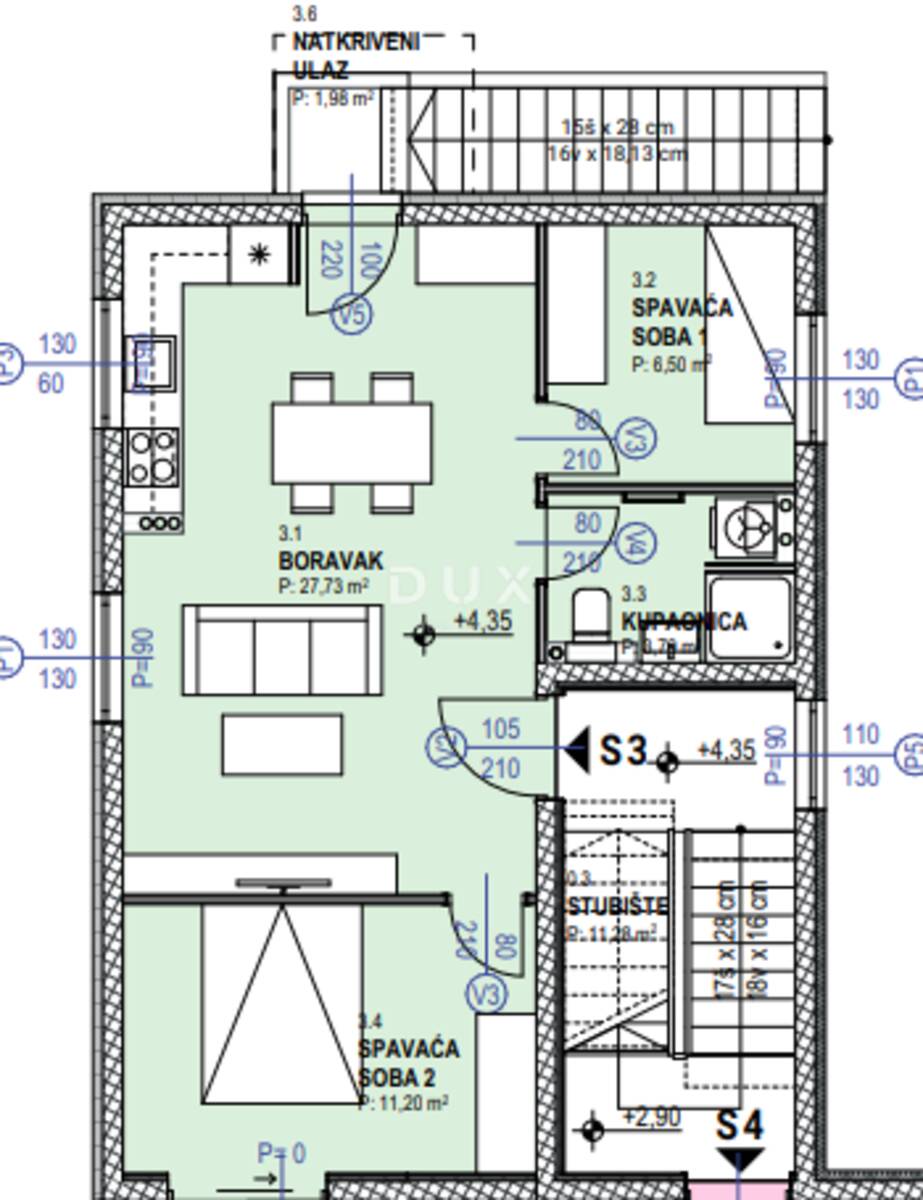
Prodaje se moderan stan oznake "Stan S3", smješten u prizemlju ekskluzivne novogradnje u mirnom i sunčanom dijelu Povljane. Ova nekretnina predstavlja savršen spoj funkcionalnosti i mediteranskog stila života.
Osnovne karakteristike:
Površina stana: 66,08 m² (maksimalno iskorišten tlocrt)
Terasa: 33,37 – idealna za uživanje u ljetnim večerima.
Parking: Vlastito parkirno mjesto (12,62 m²) uključeno u cijenu.
Lokacija: Mirna ulica, svega 300 metara lagane šetnje do kristalno čistog mora.
Raspored prostorija:
Unutrašnjost stana osmišljena je moderno i prozračno:
Open-concept dnevni boravak s kuhinjom i blagovaonicom (27,73 m²)
Udobna spavaća soba (6,50 + 11,20 m²)
Kupaonica (3,79 m²)
Zašto odabrati Povljanu i otok Pag?
Povljana je smještena na južnom dijelu otoka Paga i pravi je dragulj za one koji traže mir, čisto more i netaknutu prirodu. Mjesto nudi sve sadržaje potrebne za život i turizam – od izvrsnih restorana i trgovina do uređenih šetnica.
Vrhunska povezanost:
Cestovni pristup: Paški most omogućuje brz dolazak automobilom u bilo koje doba godine.
Zračna povezanost: Zračna luka Zadar udaljena je svega sat vremena vožnje.
Nautičke linije: Trajektna linija Žigljen–Prizna te brze brodske linije prema Rijeci, Rabu i Lošinju.
Investicijski potencijal: Zbog svoje lokacije i kvalitete gradnje, sta
Kontakt info
- Agencija
-
DUX NEKRETNINE
- Kontakt osoba
- Dux Nekretnine
- Telefon 1
- + 385 51 518... Prikaži broj
- Telefon 2
- + 385 91 480 ... Prikaži broj
- Adresa
- Tizianova 8
- Rijeka, Hrvatska
Slične nekretnine
OTOK PAG, POVLJANA - Apartman s vrtom 100 m od mora!
- 285.000€ 89 m2
Povljana - prodaja stana u novogradnji, 100 m od mora!
- 285.000€ 70 m2
PAG, POVLJANA - PRILIKA! Novogradnja 200m od plaže! S1
- 271.580€ 73 m2
OTOK PAG, POVLJANA - Dvosoban stan s vrtom, 250 m od mora
- 271.580€ 73 m2
PAG, POVLJANA - PRILIKA! Novogradnja 200m od plaže! S3
- 293.854€ 79 m2
OTOK PAG, POVLJANA - Dvoetažni stan s pogledom na more
- 265.965€ 71 m2
OTOK PAG, POVLJANA - Dvosobni stan s vrtom u novogradnji
- 265.280€ 82 m2
OTOK PAG, POVLJANA - Dvosoban stan 250 m od mora
- 254.708€ 69 m2
PAG, POVLJANA - PRILIKA! Novogradnja 200m od plaže! S6
- 253.709€ 68 m2
PAG, POVLJANA - Stan u blizini mora, S5
- 306.450€ 85 m2