PRIVLAKA, ZADAR - S2 PRILIKA! Useljivi stanovi novogradnja
Privlaka
325.000€
3 457 €/m2
Tip
Stan
Površina
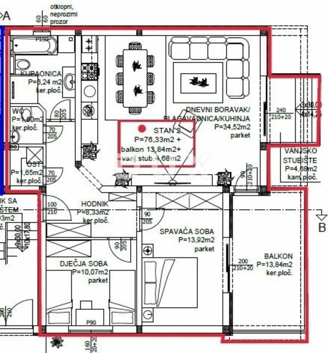
94 m2
Struktura
3
Detalji
- Tip
- Stan
- Struktura
- 3
- Cijena
- 325.000€
- Površina
- 94 m2 (3 457 €/m2)
- Kat
- Prizemlje
- Grijanje
- Podno grijanje/Dizalica topline
- Parkirno mjesto
- Da
- Ažuriran
- 17.11.2025
- ID
- 64653
Opis
PRIVLAKA, ZADAR - S2 PRILIKA! Useljivi stanovi novogradnja
Predstavljamo vam novoizgrađeni stan u Privlaci pored Zadra. Stan se sastoji od predsoblja, dnevnog prostora s kuhinjom i blagovaonicom, ostave, dvije spavaće sobe, kupaonice, wc-a, balkona, vrta i jednog parkirnog mjesta s priključkom za električni automobil. Svi stanovi u zgradi su izgrađeni od visokokvalitetnih materijala.
Projekt dvije stambene zgrade s ukupno 11 stambenih jedinica, raspoređenih na ukupno 3 etaže nalazi se u centra mjesta i u blizini svih sadržaja koji su potrebni za upotpunjen boravak ili odmor.
Opremljenost:
- klima uređaji u svim prostorijama
- podno grijanje preko cijelog apartmana preko dizalica topline (manja potrošnja energije)
- PVC stolarija s roletama na električni pogon
- protuprovalna i protupožarna ulazna vrata
- podne obloge: keramičke pločice
- parkirna mjesta imaju vlastiti priključak za struju i vodu
- fasada d= 10cm stiropor
Privlaka je smještena na prostranom pješčanom poluotoku, u blizini Zadra i kraljevskog Nina, od Nina je udaljena 2 km od grada Zadra 18km, nacionalni park Paklenica je udaljen 30km a Park prirode Velebit 50km. Zračna luka kao i trajekntna je udaljena 30 km.
Mjesto Privlaka nudi sve potrebno za život; crkva, škola, pošta,banka,vrtić, restorani, ljekarna,trgovine te javni prijevoz.
Uz to, zbog svoga plitkog mora sezona kupanja je u ovom mjestu duža negoli na većini drugih odredišta na Jad
Kontakt info
- Agencija
-
DUX NEKRETNINE
- Kontakt osoba
- Dux Nekretnine
- Telefon 1
- + 385 51 518... Prikaži broj
- Telefon 2
- + 385 91 480 ... Prikaži broj
- Adresa
- Tizianova 8
- Rijeka, Hrvatska
Slične nekretnine
PRIVLAKA, ZADAR - S2 PRILIKA! Useljivi stanovi novogradnja
- 325.000€ 94 m2
PRIVLAKA, ZADAR - S1 PRILIKA! Useljivi stanovi novogradnja
- 325.000€ 80 m2
PRIVLAKA, ZADAR - S6 PRILIKA! Useljivi stanovi novogradnja
- 320.000€ 98 m2
PRIVLAKA, ZADAR - S4 PRILIKA! Useljivi stanovi novogradnja
- 320.000€ 98 m2
PRIVLAKA, ZADAR - S3 PRILIKA! Useljivi stanovi novogradnja
- 320.000€ 100 m2
PRIVLAKA, ZADAR - S5 PRILIKA! Useljivi stanovi novogradnja
- 320.000€ 98 m2