ZADAR, PRIVLAKA- Troetažni stan s pogledom na more- Novogradnja!
Privlaka
250.000€
2 272 €/m2
Tip
Stan
Površina
110 m2
Struktura
3
Detalji
- Tip
- Stan
- Struktura
- 3
- Cijena
- 250.000€
- Površina
- 110 m2 (2 272 €/m2)
- Kat
- 1
- Grijanje
- Sustav grijanja, klimatizacije i ventilacije
- Terasa
- Da
- Udaljenost od mora
- 800m
- Parkirno mjesto
- Da
- Ažuriran
- 28.12.2025
- ID
- 98451
Opis
ZADAR, PRIVLAKA- Troetažni stan s pogledom na more- Novogradnja!
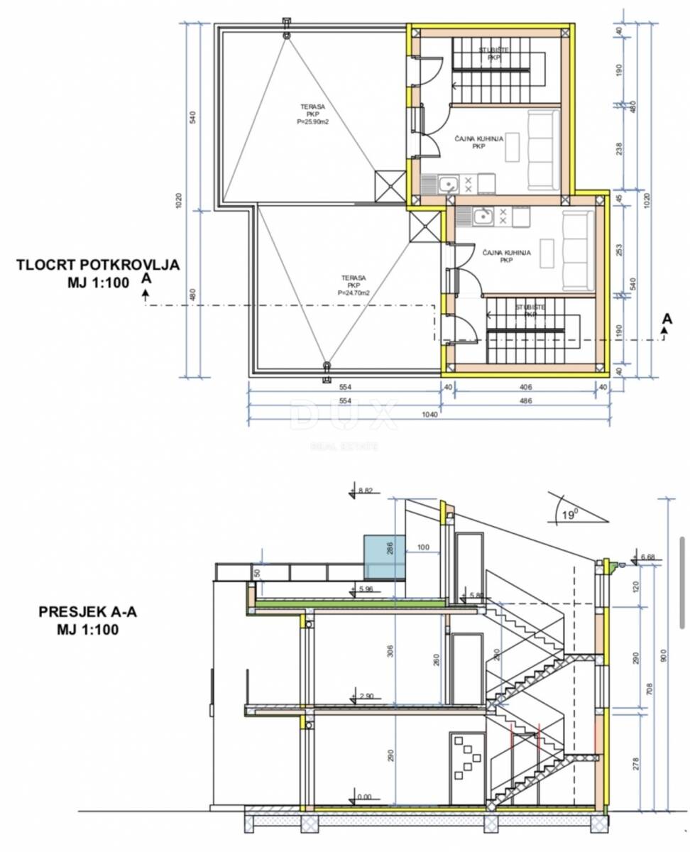
Prodaje se moderan troetažni stan u izgradnji u Privlaci kraj Zadra, ukupne površine oko 110 m², smješten u manjoj stambenoj zgradi s ukupno dva stana. Stan ima lijep pogled na more i nalazi se na mirnoj lokaciji, idealnoj za stanovanje, odmor ili turističko iznajmljivanje.
U prizemlju stana nalazi se prostrani dnevni boravak s kuhinjom i blagovaonicom, kupaonica te izlaz na terasu. Na katu su smještene dvije spavaće sobe, kupaonica i lođa. U potkrovlju se nalazi čajna kuhinja te velika terasa površine 25 m².
Udaljenost do mora iznosi približno 800 metara, dok su svi važni sadržaji poput trgovina, kafića, restorana i centra mjesta dostupni unutar jednog kilometra. Pješčane plaže nalaze se na udaljenosti od 1 do 1,5 kilometara, centar kraljevskog grada Nina udaljen je svega 1,5 kilometara, dok je grad Zadar udaljen 17 kilometara.
Planirani završetak radova je kraj 2026. godine. Nekretnina posjeduje pravomoćnu građevinsku dozvolu.
Privlaka je izuzetno tražena lokacija u okolici Zadra, poznata po dugim pješčanim plažama, plitkom i toplom moru te ugodnoj mediteranskoj klimi. Mjesto je idealno za obiteljski život, ali i kao investicija u turizam zbog blizine Nina, Zadra, otoka Vira i Paga. Ova nekretnina predstavlja odličnu priliku za kupnju kvalitetnog stana na mirnoj i perspektivnoj lokaciji.
Poštovani klijenti, agencijska provizija se naplaćuje u skladu s Općim uvjeti
Kontakt info
- Agencija
-
DUX NEKRETNINE
- Kontakt osoba
- Dux Nekretnine
- Telefon 1
- + 385 51 518... Prikaži broj
- Telefon 2
- + 385 91 480 ... Prikaži broj
- Adresa
- Tizianova 8
- Rijeka, Hrvatska
Slične nekretnine
PRIVLAKA, ZADAR - S3 PRILIKA! Useljivi stanovi novogradnja
- 260.000€ 98 m2
ZADAR, PRIVLAKA -Troetažni stan u blizini mora, S5
- 277.000€ 91 m2
ZADAR, PRIVLAKA - Stan u novogradnji, 300m od mora!
- 216.000€ 77 m2
ZADAR, PRIVLAKA - Troetažni stan u blizini mora,S6
- 290.500€ 89 m2
ZADAR,PRIVLAKA - Troetažni stan z bliini mora, S4
- 290.500€ 90 m2