Hrvatska, Zadar, Privlaka – zemljište s projektom moderne vile i bazenom, 93

Privlaka

225.000€

212 €/m2

Tip

Zemljiste

Površina

1060 m2

Detalji

Tip
Zemljiste
Cijena
225.000€
Površina
1060 m2 (212 €/m2)
Ažuriran
24.10.2025
ID
92816

Opis

Građevinsko zemljište s građevinskom dozvolom – moderna vila s bazenom u Privlaci kraj Zadra

Opis nekretnine

Na prodaju je atraktivno građevinsko zemljište u Privlaci, udaljeno svega nekoliko minuta od mora, koje uključuje potpuno izrađen i već odobren glavni projekt za izgradnju moderne vile s bazenom.
Projekt su izradili renomirani hrvatski arhitekti i inženjeri te obuhvaća sve relevantne struke – arhitekturu, konstrukciju, vodovod i odvodnju, elektroinstalacije, grijanje, klimatizaciju i bazensku tehniku.

Građevinska dozvola je izdana, što znači da se s gradnjom može odmah započeti.
Zemljište pruža idealne uvjete za izgradnju kvalitetne obiteljske kuće u mirnom i atraktivnom okruženju u blizini jadranske obale.

Detalji projekta

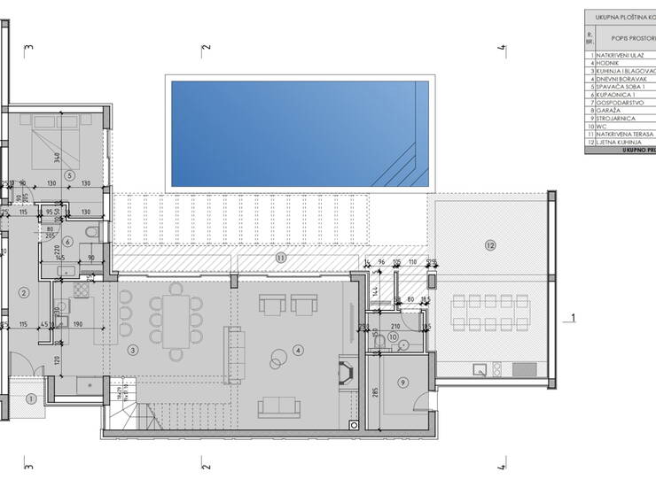
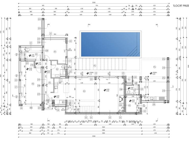
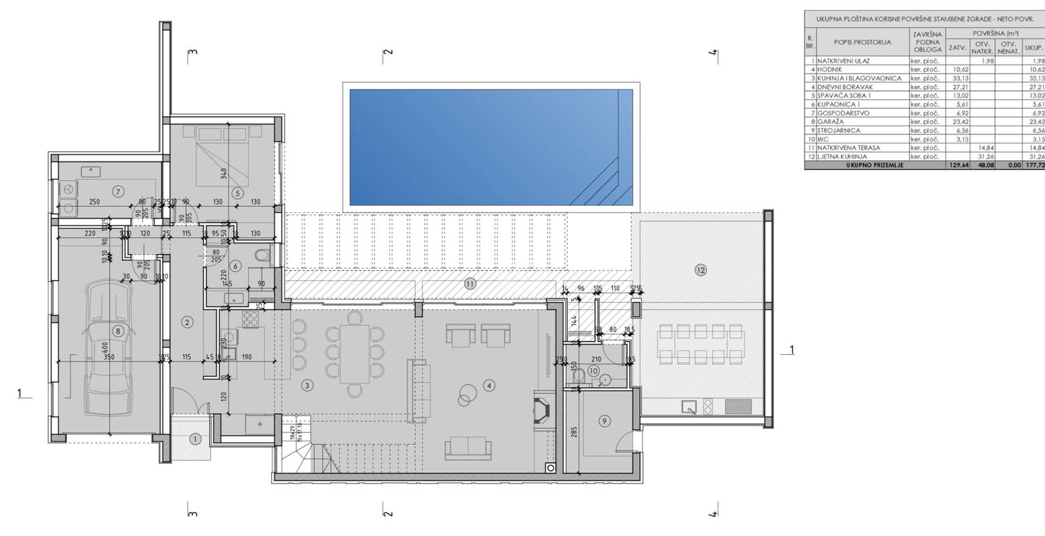
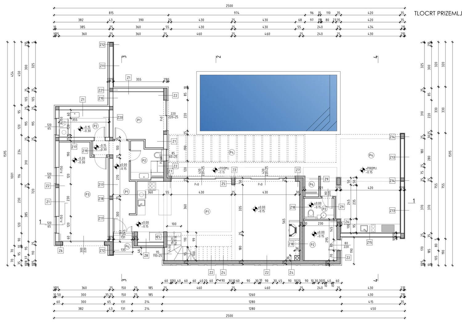
Odobreni projekt predviđa izgradnju moderne obiteljske vile s bazenom i pomoćnim objektom.
Dizajn kombinira čiste linije, mediteranske materijale i prozračne unutarnje prostore – savršeno za suvremeni način života s naglaskom na udobnost i stil.

Planirane karakteristike prema glavnom projektu:

- Vrsta gradnje: obiteljska kuća s pomoćnim objektom i otvorenim bazenom


- Lokacija: Sabunike, Privlaka s pogledom na more


- Ukupna površina zemljišta: 939 m2


- Površina objekta: 213,36 m2


- Površina bazena: 39 m2 (9,75 m × 4,00 m, dubina 1,40 m)


- Površina vrta: cca 320 m2


- Dozvola: glavni projekt dovršen, građevinska dozvola izdana

Kontakt info

Cro Living
Agencija
CRO LIVING
Kontakt osoba
Marija Božić
Telefon 1
+ 385 91 617 ... Prikaži broj
Adresa
Jurišićeva ul. 19/1
Zagreb, Hrvatska

Kontakt forma