ISTRA, PULA- Dvosobni stan 55 m2 !
Monvidal, Pula
178.600€
3 307 €/m2
Tip
Stan
Površina
54 m2
Struktura
3
Grijanje
Sustav grijanja, klimatizacije i ventilacije
Detalji
- Tip
- Stan
- Struktura
- 3
- Cijena
- 178.600€
- Površina
- 54 m2 (3 307 €/m2)
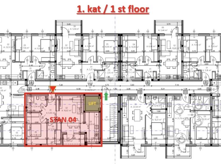
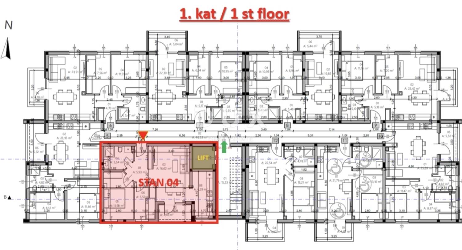
- Kat
- 1
- Grijanje
- Sustav grijanja, klimatizacije i ventilacije
- Udaljenost od mora
- 3000m
- Ažuriran
- 23.04.2026
- ID
- 106873
Opis
ISTRA, PULA- Dvosobni stan 54,96 m2!
U ponudi imamo stan na prvom katu stambene zgrade. Sastoji se od ulaznog prostora, kuhinje sa blagovaonicom i dnevnog boravka, dvije spavaće sobe, kupaonice i lođe.
Oprema stana:
* Stan je opremljen inverter klima uređajem za grijanje i hlađenje, dok će u kupaonicama biti postavljeno podno grijanje.
Ukoliko postoji interes za podnim grijanjem kroz cijeli stan , moguće je uz nadoplatu.
* PVC stolarija,
* protuprovalna vrata
* portafon,
* satelitska antena
Lokacija :
Nekretnina se nalazi na jednoj od najpoželjnijih lokacija u Puli. Blizina svih sadrža kao što su trgovine, škola, vrtić, javni gradski prijevoz i dr. porebni za svakodnevno funkcioniranje jedne obitelji daju dodatnu vrijednost nekretnini.
Uz stan obavezna je kupnja jednog parkirnog mjesta po cijeni od 8.162,50 € ili garažnog parkirnog mjesta ovisno o veličini po cijeni od 22.446,88 € - 26.528,13 €
Predviđeno useljenje 10/27.
Za sva dodatna pitanja i dogovor oko termina razgledavanja, slobodno me kontaktirajte.
Poštovani klijenti, agencijska provizija naplaćuje se u skladu s Općim uvjetima poslovanja.
www.dux-nekretnine.hr/opci-uvjeti-poslovanja
ID KOD AGENCIJE: 47180
Gordana Grabar Čubrilo
Agent pripravnik
Mob: + 385 91 555 ... Prikaži broj
Tel: + 385 91 480 ... Prikaži broj
E-mail: gordana@dux-istra.com
www.dux-istra.com
Kontakt info
- Agencija
-
DUX NEKRETNINE
- Kontakt osoba
- Dux Nekretnine
- Telefon 1
- + 385 51 518... Prikaži broj
- Telefon 2
- + 385 91 480 ... Prikaži broj
- Adresa
- Tizianova 8
- Rijeka, Hrvatska
Slične nekretnine
ISTRA, PULA- Dvosobni stan 54,24 m2 !
- 178.600€ 54 m2
ISTRA, PULA- Dvosobni stan 54,69 m2 !
- 178.600€ 54 m2
ISTRA, PULA- Dvosobni stan 54,24 m2 u prizemlju!
- 178.600€ 54 m2
ISTRA, PULA- Dvosobni stan 54,30 m2 u prizemlju!
- 178.600€ 54 m2
ISTRA, PULA- Dvosobni stan 54,84 m2 !
- 178.600€ 54 m2
Stan u Puli sa dvorištem
- 180.000€ 42 m2
ISTRA, PULA - MONVIDAL, STAN NA ATRAKTIVNOJ LOKACIJI
- 175.000€ 47 m2
ISTRA,PULA - Stan u novogradnji!
- 182.900€ 59 m2
ISTRA, PULA- Dvosobni stan 53 m2 !
- 173.500€ 52 m2