Novi projekt – Pula! Novi stambeni projekt smješten u mirnom i ugodnom ...
Pula
133.000€
2 770 €/m2
Tip
Stan
Površina
48 m2
Struktura
1
Detalji
- Tip
- Stan
- Struktura
- 1
- Cijena
- 133.000€
- Površina
- 48 m2 (2 770 €/m2)
- Površina zemljišta
- 0
- Kat
- 1
- Ukup. katova
- 3
- Udaljenost od mora
- 4000m
- Parkirno mjesto
- Da
- Ažuriran
- 11.12.2025
- ID
- 94388
Opis
Novi projekt – Pula!
Novi stambeni projekt smješten u mirnom i ugodnom dijelu Pule, koji se sastoji od dvije moderne zgrade, svaka s tri etaže (prizemlje, prvi i drugi kat).
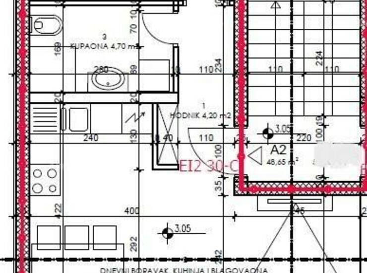
Zgrada B sastoji se od tri etaže i ukupno četiri stana, projektiranih prema suvremenim standardima udobnosti i funkcionalnosti.
Stan A2, površine 48,65 m2, nalazi se na 1 katu zgrade te sastoji se od:
hodnika
kupaonice
spavaće sobe
kuhinje s blagovaonicom i dnevnim boravkom
loggie.
Uz stan se nudi parkirno mjesto (uz nadoplatu).
Kvalitetna gradnja, moderni materijali i pažljivo osmišljen tlocrt čine ove stanove izvrsnim izborom za obiteljski život, odmor ili investiciju.
Planirani završetak izgradnje: kraj 2026.
Za sve dodatne informacije i razgled stana, molimo kontaktirajte:
Azra
+ 385 91 611 ... Prikaži broj
+ 385 98 420... Prikaži broj
azra@almadominvest.com
Kontakt info
- Agencija
-
Alma Dom
- Kontakt osoba
- Alma Dom
- Telefon 1
- + 385 52 213... Prikaži broj
- Telefon 2
- + 385 52 210... Prikaži broj
- Adresa
- Istarska 10
- Pula, Hrvatska