Novi stambeni projekt na eksluzivnoj lokaciji, Pula, Veruda! Projekt Sispl...
Pula
222.669€
3 906 €/m2
Tip
Stan
Površina
57 m2
Struktura
2
Detalji
- Tip
- Stan
- Struktura
- 2
- Cijena
- 222.669€
- Površina
- 57 m2 (3 906 €/m2)
- Površina zemljišta
- 0
- Kat
- 1
- Ukup. katova
- 4
- Udaljenost od mora
- 300m
- Lift
- Da
- Parkirno mjesto
- Da
- Ažuriran
- 12.01.2026
- ID
- 99034
Opis
Novi stambeni projekt na eksluzivnoj lokaciji, Pula, Veruda!
Projekt Sisplac smješten je na jednoj od najboljih lokacija u Puli. Ova lokacija je savršena za stanovanje zbog sportsko-rekreacijskog sadržaja na tom području, blizine tržnice Veruda, uređenih parkova, te svih prirodnih blagodati, atraktivnih plaža, mora i najpopularnije šetnice u gradu Lungomare.
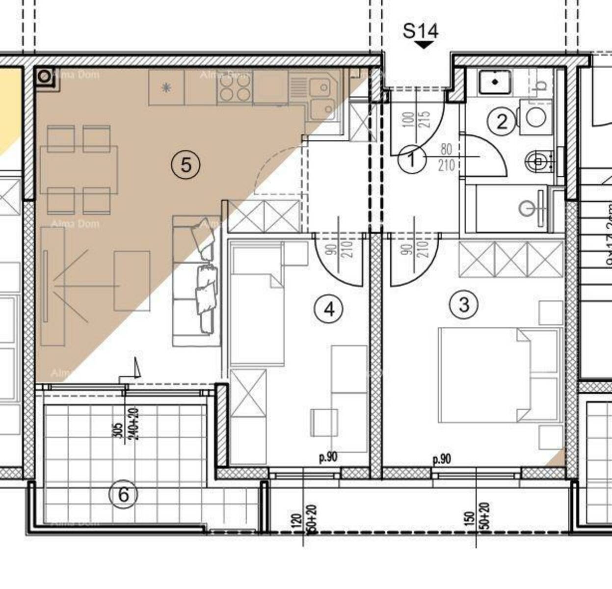
Stan S14, nalazi se na 1 katu zgrade, površine 57,57 m2 (54,982).
Stan se sastoji od honika, dnevnog boravka sa kuhinjom i blagavaonom, 2 spavaće sobe, kupaone i balkona.
Podovi u sobama će biti parket, a u ostalim prostorijama je karemaika. Zgrada posjeduje lift i podzemnu garažu.
* Napomena: stanu pripada garažno parkirno mjesto uz dodatnu nadoplatu, po cijeni od 20.000 eura.
Za dodatne informacije, molimo kontaktirajte:
Azra
+ 385 91 611 ... Prikaži broj
+ 385 98 420... Prikaži broj
azra@almadominvest.com
Kontakt info
- Agencija
-
Alma Dom
- Kontakt osoba
- Alma Dom
- Telefon 1
- + 385 52 213... Prikaži broj
- Telefon 2
- + 385 52 210... Prikaži broj
- Adresa
- Istarska 10
- Pula, Hrvatska