Novo u ponudi!!! Na prodaju je moderan stan smješten na atraktivnoj lokac...
Pula
292.000€
5 407 €/m2
Tip
Stan
Površina
54 m2
Struktura
2
Detalji
- Tip
 - Stan
 
- Struktura
 - 2
 
- Cijena
 - 292.000€
 
- Površina
 - 54 m2 (5 407 €/m2)
 
- Površina zemljišta
 - 0
 
- Kat
 - 2
 
- Ukup. katova
 - 3
 
- Udaljenost od mora
 - 1100m
 
- Parkirno mjesto
 - Da
 
- Ažuriran
 - 03.11.2025
 
- ID
 - 94523
 
Opis
Novo u ponudi!!!
Na prodaju je moderan stan smješten na atraktivnoj lokaciji na ulazu u Pulu, u mirnom i uređenom dijelu grada. Projekt obuhvaća šest stambenih zgrada s ukupno 24 stana, a cijeli kompleks bit će zatvorenog i privatnog tipa, idealan za miran i siguran život.
U neposrednoj blizini nalaze se svi važni sadržaji – škole, vrtići, trgovački centri, javni prijevoz park-šuma, savršena za šetnje, rekreaciju i boravak u prirodi. 
Planirani završetak izgradnje je u proljeće 2027. godine, uz sve potrebne dozvole i energetsku certifikaciju visoke učinkovitosti.
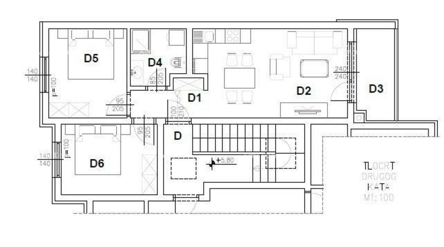
Stan F-D nalazi se na drugom katu zgrade F i obuhvaća ukupnu površinu od 80,38 m², uključujući stambeni dio, lođu, garažno parkirno mjesto i spremište. 
Stambeni prostor od 54,95 m² sastoji se od dnevnog boravka s kuhinjom i blagovaonicom, dvije spavaće sobe, kupaonice, hodnika, spremišta i lođe koja pruža ugodan prostor za opuštanje. 
Uz stan dolaze garažno parkirno mjesto i spremište u prizemlju zgrade.
Posebna pažnja posvećena je kvaliteti gradnje i završnim detaljima. 
Karakteristike gradnje: 
Stanovi su energetskog razreda A/A+, s termoizolacijom debljine 10 cm, protuprovalnim ulaznim vratima, PVC stolarijom s IZO staklima i roletama te modernom keramikom u svim prostorijama. 
Na lođama je postavljena protuklizna keramika, dok su u dnevnom boravku, kuhinji i kupaonici predviđeni klima-uređaji i električno podno grijanje. 
U kupaonicama su ugrađeni i ele
Kontakt info
- Agencija
 - 
                          
                            
Alma Dom
 
- Kontakt osoba
 - Alma Dom
 
- Telefon 1
 - + 385 52 213... Prikaži broj
 
- Telefon 2
 - + 385 52 210... Prikaži broj
 
- Adresa
 - Istarska 10
 
- Pula, Hrvatska