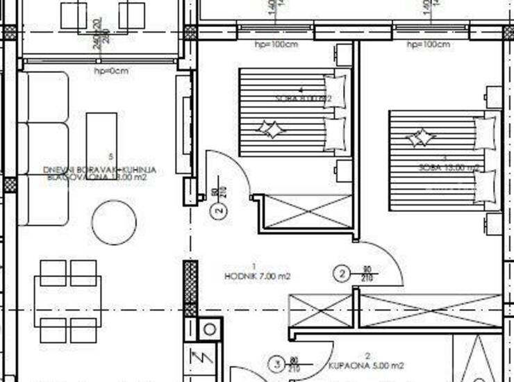
Novo u ponudi! U prodaji je stan u novom stambenom projektu na odličnoj l... Pula 159.500€ 2 900 €/m2 Novo 2 Tip Stan Površina 55 m2 Struktura 2 Detalji Tip Stan Struktura 2 Cijena 159.500€ Površina 55 m2 (2 900 €/m2) Površina zemljišta 0 Kat 1 Ukup. katova 5 Udaljenost od mora 1000m Lift Da Parkirno mjesto Da Ažuriran 21.04.2026 ID 106488 Opis Novo u ponudi! U prodaji je stan u novom stambenom projektu na odličnoj lokaciji. Stan se nalazi na 1. katu zgrade te se sastoji od hodnika, 2 spavaće sobe, kupaonice, dnevnog boravka s kuhinjom i blagovaonicom te loggie. Uz stan dolazi 1 parkirno mjesto uz nadoplatu od 18.000 €, a postoji i mogućnost kupnje ostave. Planirani završetak izgradnje je kraj 2027. godine. Primamo rezervacije. Za dodatne informacije, molimo kontaktirajte: Azra + 385 91 611 5706... Prikaži broj + 385 98 420 885... Prikaži broj azra@almadominvest.com Kontakt podaci Kontakt info Agencija Alma Dom Kontakt osoba Alma Dom Telefon 1 + 385 52 213 332... Prikaži broj Telefon 2 + 385 52 210 160... Prikaži broj Adresa Istarska 10 Pula, Hrvatska Kontakt forma Vaše ime Telefon (opciono) Email Pitanje U sledeće (antibot) polje upišite broj 3 slovima