NOVOGRADNJA – MANJI STAMBENI KOMPLEKS U IZGRADNJI (3 ZGRADE U NIZU) Na p...
Pula
350.000€
3 181 €/m2
Tip
Stan
Površina
110 m2
Struktura
3
Detalji
- Tip
- Stan
- Struktura
- 3
- Cijena
- 350.000€
- Površina
- 110 m2 (3 181 €/m2)
- Površina zemljišta
- 0
- Kat
- 2
- Ukup. katova
- 3
- Udaljenost od mora
- 2500m
- Garaža
- Da
- Parkirno mjesto
- Da
- Ažuriran
- 19.02.2026
- ID
- 98826
Opis
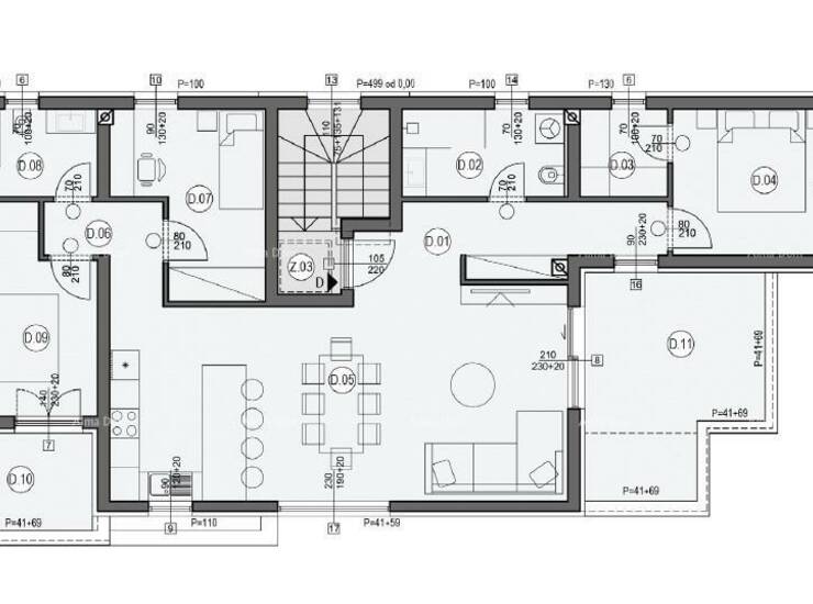
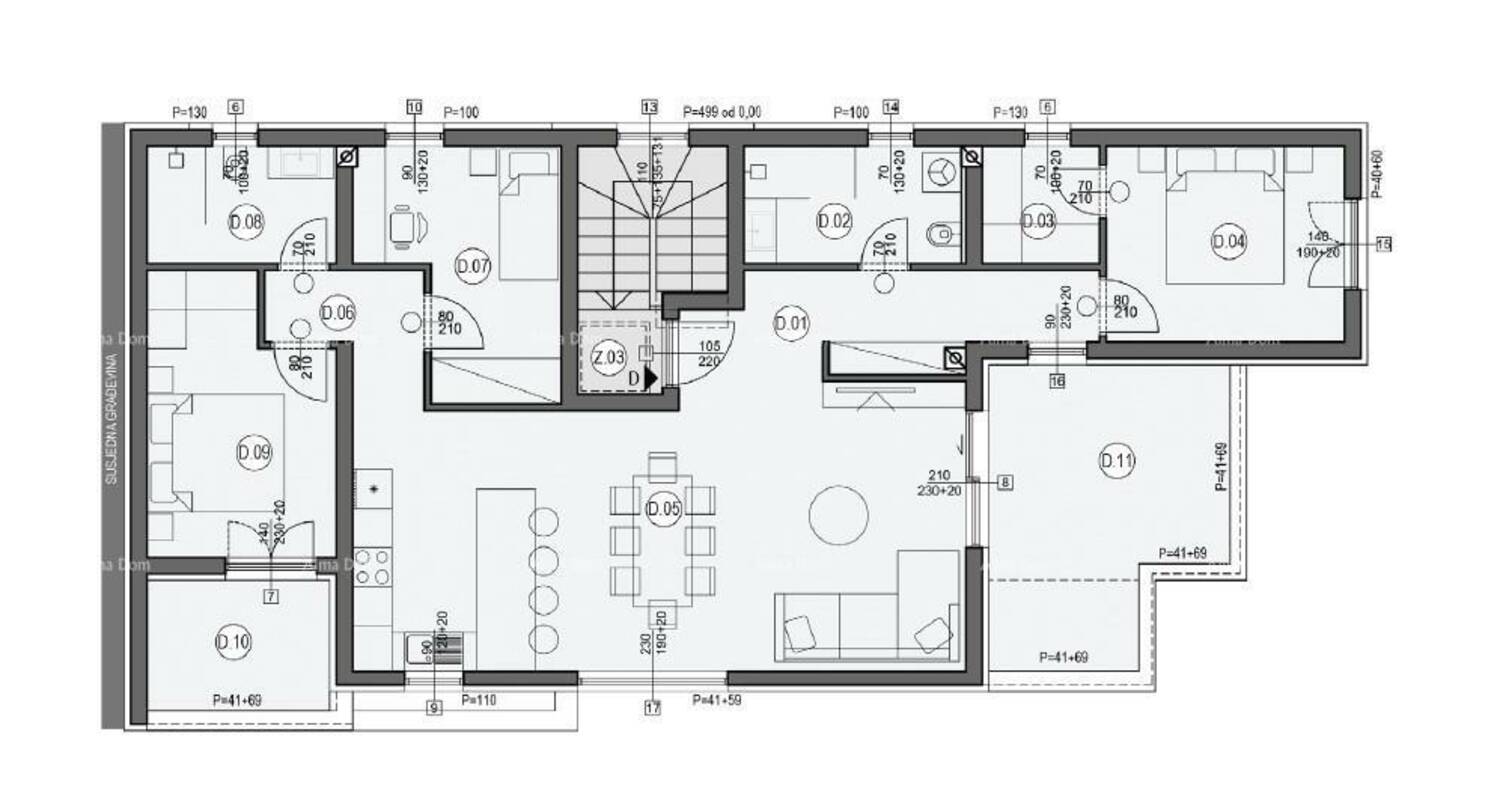
NOVOGRADNJA – MANJI STAMBENI KOMPLEKS U IZGRADNJI (3 ZGRADE U NIZU)
Na prodaju je manji stambeni kompleks u izgradnji koji se sastoji od tri moderne zgrade u nizu.
Svaka zgrada projektirana je kao stambena cjelina s ukupno četiri stana, raspoređenih kroz prizemlje i dva kata.
Stanovi su funkcionalnog rasporeda, s naglaskom na komfor, prirodno osvjetljenje i kvalitetne građevinske materijale. Svakom stanu pripada parkirno mjesto, a predviđena je i moderna energetski učinkovita oprema.
Stan D, nalazi se na 2.katu zgrade A3 i sastoji od: ulaznog prostora, dnevnog prostora s kuhinjom i blagavaonom, 3 spavaće sobe, 2 kupaone, hodnika, garderobe, balkona.
Kompleks se nalazi na mirnoj lokaciji idealnoj za obiteljski život ili kao investicija za najam, s lakim pristupom svim bitnim sadržajima – trgovinama, školom, javnim prijevozom i plažama.
Projekt je u fazi izgradnje.
Stanu pripada garaža i parkirno mjesto.
Za dodatne informacije, molimo kontaktirajte:
Azra
+ 385 91 611 5... Prikaži broj
+ 385 98 420 ... Prikaži broj
azra@almadominvest.com
Kontakt info
- Agencija
-
Alma Dom
- Kontakt osoba
- Alma Dom
- Telefon 1
- + 385 52 213... Prikaži broj
- Telefon 2
- + 385 52 210... Prikaži broj
- Adresa
- Istarska 10
- Pula, Hrvatska