Novogradnja na odličnoj lokaciji - Šijana - Pula
Šijana, Pula
238.000€
3 131 €/m2
Tip
Stan
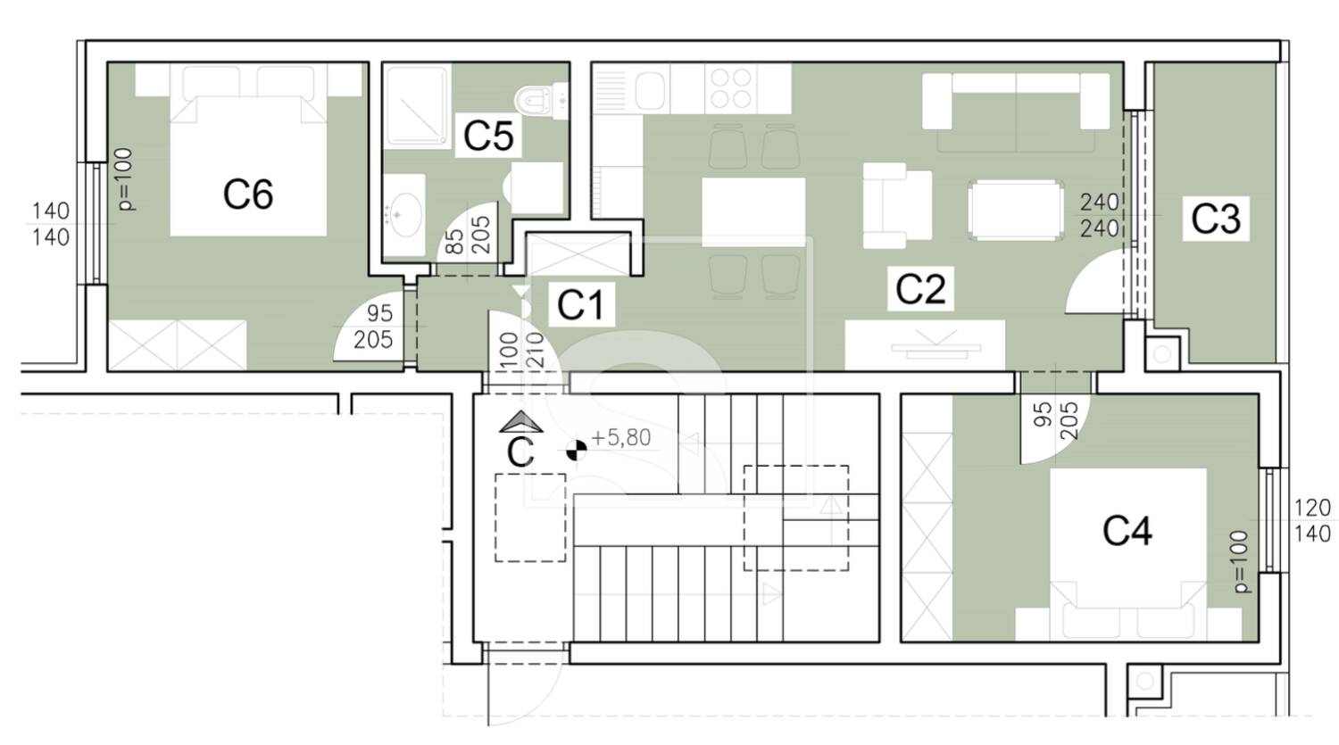
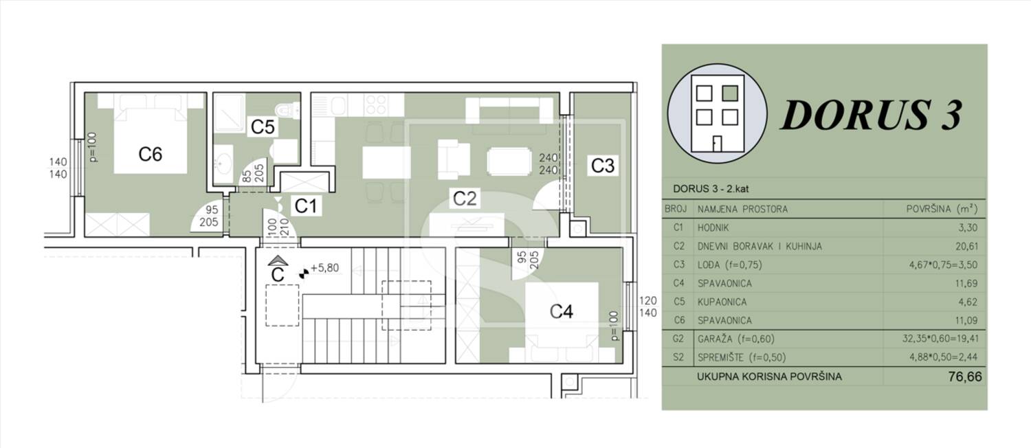
Površina
76 m2
Struktura
3
Detalji
- Tip
- Stan
- Struktura
- 3
- Cijena
- 238.000€
- Površina
- 76 m2 (3 131 €/m2)
- Kat
- 2
- Udaljenost od mora
- 4000m
- Garaža
- Da
- Ažuriran
- 09.03.2026
- ID
- 103687
Opis
Šijana - Pula, odličan projekt kvalitetne novogradnje na traženoj lokaciji!
Na jednom od većih i glavnih ulaza u Pulu, neposredno blizu "velikog" kružnog toka, lokacija i neposredno čvorište s kojeg se, s autoceste, pristupa direktno na ulaz u grad, smjestio se ovaj projekt novogradnje. Nalazi se u mirnoj ulici, nedaleko zaobilaznice ali opet dovoljno udaljen od buke, mirna i tiha lokacija jedne su od glavnih značajki a kvalitetna gradnja samo potvrda da se radi o odličnoj investiciji.
U ponudi su stanovi na raznim katovima te raznih kvadratura, tako svatko može pronaći idealno rješenje za svoje potrebe. Većina stanova ima garažno parkirno mjesto za svog limenog ljubimca. Osim garaža, velika većina stanova ima i vlastito spremište. Bitno je napomenuti da su sva parkirna rješenja kao i sva spremišta uračunata u ukupno kvadraturu nekretnine te se ne plaća naknadno!
Sama gradnja zgrade kao i materijali koji su korišteni u gradnji prate moderne i najnovije suvremene načine gradnje. Fasada je termo-izolacijska (ETICS) s visoko učinkovitom toplinskom izolacijom u vidu mineralne vune (EPS) debljine 10cm. Na vanjskim otvorima nalazi se kvalitetna PVC stolarija s dvoslojnim IZO staklima punjenim argonom dok će unutarnja stolarija biti drvena te protuprovalna ulazna vrata. Podovi dolaze s postavljenom vrhunskom keramikom modernih formata i dizajna. Grijanje u stanovima predviđeno je putem električnog podnog grijanja u kupaonici te dnevnom boravko
Kontakt info
- Agencija
-
SevenHills
- Reg. posrednika br.
- 191/2021
- Kontakt osoba
- Claudio Mezzalira
- Telefon 1
- 099285... Prikaži broj
- Adresa
- Šišanska cesta 16
- Pula, Hrvatska
Slične nekretnine
ISTRA, PULA - Moderna novogradnja na traženoj lokaciji!
- 238.000€ 80 m2
ISTRA, PULA - Moderna novogradnja na traženoj lokaciji!
- 238.000€ 73 m2
ISTRA, PULA - Moderna novogradnja na traženoj lokaciji!
- 238.000€ 76 m2
ISTRA, PULA - Moderna novogradnja na traženoj lokaciji!
- 238.000€ 73 m2
PULA, DVOSOBAN STAN NA DRUGOM KATU I GARAŽA
- 238.000€ 80 m2
PULA, DVOSOBAN STAN NA PRVOM KATU I GARAŽA
- 238.000€ 73 m2
PULA, DVOSOBAN STAN NA PRVOM KATU NOVOGRADNJE
- 238.000€ 73 m2
PULA, STAN NA DRUGOM KATU NOVOGRADNJE
- 238.000€ 76 m2
PULA, STAN NA PRVOM KATU NOVOGRADNJE
- 238.000€ 73 m2
Šijana - Pula - novogradnja na ulazu u grad
- 238.000€ 73 m2
Dvosoban stan s velikom garažom - novogradnja - PRILIKA!
- 238.000€ 80 m2
Dvosoban stan s garažom - Šijana
- 238.000€ 73 m2