Oglas
Pula
258.072€
3 634 €/m2
Tip
Stan
Površina
71 m2
Struktura
2
Detalji
- Tip
- Stan
- Struktura
- 2
- Cijena
- 258.072€
- Površina
- 71 m2 (3 634 €/m2)
- Površina zemljišta
- 10
- Kat
- p
- Ukup. katova
- 3
- Udaljenost od mora
- 0m
- Parkirno mjesto
- Da
- Ažuriran
- 24.01.2026
- ID
- 99911
Opis
Pula, jedan od najpoželjnijih gradova u Istri, nudi spoj mediteranskog načina života, razvijene infrastrukture i blizine mora.
Valdebek je mirno i traženo stambeno naselje koje se kontinuirano razvija te je sve češći izbor za obiteljski život i dugoročnu investiciju.
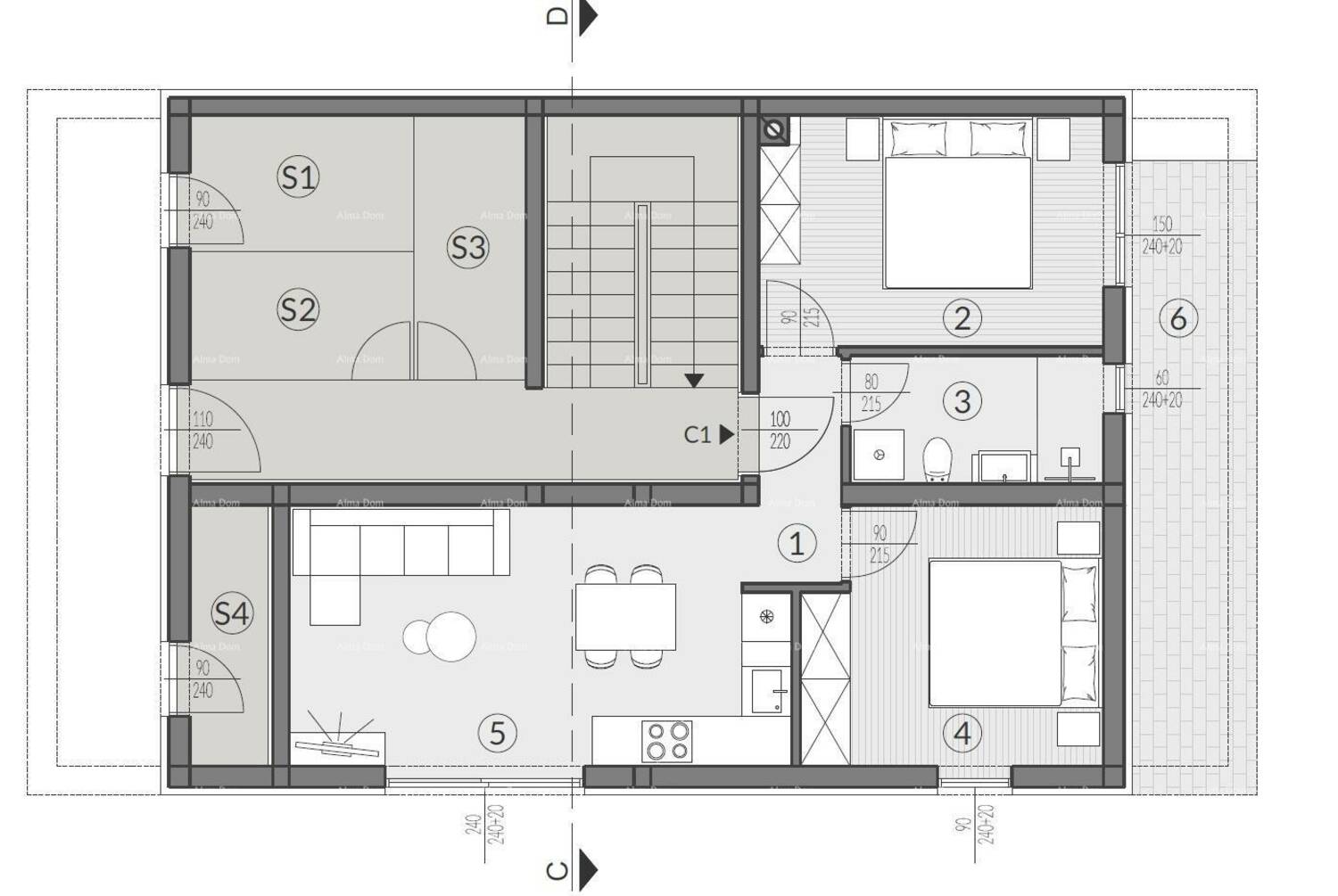
Prodaje se stan u kvalitetnoj novogradnji, zgrada C, stan C1, smješten u prizemlju, s pripadajućim vrtom. Objekt je u potpunosti izgrađen, a izdavanje uporabne dozvole očekuje se uskoro.
Stan je opremljen suvremenim i energetski učinkovitim sustavima grijanja i hlađenja:
* Visokokvalitetni Daikin sustav grijanja i hlađenja, s unutarnjim jedinicama niskog profila postavljenima uz pod (radijatorski tip), za ugodnu i ravnomjernu temperaturu tijekom cijele godine
* Podno grijanje u dnevnom boravku, hodniku i kupaonici
RASPORED PROSTORIJA
Hodnik: 2,94 m²
Spavaća soba: 11,49 m²
Kupaonica: 4,73 m²
Spavaća soba: 10,87 m²
Dnevni boravak s kuhinjom i blagovaonicom: 18,43 m²
Natkrivena terasa: 11,45 m² (obračunato 5,73 m²)
Neto površina stana: 54,19 m²
VANJSKI I DODATNI PROSTORI
Vrt: 109,18 m² (obračunato 10,92 m²)
Parkirno mjesto PM1: 12,50 m² (obračunato 3,12 m²)
Spremište S4: 2,99 m² (obračunato 2,24 m²)
UKUPNA NETO POVRŠINA - 70,47 m²
INFO:
+ 385 91 611... Prikaži broj
+ 385 98 42... Prikaži broj
azra@almadominvest.com
Kontakt info
- Agencija
-
Alma Dom
- Kontakt osoba
- Alma Dom
- Telefon 1
- + 385 52 213... Prikaži broj
- Telefon 2
- + 385 52 210... Prikaži broj
- Adresa
- Istarska 10
- Pula, Hrvatska