PRODAJE SE STAN – STAN 1, PRIZEMLJE – PULA Na prodaju je stan površin...

Pula

190.000€

3 454 €/m2

Novo 2
Dvosoban stan, Pula, prodaja, 190000 €, 55 m2
Dvosoban stan, Pula, prodaja, 190000 €, 55 m2
Tip

Stan

Površina

55 m2

Struktura

2

Detalji

Tip
Stan
Struktura
2
Cijena
190.000€
Površina
55 m2 (3 454 €/m2)
Površina zemljišta
0
Kat
p
Ukup. katova
3
Udaljenost od mora
0m
Parkirno mjesto
Da
Ažuriran
23.04.2026
ID
100008

Opis

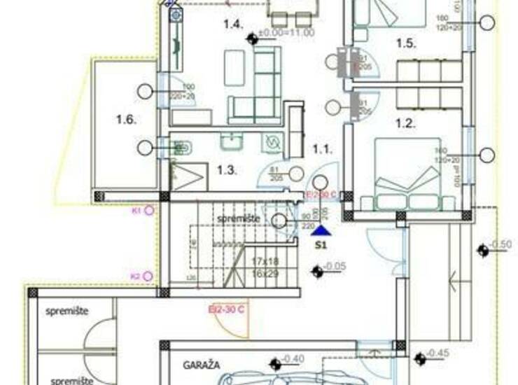
PRODAJE SE STAN – STAN 1, PRIZEMLJE – PULA

Na prodaju je stan površine 54,99 m2 u prizemlju (Stan 1) u modernoj novogradnji s ukupno 4 stambene jedinice, smještenoj na mirnoj lokaciji u Puli.

Stan se nalazi u prizemlju kvalitetno projektirane manje stambene zgrade, što osigurava mir, privatnost i mali broj susjeda. Zgrada je suvremenog dizajna s ravnim krovom i funkcionalnim rasporedom.
Stan uključuje predprostor, 2 spavaće sobe, kupaonu, kuhinju s dnevnim boravkom i blagovaonom i natkrivenu terasu.

Prizemni položaj čini ovu nekretninu posebno pogodnom za obitelji, starije osobe ili kao investiciju za dugoročni najam.

Lokacija:
Nekretnina se nalazi u mirnom stambenom okruženju s dobrom prometnom povezanošću i u blizini svih potrebnih sadržaja kao što su trgovine, škole i ostala infrastruktura.

Za dodatne informacije, molimo kontaktirajte:
Azra
+ 385 91 611 ... Prikaži broj
+ 385 98 420... Prikaži broj
azra@almadominvest.com

Kontakt info

Agencija
Alma Dom
Kontakt osoba
Alma Dom
Telefon 1
+ 385 52 213... Prikaži broj
Telefon 2
+ 385 52 210... Prikaži broj
Adresa
Istarska 10
Pula, Hrvatska

Kontakt forma