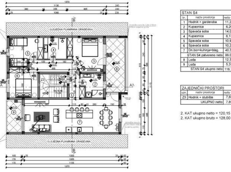
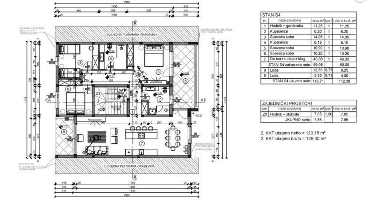
Prodaje se stan, površine 116.71 m2 (112.30 m2), Pula. Stan S4 se nalazi ...

Pula

298.000€

2 568 €/m2

Tip

Stan

Površina

116 m2

Struktura

3

Detalji

Tip
Stan
Struktura
3
Cijena
298.000€
Površina
116 m2 (2 568 €/m2)
Površina zemljišta
0
Kat
2
Ukup. katova
3
Udaljenost od mora
0m
Ažuriran
31.12.2025
ID
98550

Opis

Prodaje se stan, površine 116.71 m2 (112.30 m2), Pula.

Stan S4 se nalazi na 2.katu zgrade 7. Stan se sastoji od: hodnika garderobe, dnevnoga boravka sa kuhinjom i blagovaonom, 3 spavaće sobe, 2 kupaonice i 2 loggie.
Grijanje na klima uređaj i podno grijanje u kupaonici.
Ova nekretnina je idealna za cjelogodišnji boravak i život ali i za iznjamljivanje tijekom sezone. Lokacijski blizu svih sadržaja, brzo se izlazi iz grada, ali stiže i do svih dijelova grada i okolice.
Stanu pripada spremište i dva parkirna mjesta koje je uključeno u cijenu.



Za više informacija obratite se:

Azra
+ 385 91 611 ... Prikaži broj
azra@almadominvest.com
+ 385 98 420... Prikaži broj

Kontakt info

Agencija
Alma Dom
Kontakt osoba
Alma Dom
Telefon 1
+ 385 52 213... Prikaži broj
Telefon 2
+ 385 52 210... Prikaži broj
Adresa
Istarska 10
Pula, Hrvatska

Kontakt forma