Prodaje se stan u novom projektu u Štinjanu. Turističko mjesto Štinjan...
Pula
214.500€
4 377 €/m2
Tip
Stan
Površina
49 m2
Struktura
1
Detalji
- Tip
- Stan
- Struktura
- 1
- Cijena
- 214.500€
- Površina
- 49 m2 (4 377 €/m2)
- Površina zemljišta
- 0
- Kat
- p
- Ukup. katova
- 2
- Udaljenost od mora
- 800m
- Parkirno mjesto
- Da
- Ažuriran
- 24.01.2026
- ID
- 98059
Opis
Prodaje se stan u novom projektu u Štinjanu.
Turističko mjesto Štinjan nalazi se u blizini grada Fažane cca 2 km udaljenosti. Idealno za miran obiteljski život, a svakako prema potrebama i željama nalazite se blizu Brijuna, turističkog mjesta, mnogo restorana sa dobrom hranom i mnogo turista koji daju ugodan osječaj ljeta, vreve, pozitivne atmosfere.
Zgrada se proteže na dvije etaže, P+2, svakom stanu/apartmanu pripada parking mjesto.
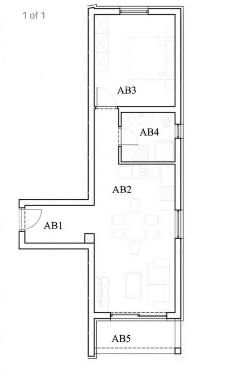
Stan AB se nalazi u prizemlju zgrade, ima površinu 49.40 m2 i sastoji se od hodnika, kuhinji, dnevnog boravka, spavaće sobe, kupaonice i terase.
Štinjan kao mjesto geografski je odlično pozicionirano, blizu uređenih plaža (800 m), a opet blizu svih potrebnih sadržaja.
Parkirno mjesto uključeno u cijenu.
Rok završetka predmetne građevine 10/2025.
Za više informacija, molimo kontaktirajte:
Info:
Azra Valjevac
+ 385 91 611 ... Prikaži broj
azra@almadominvest.com
+ 385 98 420... Prikaži broj
Kontakt info
- Agencija
-
Alma Dom
- Kontakt osoba
- Alma Dom
- Telefon 1
- + 385 52 213... Prikaži broj
- Telefon 2
- + 385 52 210... Prikaži broj
- Adresa
- Istarska 10
- Pula, Hrvatska