Prodajemo stan u fazi gradnje u okolici Pule. Stan se nalazi na samo 5km...

Pula

175.000€

3 181 €/m2

Novo 3
Dvosoban stan, Pula, prodaja, 175000 €, 55 m2
Dvosoban stan, Pula, prodaja, 175000 €, 55 m2
Dvosoban stan, Pula, prodaja, 175000 €, 55 m2
Tip

Stan

Površina

55 m2

Struktura

2

Detalji

Tip
Stan
Struktura
2
Cijena
175.000€
Površina
55 m2 (3 181 €/m2)
Površina zemljišta
0
Kat
1
Ukup. katova
3
Udaljenost od mora
7000m
Parkirno mjesto
Da
Ažuriran
25.10.2025
ID
92800

Opis

Prodajemo stan u fazi gradnje u okolici Pule.

Stan se nalazi na samo 5km od centra Pule u zgradi koja se trenutačno gradi.

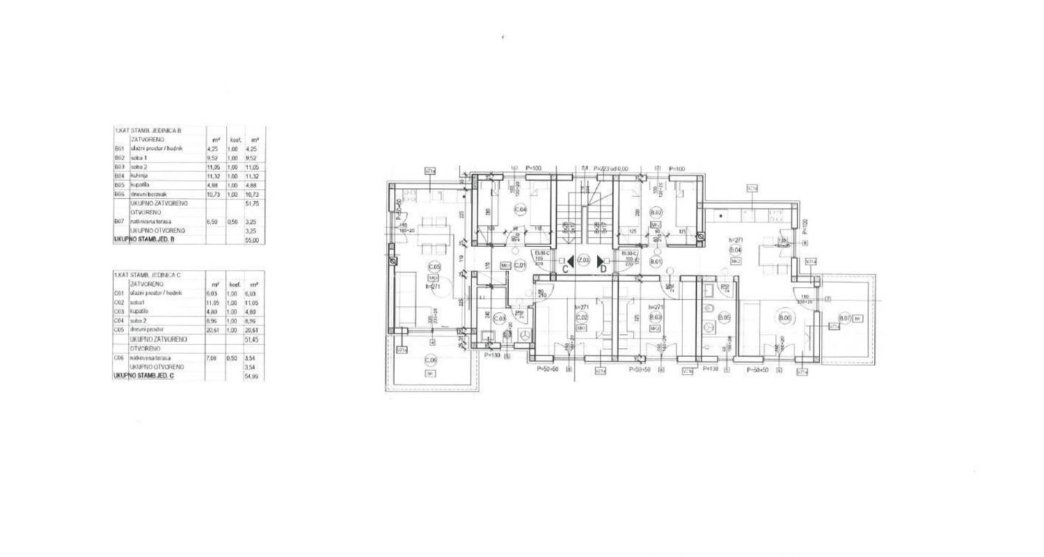
Stan B sastoji se od dvije spavaće sobe, kupatila, kuhinje, blagovaonice i dnevnog boravka iz kog se izlazi na terasu (6.5m2)

Stan će imati podno grijanje na dizalice topline, klima uređaj.
Parkirno mjesto uključeno je u cijenu.

Za više informacija stojimo vam na raspolaganju:

Info: Azra Valjevac + 385 91 611 ... Prikaži broj
Email: azra@almadominvest.com
www.almadom.com

Kontakt: Gojko Đurković+ 385 95 470... Prikaži broj
Email: gojko@alma-nekretnine.com

Kontakt info

Agencija
Alma Dom
Kontakt osoba
Alma Dom
Telefon 1
+ 385 52 213... Prikaži broj
Telefon 2
+ 385 52 210... Prikaži broj
Adresa
Istarska 10
Pula, Hrvatska

Kontakt forma