Prodajemo stan u novom stambenom kompleksu, u Štinjanu. Kompleks se sastoj...
Pula
172.125€
3 741 €/m2
Tip
Stan
Površina
46 m2
Struktura
1
Detalji
- Tip
- Stan
- Struktura
- 1
- Cijena
- 172.125€
- Površina
- 46 m2 (3 741 €/m2)
- Površina zemljišta
- 0
- Kat
- 1
- Ukup. katova
- 3
- Udaljenost od mora
- 1200m
- Parkirno mjesto
- Da
- Ažuriran
- 30.10.2025
- ID
- 94266
Opis
Prodajemo stan u novom stambenom kompleksu, u Štinjanu. Kompleks se sastoji od 19 stambenih dvokatnih zgrade. Lokacija novog stambenog kompleksa je odlična, samo kilometar udaljena od centra Štinjana i u neposrednoj blizini osnovne škole, dječjeg vrtića, gradske plaže Hidrobaza, ljekarne te na svega četiri kilometra od centra grada Pule i tri kilometra od centra naselja Fažana. 
Prilaz stambenom kompleksu osiguran je s asfaltirane površine, unutar koje će se nalaziti sva potrebna infrastruktura (struja, voda, kanalizacija).
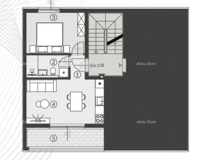
Stan oznake 15B nalazi se na 1.katu zgrade i sastoji se od: hodnika, dnevnog boravka s kuhinjom i blagovaonom, spavaće sobe,  kupaone i lođe.
Ono što čini ovaj projekt posebnim je arhitektonsko rješenje fasade stambenih građevina, te zeleni krovovi koji se pojavljuju na fasadi.
Svakoj stambenoj jedinici osiguran je potreban broj parkirnih mjesta prema urbanističkom planu grada Pule.  Svakom parkirnom mjestu projektiran je budući spoj na elektroenergetsku mrežu s ciljem spajanja punjača za električna vozila.
Ovom stanu pripada spremište i 1 parkirno - uključeno u cijenu.
Primamo rezervacije!
Za dodatne informacije, molimo kontaktirajte:
Azra
+ 385 91 611 ... Prikaži broj 
+ 385 98 420... Prikaži broj 
azra@almadominvest.com
Kontakt info
- Agencija
- 
                          
                            Alma Dom
- Kontakt osoba
- Alma Dom
- Telefon 1
- + 385 52 213... Prikaži broj
- Telefon 2
- + 385 52 210... Prikaži broj
- Adresa
- Istarska 10
- Pula, Hrvatska
 
                           
                             
                             
                             
                             
                             
                             
                             
                             
                             
                       
                         
                         
                         
                         
                         
                         
                         
                        