PULA, JEDNOSOBAN STAN A32 NA 3. KATU 55 m2
Pula
176.000€
3 200 €/m2
Tip
Stan
Površina
55 m2
Struktura
2
Detalji
- Tip
- Stan
- Struktura
- 2
- Cijena
- 176.000€
- Površina
- 55 m2 (3 200 €/m2)
- Kat
- 3
- Grijanje
- Sustav grijanja, klimatizacije i ventilacije
- Udaljenost od mora
- 850m
- Garaža
- Da
- Parkirno mjesto
- Da
- Ažuriran
- 18.10.2025
- ID
- 88639
Opis
PULA, u ponudi imamo stan na 3. katu stambene zgrade s četiri nadzemne i dvije podzemne etaže smještena je na mirnoj lokaciji u blizini svih potrebnih sadržaja – škole, vrtića, restorana, benzinske postaje i ambulante. Udaljena je samo 4 km od jedne od najatraktivnijih plaža u okolici.
Zgrada sadrži ukupno 36 stambenih jedinica, a u podzemnim etažama nalaze se garaže na dvije razine, dok je izvan objekta osigurano dodatnih 11 parkirnih mjesta. Parkirna mjesta se naplaćuju posebno, a ovisno o veličini stana, stanu pripada jedno ili dva parkirna mjesta. Garaže su izvedene s industrijskim podom, a pristup svim etažama omogućen je liftom.
Stanovi su opremljeni električnim podnim grijanjem u svim prostorijama, klima uređajem inverter tipa (3 kW u manjim, 5 kW u većim stanovima) te opcijom ugradnje kamina ili peći na kruta goriva. Stolarija je PVC na prozorima i aluminijska na kliznim stijenama s troslojnim staklima. Na terasama su postavljene dvostruke staklene ograde.
Podne i zidne obloge čini talijanska keramika, a sanitarna oprema uključuje Dolomite elemente, Tece vodokotliće i Grohe slavine. Toplinska izolacija zgrade izvedena je sa 10 cm stiropora i mineralne vune.
Stanovi se prodaju nenamješteni, a planirani završetak gradnje je krajem 2025. godine.
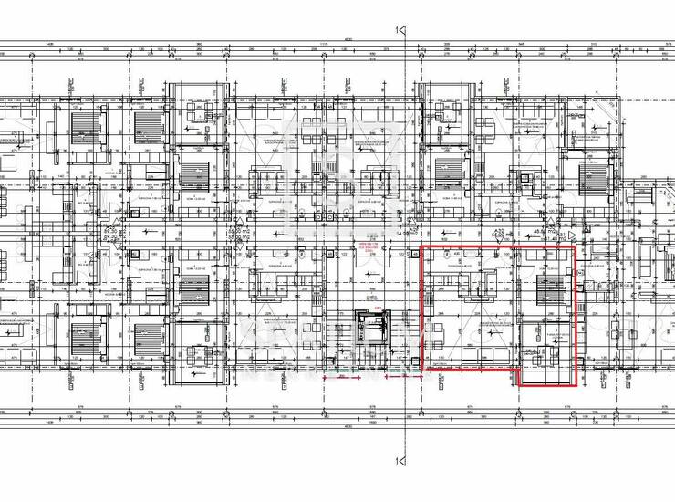
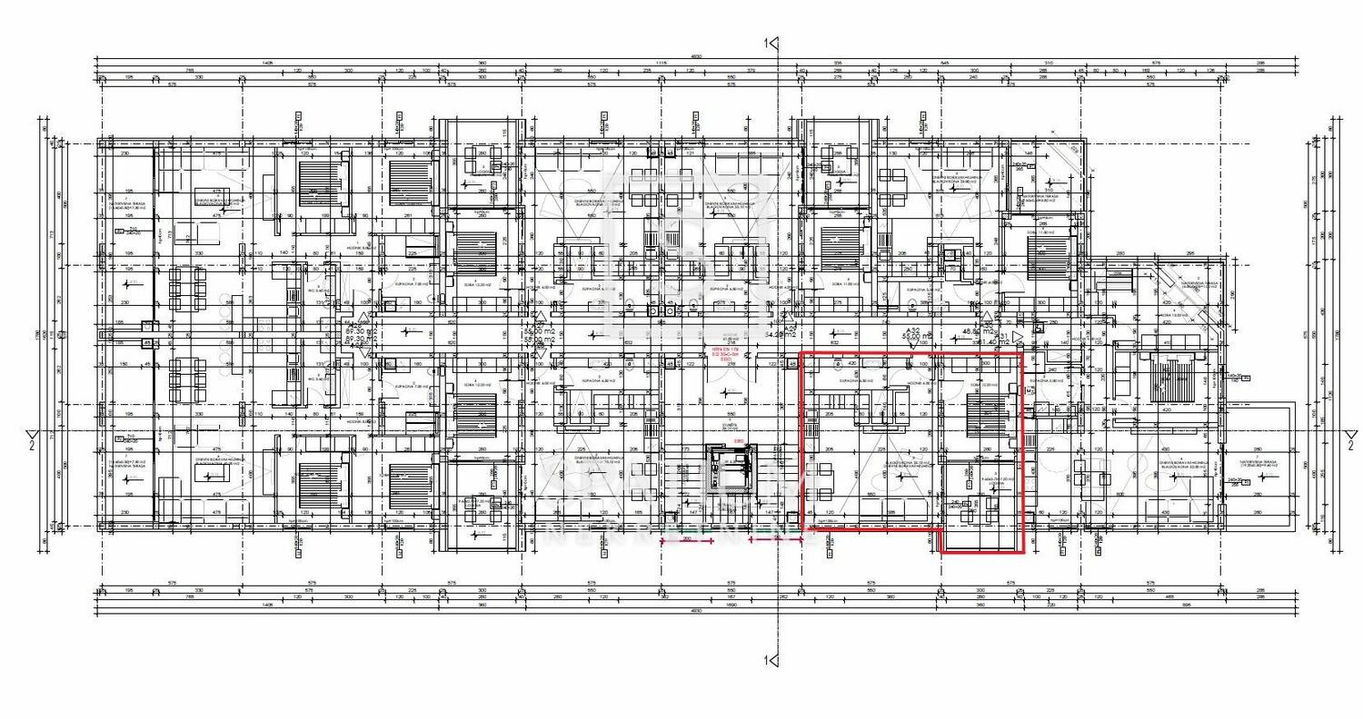
STAN NA 3. KATU sastoji se od:
- hodnik 4 m2
- kupaona 6.50 m2
- spavaća soba 12.20 m2
- dnevni boravak, blagovaona i kuhinja 25.10 m2
- loggia 9.60 x 0.75 = 7.20
________________________
Kontakt info
- Agencija
-
Spatium Nekretnine
- Kontakt osoba
- Vedran Prica
- Telefon 1
- + 385 51 272... Prikaži broj
- Telefon 2
- + 385 95 812 ... Prikaži broj
- Adresa
- Šetalište Andrije Kačića Miošića 5
- Rijeka Centar
- Rijeka, Hrvatska
Slične nekretnine
PULA, JEDNOSOBAN STAN A24 NA 2.KATU 55 m2
- 176.000€ 55 m2
PULA, JEDNOSOBAN STAN A20 NA 2.KATU 55 m2
- 176.000€ 55 m2
ISTRA, PULA - Obiteljski stan na traženoj lokaciji
- 176.300€ 55 m2
ISTRA, PULA - Atraktivna novogradnja na traženoj lokaciji
- 176.300€ 55 m2
ISTRA, PULA - Luksuzna novogradnja na odličnoj lokaciji !
- 180.400€ 56 m2
Pula – Moderan stan u vrhunskoj novogradnji
- 182.500€ 46 m2
Prodaja dvosobnog stana s većom terasom. Pula - Veli Vrh
- 183.600€ 62 m2