Pula! U ponudi je stan na 3. katu višestambene zgrade s liftom. Stan će s...
Pula
181.170€
3 235 €/m2
Tip
Stan
Površina
56 m2
Struktura
2
Detalji
- Tip
- Stan
- Struktura
- 2
- Cijena
- 181.170€
- Površina
- 56 m2 (3 235 €/m2)
- Površina zemljišta
- 0
- Kat
- 3
- Ukup. katova
- 7
- Udaljenost od mora
- 2500m
- Lift
- Da
- Parkirno mjesto
- Da
- Ažuriran
- 21.10.2025
- ID
- 92976
Opis
Pula!
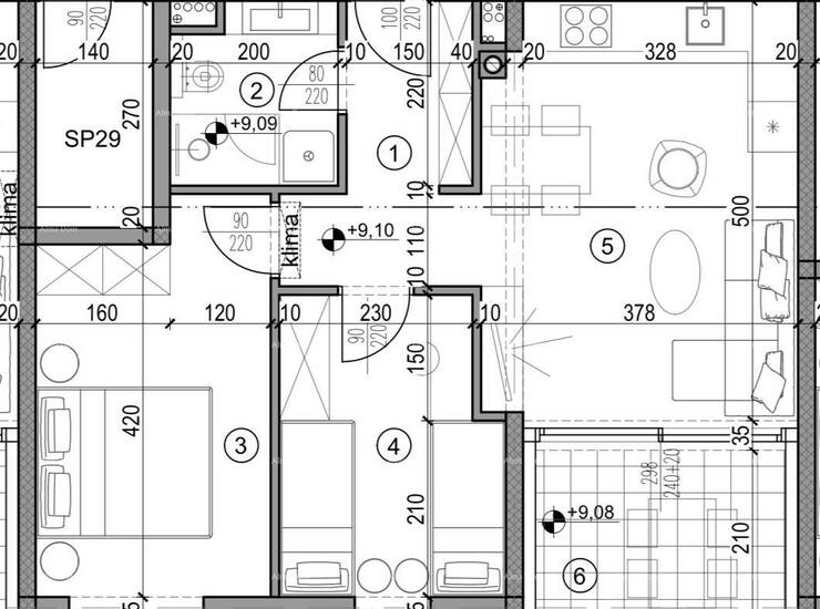
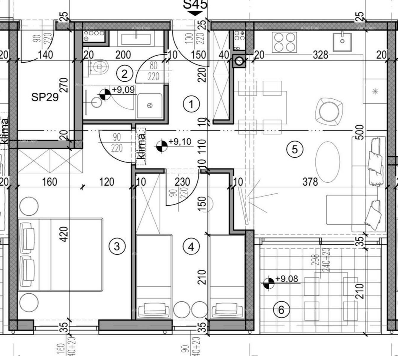
U ponudi je stan na 3. katu višestambene zgrade s liftom. Stan će se sastojati od ulaznog hodnika+garderoba, 2 spavaće sobe, kupaonice, kuhinje s blagavaonom te dnevnim boravkom i loggia-om.
OPREMA:
-el.podno grijanje u kupaonici
-el.bojler Ariston Velis
-protuprovalna ulazna vrata
-inverter klima uređaj
-keramika
-laminat
-unutarnja bijela sobna vrata
Stanovi se prodaju završeni, po sistemu"ključ u ruke".
Odlična lokacija. Blizina shoping centra te samog centra Pule - 1 km.
Zgrada će imati dva ulaza, dva lifta, 6 katova.
Više slobodnih stanova i ponudi.
Stanu pripada parkirno mjesto i spremište od 3.78 m2 uz dodatnu nadoplatu.
Cijena stana s parkirnim mjestom i spremištem iznosi: 200.175 eura.
*U cijenu je uključen PDV.
Planirani završetak građevinskih radova je kraj 2026. godine.
za dodatne informacije, molimo kontaktirajte:
Azra Valjevac
+ 385 91 611 ... Prikaži broj
azra@almadominvest.com
+ 385 98 420... Prikaži broj
Kontakt info
- Agencija
-
Alma Dom
- Kontakt osoba
- Alma Dom
- Telefon 1
- + 385 52 213... Prikaži broj
- Telefon 2
- + 385 52 210... Prikaži broj
- Adresa
- Istarska 10
- Pula, Hrvatska