ISTRA, PULA OKOLICA - Novogradnja na traženoj lokaciji
Škatari, Pula
213.000€
3 000 €/m2
Tip
Stan
Površina
71 m2
Struktura
3
Detalji
- Tip
- Stan
- Struktura
- 3
- Cijena
- 213.000€
- Površina
- 71 m2 (3 000 €/m2)
- Kat
- 2
- Grijanje
- Sustav grijanja, klimatizacije i ventilacije
- Terasa
- Da
- Udaljenost od mora
- 3700m
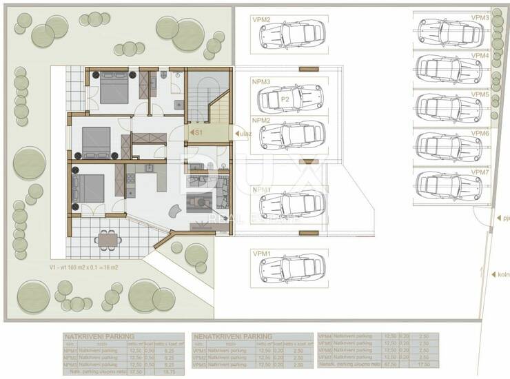
- Parkirno mjesto
- Da
- Ažuriran
- 07.12.2025
- ID
- 60854
Opis
ISTRA, PULA OKOLICA - Novogradnja na traženoj lokaciji
Ponosno predstavljamo projekt ekskluzivne moderne zgrade smještene na jednoj od najtraženijih lokacija na ovome dijelu Pule. Na svega par minta vožnje autom od stana nalazi se predivna uređena plaža, kao i brojni drugi sadržaj potreban za svakodnevni siguran i miran boravak.
Riječ je o modernoj zgradi koja se sastoji od sveukupno tri etaže i pet stambenih jedinica. Riječ je novogradnji vrhunske kvalitete vrijedne vaše pažnje. Lokacija na kojoj se zgrada nalazi svojim budućim vlasnicima osigurava jedinstven boravak, kao i što predstavlja sigurnu investiciju s gotovo osiguranim povratom na uloženo.
Uputite se s nama prema ovoj prilici, te možda upravo ovdje, potraga za vašom nekretninom iz snova pronađe sretan kraj.
OPIS STANA:
Predstavljamo stan smješten na 2. katu novogradnje, koji se sastoji od sveukupno 71m2 prostora, od kojih stanu pripada stambeno 66,87m2, dok se ostatak kvadrature odnosi na privatno parking mjesto i spremište.
Unutar svojih 66,87m2 stambenoga prostora, ovaj se stan sastoji do ulaznoga predvorja , koje ujedno dijeli stan na dio namijenjen dnevnome životu i spavaći dio stana.
Dnevni prostor stana koncipiranome je po sistemu "open space" prostor , u kojemu se smjestila prostrana kuhinja s dovoljno mjesta, prostrana blagovaona za cijelu obitelj, te veći dnevni boravak koji je idealan za druženja i opuštanje nakon aktivnoga dana. Iz dnevnoga boravka proteže se pr
Kontakt info
- Agencija
-
DUX NEKRETNINE
- Kontakt osoba
- Dux Nekretnine
- Telefon 1
- + 385 51 518... Prikaži broj
- Telefon 2
- + 385 91 480 ... Prikaži broj
- Adresa
- Tizianova 8
- Rijeka, Hrvatska
Slične nekretnine
ISTRA, PULA OKOLICA - Novogradnja na traženoj lokaciji
- 213.000€ 71 m2
ISTRA, PULA - Novogradnja! Stan s dvije spavaće sobe!
- 224.000€ 54 m2
ISTRA, PULA OKOLICA - Novogradnja na traženoj lokaciji
- 255.000€ 85 m2
ISTRA, PULA Novogradnja! Prostrani stan s tri spavaće sobe!
- 261.000€ 93 m2
ISTRA, PULA - Novogradnja na periferiji grada!
- 139.900€ 40 m2