ISTRA, PULA - Stan u novogradnji s lođom
Štinjan, Pula
176.428€
3 920 €/m2
Tip
Stan
Površina
45 m2
Struktura
2
Detalji
- Tip
- Stan
- Struktura
- 2
- Cijena
- 176.428€
- Površina
- 45 m2 (3 920 €/m2)
- Kat
- 1
- Grijanje
- Sustav grijanja, klimatizacije i ventilacije
- Udaljenost od mora
- 800m
- Parkirno mjesto
- Da
- Ažuriran
- 27.04.2026
- ID
- 107143
Opis
ISTRA, PULA - Stan u novogradnji s lođom
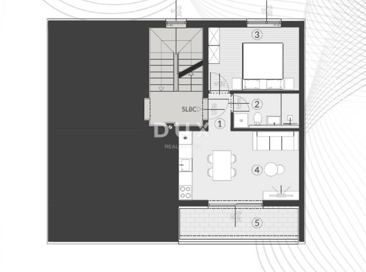
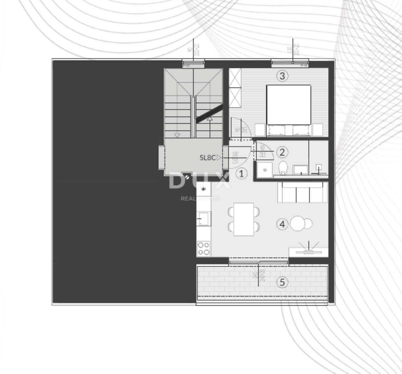
U sklopu modernog stambenog projekta u Štinjanu, na prodaju je stan stambene površine 38,77 m² smješten u prvom katu manje stambene građevine s ukupno četiri stambene jedinice, što osigurava dodatnu privatnost i mirno okruženje.
Ulaz je osiguran iz skupnog stubišta.
RASPORED STANA
- Hodnik — 1,65 m²
- Dnevni boravak + kuhinja + blagovaonica — 16,16 m²
- Spavaća soba — 11,20 m² (sjeverna orijentacija)
- Kupaonica — 4,49 m²
- Lođa — 5,27 m²
Dodatna vrijednost koja je uključena u cijeni
- Parkirno mjesto PM3 — 12,50 m² po koef. 0,25 - 3,12 m²
- Spremište S3 — 4,40 m² po koef. 0,75 - 3,30 m²
Stan je dio moderne novogradnje planirane izgradnje 2028. godine, koja nudi visoku kvalitetu gradnje, suvremenu arhitekturu i mogućnost odabira završnih materijala.
PREDNOSTI STANA
*Parkirno mjesto
*Vlastito spremište
*Funkcionalan raspored
*Mirna lokacija
*Idealno za stanovanje ili investiciju
*Novogradnja visoke kvalitete
*Omogućena personalizacija kupaonskih pločica i podnih obloga, sve keramičke pločice su I. klase renomiranih talijanskih proizvođača.
Ovaj stan predstavlja idealnu priliku za miran obiteljski život, ali i sigurnu investiciju na jednoj od najperspektivnijih lokacija u okolici Pule.
Za više informacija o projektu i dostupnosti slobodno nas kontaktirajte.
Poštovani klijenti, agencijska provizija naplaćuje se u skladu s Općim uvjetima poslovanja:
www.dux-nekretnine.hr/
Kontakt info
- Agencija
-
DUX NEKRETNINE
- Kontakt osoba
- Dux Nekretnine
- Telefon 1
- + 385 51 518... Prikaži broj
- Telefon 2
- + 385 91 480 ... Prikaži broj
- Adresa
- Tizianova 8
- Rijeka, Hrvatska
Slične nekretnine
ISTRA, PULA - Stan u novogradnji s terasom
- 176.428€ 45 m2
ISTRA, PULA - Stan u novogradnji s terasom
- 176.428€ 42 m2
ISTRA, PULA - Stan u novogradnji s vrtom
- 176.428€ 40 m2
ISTRA, PULA - Stan u novogradnji s terasom
- 176.428€ 45 m2
ISTRA, PULA - Stan u novogradnji s terasom
- 176.428€ 42 m2
Stan na vrhunskoj lokaciji - novogradnja
- 176.400€ 46 m2
Jednosoban stan u prizemlju - blizina plaže - PRILIKA
- 176.400€ 40 m2
Jednosoban stan sa terasom blizu mora! Štinjan!
- 177.000€ 39 m2