ISTRA, PULA - Moderna novogradnja! 1. kat, natkrivena terasa!
Veli vrh, Pula
242.000€
3 903 €/m2
Tip
Stan
Površina
62 m2
Struktura
3
Detalji
- Tip
- Stan
- Struktura
- 3
- Cijena
- 242.000€
- Površina
- 62 m2 (3 903 €/m2)
- Grijanje
- Sustav grijanja, klimatizacije i ventilacije
- Terasa
- Da
- Udaljenost od mora
- 5800m
- Garaža
- Da
- Ažuriran
- 07.10.2025
- ID
- 92035
Opis
ISTRA, PULA - Moderna novogradnja! 1. kat, natkrivena terasa!
OPIS LOKACIJE:
Veli Vrh je jedan od najpoželjnijih kvartova grada Pule. Obzirom da se upravo u tom kvartu nalaze jedni od najboljih škola i vrtića, te obzirom na odličnu povezanost s centrom grada i prekrasnim plažama koje se nalaze u obližnjem Štinjanu i Fažani, upravo to čini Veli Vrh lokacijom od interesa.
Baš na Velom vrhu, malo povučeno od glavne ceste, nalazi se ova prekrasna moderna zgrada.
OPIS NEKRETNINE:
Nova, moderna zgrada s vlastitom podzemnom garažom i liftom kreće sa gradnjom te traži svoje nove stanare i vlasnike. Zgrada se sastoji od 4 stambene jedinice od kojih je svaka opremljena podnim grijanjem s dizalicom topline, inverter klima uređajima u svakoj prostoriji stana, kombinacijom keramike i parketa kao podnih obloga, električnim roletama i komarnicima na svim prozorima te odličnim rasporedom prostorija i samog tlocrta koji pruža komfor i ugodan boravak.
OPIS STANA:
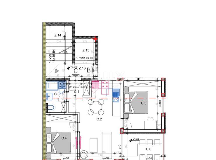
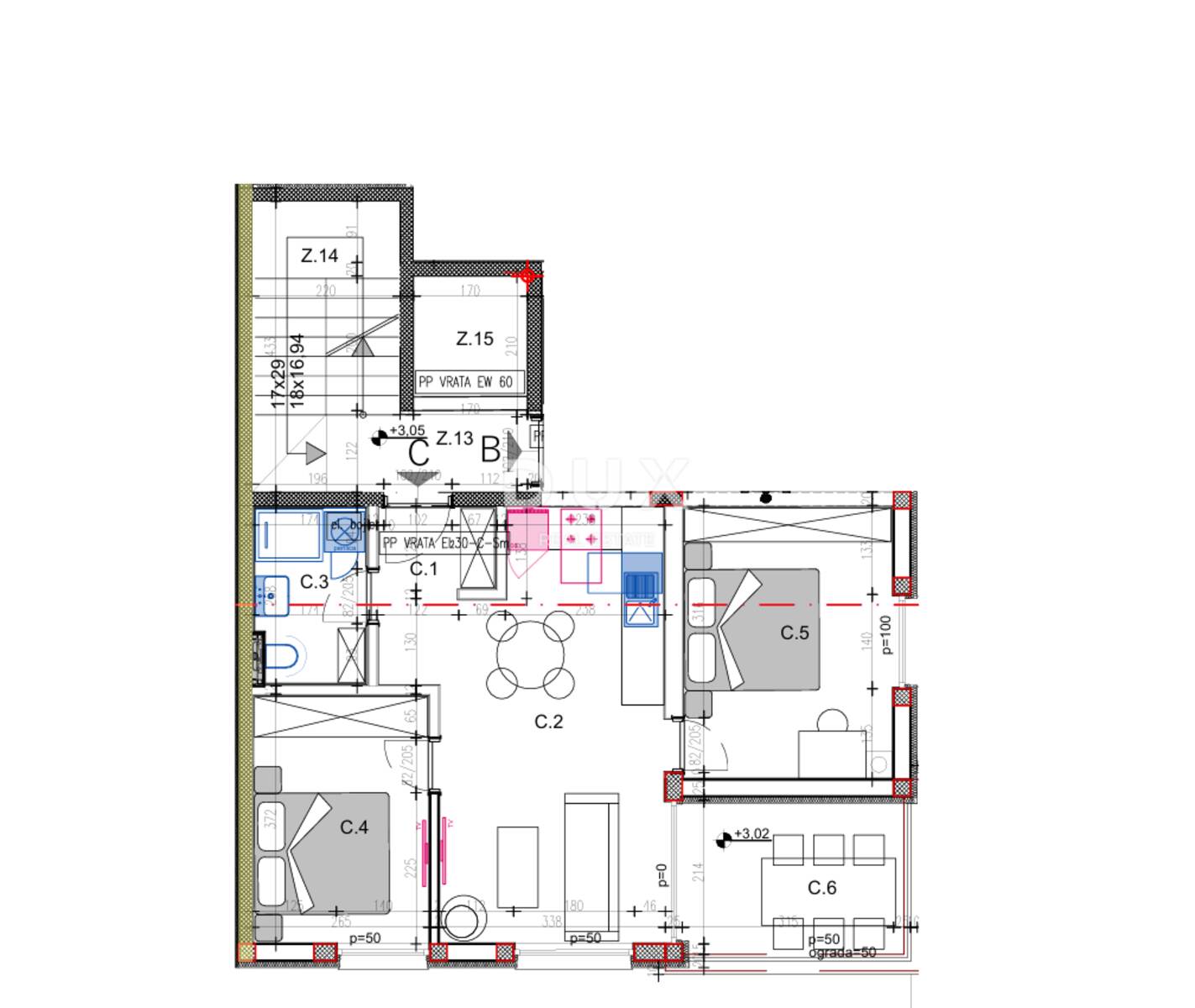
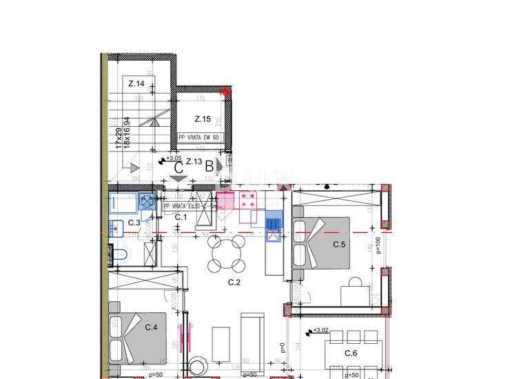
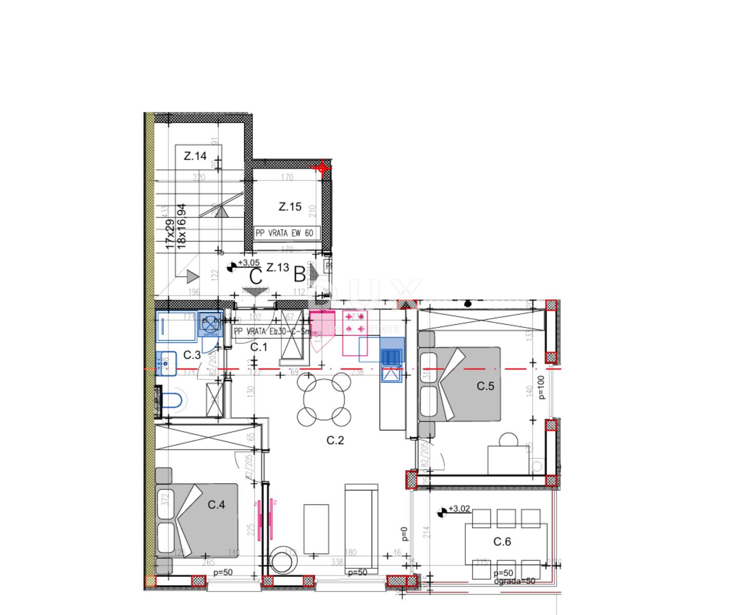
Zgrada B, stan C. Stan na prvom katu s natkrivenom terasom!
Stan se sastoji od ulaznog hodnika, dnevnog boravka s kuhinjom i blagovaonicom, dvije spavaće sobe, kupaonice i natkrivene terase ukupne stambene površine 54.26m2.
Stanu pripadaju i spremište te parkrino mjesto u podzemnoj garaži (br. 2). Sa svim ostalim pripatcima koje računamo prema zadanim koeficijentima, dolazimo do ukupne kvadrature od ukupno 62,64m2.
Za sve dodatne informacije o nekretnini te dogovore za razgledavanje iste, na
Kontakt info

- Agencija
-
DUX NEKRETNINE
- Kontakt osoba
- Dux Nekretnine
- Telefon 1
- + 385 51 518... Prikaži broj
- Telefon 2
- + 385 91 480 ... Prikaži broj
- Adresa
- Tizianova 8
- Rijeka, Hrvatska
Slične nekretnine

PULA, DVOSOBAN STAN 1. KAT, STAN C - ZGRADA B
- 242.000€ 62 m2

ISTRA, PULA - Stan 68,63 m2 u prizemlju.
- 234.700€ 68 m2

Istra, Pula - Veli Vrh, 82m2, 2s+db, dvije lođe
- 229.000€ 82 m2

Trosobni stan s dva balkona i pogledom, okolica Pule
- 229.000€ 108 m2

Pula, Veli Vrh, uređen stan na mirnoj lokaciji
- 260.000€ 78 m2

ISTRA, PULA - Stan 80,44 m2 u prizemlju sa vrtom!
- 265.300€ 80 m2

Istra, Pula - Veli Vrh, 75m2, 2s+db, dvije lođe
- 217.000€ 75 m2

Prilika! Stan na Velom Vrhu - novogradnja!
- 210.000€ 62 m2

ISTRA, PULA - Stan 59,09 m2 u blizini mora!
- 209.200€ 59 m2

ISTRA, PULA Prozračni stan s liftom na super lokaciji!
- 209.000€ 75 m2

ISTRA, PULA - Stan 58,34 m2 u prizemlju sa vrtom!
- 207.200€ 58 m2