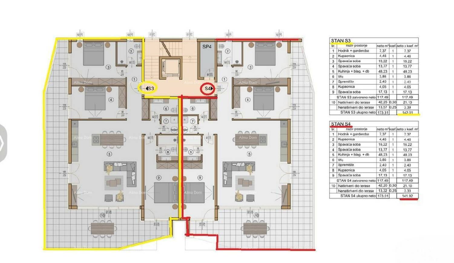
Rovinj! Blizina centra grada ! S4 U ponudi je stan na 1. katu buduće luksu...

Rovinj

877.000€

6 176 €/m2

Tip

Stan

Površina

142 m2

Struktura

3

Detalji

Tip
Stan
Struktura
3
Cijena
877.000€
Površina
142 m2 (6 176 €/m2)
Površina zemljišta
0
Kat
1
Ukup. katova
3
Udaljenost od mora
500m
Lift
Da
Garaža
Da
Parkirno mjesto
Da
Ažuriran
28.10.2025
ID
75848

Opis

Rovinj! Blizina centra grada ! S4
U ponudi je stan na 1. katu buduće luksuzne novogradnje.
Stan se sastoji od hodnika, kupaonice, tri spavaće sobe, dvije kupaonice, zasebnog toaleta, spremišta , kuhinje s blagavaonicom te dnevnim boravkom, iz dnevnog boravka izlaz na veliku prostranu terasu od cca 56 m2..
Luksuzna novogradnja. Svaki stan će imati podno grijanje na toplinsku pumpu.Klimatizirano. Video nadzor. Video parlafon.
Protuprovalna ulazna vrata. Parket u sobama, prvoklasna keramika.
Lift u zgradi. Dva parkirna mjesta u garaži.
Započeta gradnja. Predviđeni završetak 2025 godine.

INFO:
azra@almadominvest.com
+ 385 91 611... Prikaži broj
jelena@alma-nekretnine.com
+ 385 98 323... Prikaži broj

Kontakt info

Agencija
Alma Dom
Kontakt osoba
Alma Dom
Telefon 1
+ 385 52 213... Prikaži broj
Telefon 2
+ 385 52 210... Prikaži broj
Adresa
Istarska 10
Pula, Hrvatska

Kontakt forma