BRODARICA- NOVI PROJEKT- S3 NA DRUGOM KATU NOVOGRADNJE
Brodarica, Šibenik
229.431€
3 100 €/m2
Tip
Stan
Površina
74 m2
Struktura
3
Detalji
- Tip
- Stan
- Struktura
- 3
- Cijena
- 229.431€
- Površina
- 74 m2 (3 100 €/m2)
- Grijanje
- Sustav grijanja, klimatizacije i ventilacije
- Terasa
- Da
- Udaljenost od mora
- 550m
- Parkirno mjesto
- Da
- Ažuriran
- 25.11.2025
- ID
- 95997
Opis
NOVI PROJEKT – MODERNI STANOVI U BRODARICI (ŠIBENIK)
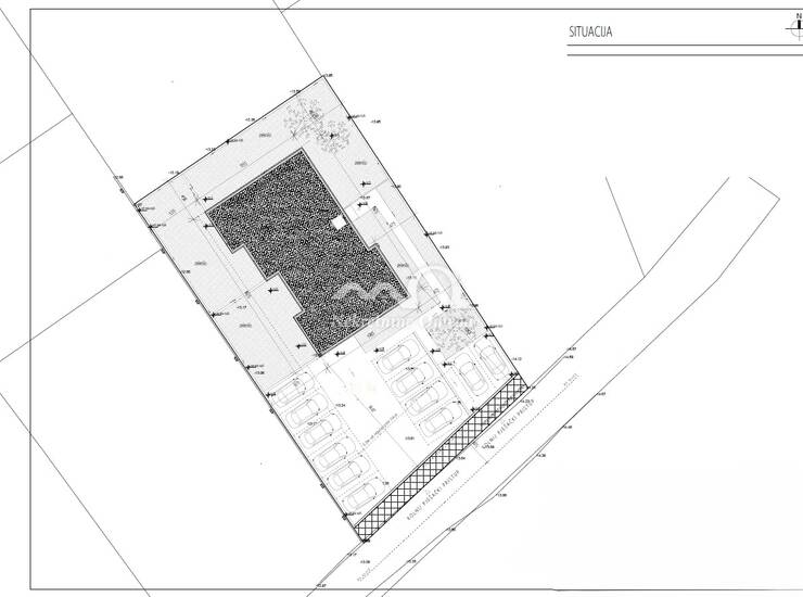
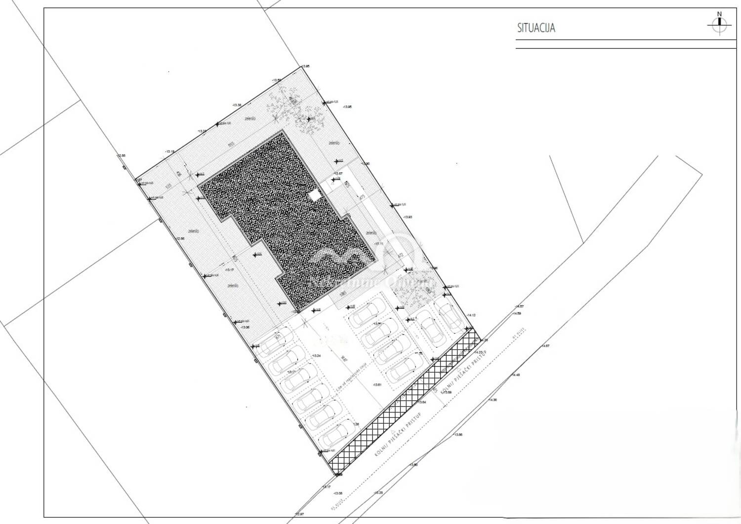
Predstavljamo vam novi projekt moderne stambene zgrade s ukupno 6 stanova, smješten na mirnoj i izuzetno poželjnoj lokaciji u Brodarici, nadomak Šibenika. Zgrada se nalazi svega 250 m od osnovne škole, 550 m od plaže te 600 m od centra, što je čini idealnom za obiteljski život, odmor ili investiciju.
Lokacija je okružena obiteljskim kućama i svim ključnim sadržajima – škola, vrtić, trgovina i plaža nalaze se u neposrednoj blizini. Projekt se sastoji od prizemlja, prvog i drugog kata, a u gradnji se koriste kvalitetni materijali i suvremeni standardi.
KLJUČNE ZNAČAJKE GRADNJE
10 cm stiropor fasada
Protuprovalna ulazna vrata
Staklene ograde na terasama
Električno podno grijanje u dnevnom boravku i kupaonicama
Moderne sanitarije
Laminat u spavaćim sobama
TV/SAT priključci u dnevnom boravku i spavaćim sobama
Visokokvalitetne keramičke pločice
PVC stolarija s električnim roletama i komarnicima
Inverter klima uređaji u dnevnom boravku i spavaćim sobama
Priključak na gradsku kanalizaciju
Asfaltirani pristupni put
Stanovi u prizemlju imaju pripadajući vrt
Svakom stanu pripadaju dva parkirna mjesta
Početak gradnje: 12/2025
Planirani završetak i useljenje: kraj 2026.
S3 – 74,01 m² (69,01 m² + 2 parkinga 25 m²)
Terasa 9,72 m²
Cijena: 229.431 €
Ovaj izvrsno organizirani stan nalazi se na drugom katu i uključuje:
hodnik
kupaonicu
2 spavaće sobe
kuhinju s blagovaonicom
dnevni bo
Kontakt info
- Agencija
-
Nekretnine Omega
- Kontakt osoba
- Paolo Miškić
- Telefon 1
- 095527... Prikaži broj
- Telefon 2
- 091160... Prikaži broj
- Adresa
- Put Male Gospe 2
- Tribunj
- Šibenik, Hrvatska
Slične nekretnine
BRODARICA- NOVI PROJEKT- S1 NA PRVOM KATU- 74.01m2
- 229.431€ 74 m2
Dvosoban stan, par minuta od Rezališta, 2 parkinga
- 238.590€ 72 m2
BRODARICA, S1 U PRIZEMLJU S POGLEDOM NA MORE
- 239.000€ 73 m2
BRODARICA- NOVI PROJEKT- S2 NA PRVOM KATU- 70.60m2- PRILIKA
- 218.860€ 70 m2
BRODARICA- NOVI PROJEKT- S4 NA DRUGOM KATU NOVOGRADNJE
- 218.860€ 70 m2
BRODARICA- NOVI PROJEKT- A2 U PRIZEMLJU- 2SB+ DB+ VRT 70m2
- 241.061€ 78 m2
Dvosoban stan par minuta od rezališta, 2 parkinga
- 242.913€ 73 m2
Jednosoban stan, par minuta od Rezališta, 2 parkinga
- 214.642€ 63 m2
Jednosoban stan par minuta od Rezališta, 2 parkinga
- 214.064€ 62 m2
Jednosoban stan, samo par minuta od Rezališta, 2 parkinga
- 213.758€ 62 m2