Dvosoban stan: Splitm Firule, 63 m2
Firule, Split
0€
0 €/m2
Tip
Stan
Površina
63 m2
Struktura
2
Detalji
- Tip
- Stan
- Struktura
- 2
- Cijena
- 0€
- Površina
- 63 m2 (0 €/m2)
- Kat
- 1
- Ažuriran
- 07.10.2025
- ID
- 92610
Opis
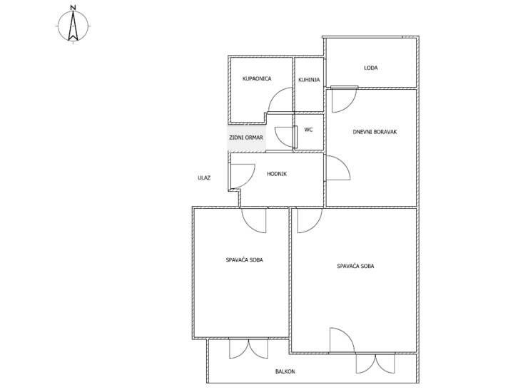
Prodaje se stan površine 63,5 m2 smješten na prvom katu četverokatnice, u atraktivnom dijelu Splita, na Firulama.
Stan se nalazi u mirnom i poželjnom kvartu Firule, prepoznatljivom po blizini svih važnih sadržaja, što ga čini izuzetno pogodnim za svakodnevni život. Orijentacija stana je na sjever i jug, što omogućuje optimalnu osvijetljenost i ugodan boravak tijekom cijelog dana.
Posebnu vrijednost ovoj nekretnini daje prostrani balkon površine 7,5 m2, kao i lođa, koji pružaju dodatan prostor za opuštanje ili druženje. Stan je opremljen klima uređajem te grijanjem na čvrsta goriva, što omogućuje ugodnu temperaturu u svim godišnjim dobima.
Firule su poznate kao kvart s odličnom prometnom povezanošću i brojnim sadržajima u blizini – od plaža, zdravstvenih ustanova, škola do trgovačkih centara i javnog prijevoza, pružajući visoku razinu udobnosti i jednostavnosti svakodnevnog života.
Za više informacija ili dogovor oko razgledavanja, slobodno nas kontaktirajte. Ovaj stan predstavlja odličnu priliku za investiciju ili ugodan obiteljski dom u jednom od najtraženijih dijelova Splita.
- - - - -
Cijenjeni potencijalni kupci!
Razgled nekretnine moguć je isključivo uz potpis Ugovora o posredovanju, u svrhu zaštite imovine vlasnika nekretnine od posjeta neregistriranih osoba, a u skladu sa Zakonom o zaštiti podataka i Zakonom o posredovanju u prometu nekretnina.
Nađete li ovu nekretninu po nižoj cijeni u oglasniku
Kontakt info

- Agencija
-
Plexus d.o.o.
- Kontakt osoba
- Plexus Nekretnine
- Telefon 1
- + 385 91 152 ... Prikaži broj
- Telefon 2
- + 385 98 218... Prikaži broj
- Adresa
- Stinice 12
- Split, Hrvatska