ISTRA, UMAG - Stan na 1. katu novogradnje
Umag
241.000€
3 442 €/m2
Tip
Stan
Površina
70 m2
Struktura
3
Detalji
- Tip
- Stan
- Struktura
- 3
- Cijena
- 241.000€
- Površina
- 70 m2 (3 442 €/m2)
- Kat
- 1
- Grijanje
- Podno grijanje/Dizalica topline
- Udaljenost od mora
- 1600m
- Parkirno mjesto
- Da
- Ažuriran
- 25.04.2026
- ID
- 82082
Opis
ISTRA, UMAG - Stan u novogradnji, pogled more
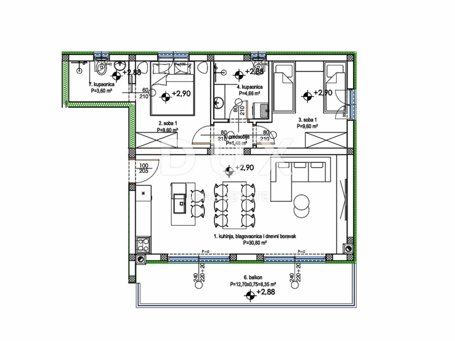
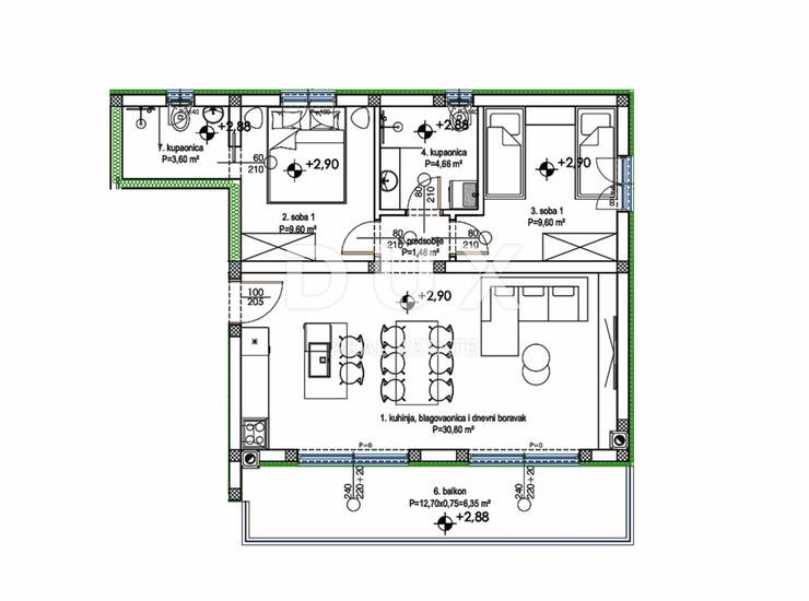
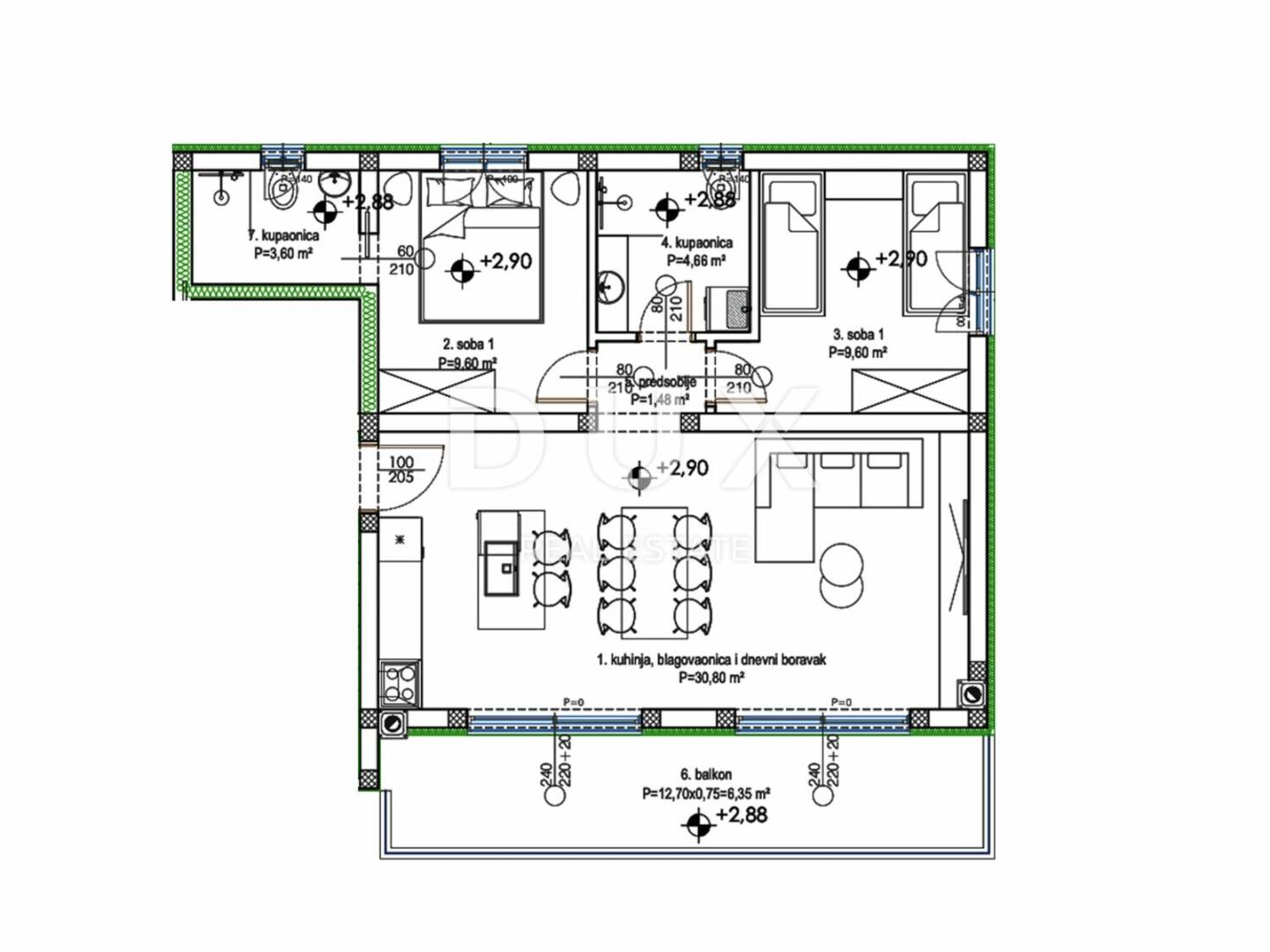
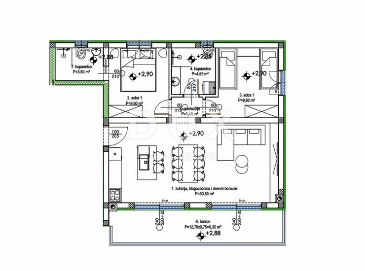
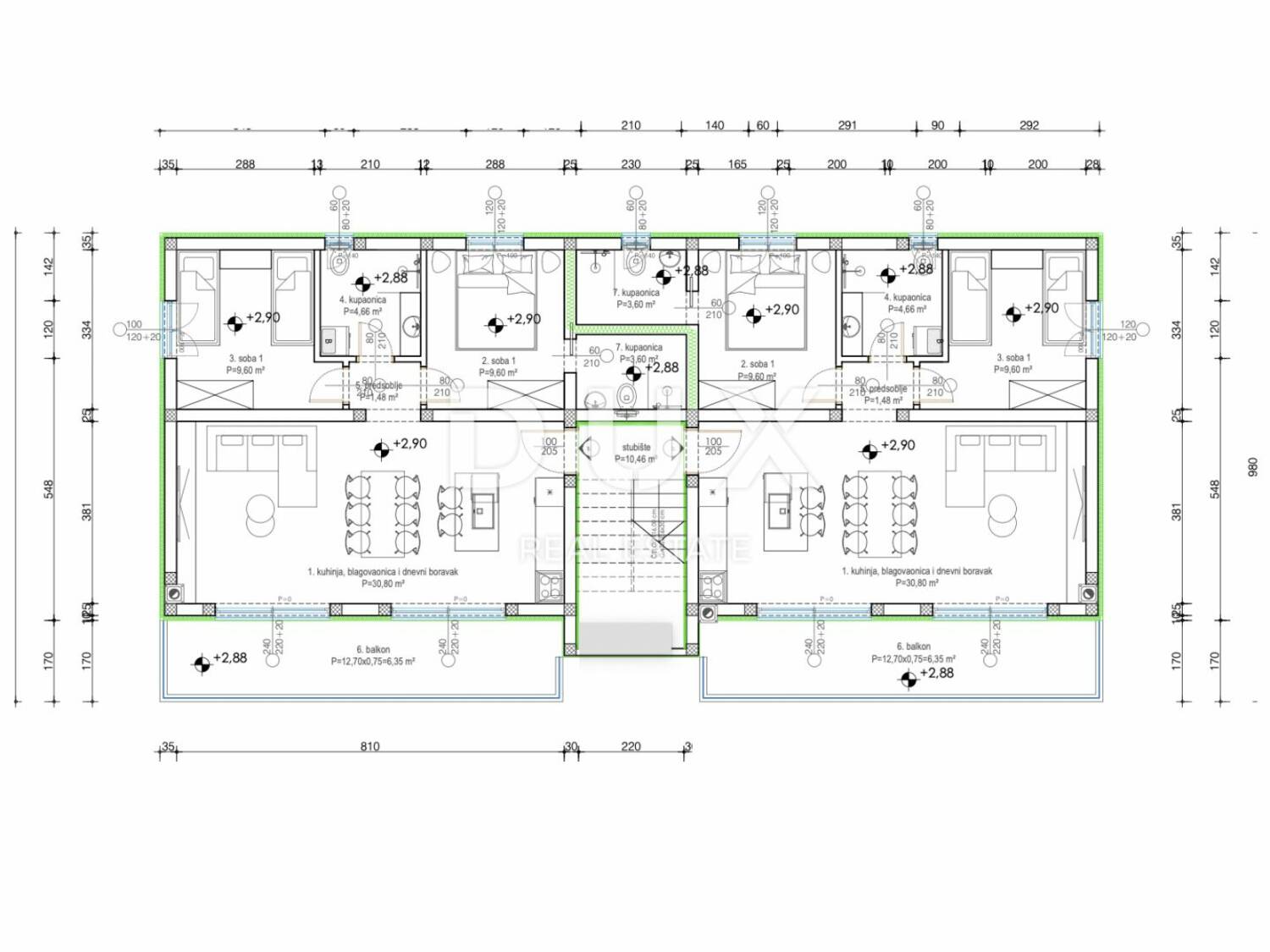
Predstavljamo vam stan u novogradnji na atraktivnoj lokaciji u Umagu, idealan za mlade obitelji koje traže sigurno, moderno i funkcionalno mjesto za život. Ovaj stan na prvom katu zgrade prostire se na 56,14 m², uz natkriveni balkon od 12,70 m². Ukupna obračunska površina stana iznosi 70,52 m², uključujući i spremište od 3,37 m².
Izvrsna vrijednost za novogradnju
Ovdje se nudi kvaliteta i suvremeni dizajn po cijeni koja je iznimno konkurentna za novogradnje u ovom dijelu Istre. To znači više prostora i komfora za vašu obitelj, bez kompromisa na kvalitetu života.
Funkcionalan raspored
Stan ima dvije spavaće sobe, od kojih je jedna s vlastitom kupaonicom, te dodatnu kupaonicu i prostrani dnevni boravak s kuhinjom i blagovaonicom – sve osmišljeno za udobnost i funkcionalnost svakodnevnog života.
Sigurna i mirna lokacija
Stan se nalazi u mirnom kvartu, idealnom za odrastanje djece, s minimalnim prometom i puno zelenila.
Blizina svih sadržaja
Škole, vrtići, trgovine i javni prijevoz nalaze se u neposrednoj blizini, što olakšava svakodnevne obiteljske obaveze.
Dva parkirna mjesta i spremište
Stan raspolaže s dva vlastita parkirna mjesta i spremištem u prizemlju veličine 3,37 m², što osigurava dodatni prostor i praktičnost.
Ugodan život tijekom cijele godine
Klima uređaj i podno grijanje jamče komfor u svim godišnjim dobima.
Dodatne prednosti
Natkriveni balkon s pogledom na more – s
Kontakt info
- Agencija
-
DUX NEKRETNINE
- Kontakt osoba
- Dux Nekretnine
- Telefon 1
- + 385 51 518... Prikaži broj
- Telefon 2
- + 385 91 480 ... Prikaži broj
- Adresa
- Tizianova 8
- Rijeka, Hrvatska
Slične nekretnine
ISTRA, UMAG - Stan na 1. katu novogradnje s pogledom na more
- 241.000€ 70 m2
ISTRA, UMAG - Stan u novogradnji, pogled more
- 241.000€ 69 m2
Umag! Stan s pogledom na more i 2 spavaće sobe!
- 241.000€ 66 m2
UMAG, MODERAN DVOSOBAN STAN NA PRVOM KATU S POGLEDOM NA MORE
- 241.000€ 75 m2
UMAG, MODERAN DVOSOBAN STAN S POGLEDOM NA MORE
- 241.000€ 75 m2
UMAG, MODERAN DVOSOBAN STAN S POGLEDOM NA MORE
- 241.000€ 75 m2
UMAG, MODERAN DVOSOBAN STAN S POGLEDOM NA MORE
- 241.000€ 75 m2
Umag! Stan s pogledom na more i 2 spavaće sobe!
- 241.000€ 66 m2
Umag, novogradnja! Odličan stan s 2 spavaće sobe!
- 241.000€ 66 m2
Umag! Odličan stan s 2 spavaće sobe u izgradnji!
- 241.000€ 66 m2
Umag! Odličan stan s 2 spavaće sobe u izgradnji!
- 241.000€ 66 m2