Zagreb,Oporovec,4-S 87m2(S2P4) u prizemlju s parkingom,garažom i vrtom

Oporovec, Gornja Dubrava, Zagreb

287.000€

3 337 €/m2

Tip

Stan

Površina

86 m2

Struktura

4

Detalji

Tip
Stan
Struktura
4
Cijena
287.000€
Površina
86 m2 (3 337 €/m2)
Grijanje
Centralno etažno električno grijanje,Klima uređ
Parkirno mjesto
Da
Ažuriran
15.04.2026
ID
80150

Opis

KUPNJA direktno od investitora,uz povrat pola PDV-a na prvu nekrentinu. Kupac ne plaća agencijsku proviziju.
U Zagrebačkoj gradskoj četvrti Gornja Dubrava u zelenoj oazi naselja Oporovec smjestio se ekskluzivan projekt novogradnje s pet modernih stambenih zgrada visokog standarda gradnje, elegantnog dizajna i ekoloških rješenja. Ovdje se spajaju kvaliteta, komfor i održivost, pružajući savršeno mjesto za život.
 Karakteristike stanova:
✅ Visokokvalitetna gradnja – AB konstrukcija, fasada sa stiropor izolacijom 15 cm, aluminijska vanjska stolarija ✅ Energetska učinkovitost – multi sustav grijanja i hlađenja (dizalice topline, klima uređaji), ALU rolete s motorima, komarnici ✅ Vrhunski interijer – parket I. klase, vrhunska keramika i sanitarije ✅ Sigurnost i udobnost – protuprovalna vrata, PVC stolarija s troslojnim staklom, lift, video portafon ✅ Stanovi prilagođeni različitim potrebama obitelji – raznovrsni tlocrti za udobnost svih generacija ✅ Osigurano parkiranje – garaža i vanjsko parkirno mjesto uz svaki stan
Izvrsna lokacija – mir i blizina sadržaja:100 m do autobusne stanice (povezanost s okretištem Dubrava) 3 km do tramvajskih linija na Aveniji DubravaBlizina Garden Malla, škola, vrtića, ljekarni, sportskih sadržaja
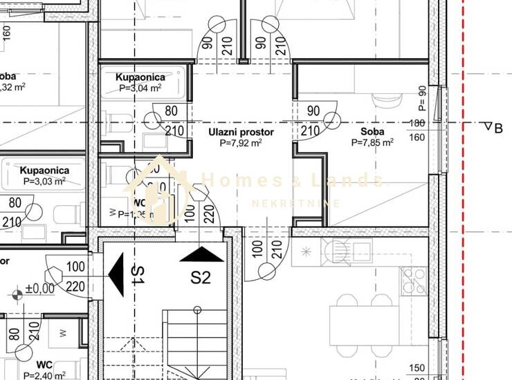
Stan S2 na prizemlju zgrade P4,korisne površine 244,04m2, obračunske  92,57 m2 sastoji se od ulaznog hodnika,kuhinje s blagovaonicom i dnevnog boravka,kupaonice,velike terase,tri komforne spavaće sobe, kupaonice,wc-a,dvorišta s vrtom i zelenom površinom garaže na -1 etaži ,spremišta te vanjskog parkinga.
Vlasništvo uredno 1/1. Mogućnost kupnje kreditom.
Useljenje početak  6/2026 godine. INFO: 098 517... Prikaži broj  

Kontakt info

Homes & Lands Nekretnine
Kontakt osoba
Ilija Tatarovć
Mobilni telefon
+ 385 98 517... Prikaži broj
Zagreb, Hrvatska

Kontakt forma

Slične nekretnine