ISTRA, ŽMINJ - Prostran stan u prizemlju
Žminj
178.500€
2 625 €/m2
Tip
Stan
Površina
68 m2
Struktura
3
Detalji
- Tip
- Stan
- Struktura
- 3
- Cijena
- 178.500€
- Površina
- 68 m2 (2 625 €/m2)
- Površina zemljišta
- 145
- Kat
- Prizemlje
- Grijanje
- Sustav grijanja, klimatizacije i ventilacije
- Terasa
- Da
- Udaljenost od mora
- 23000m
- Ažuriran
- 22.10.2025
- ID
- 37203
Opis
ISTRA, ŽMINJ - Prostran stan u prizemlju
Ako svi putovi u Europi vode u Rim, onda svi putevi u Istri vode u Žminj - srce Istre na nadmorskoj visini od 379 metara. Od davnina Žminj je bio važno prometno čvorište. Spajao je cijeli istarski poluotok. Zbog izuzetnih prirodnih ljepota, beskrajnih livada, vinograda, bogatih polja, drevnih šuma i novootkrivenih špilja, pravo je mjesto za kontakt s prirodom. Zeleni, zdravi i održivi turizam karakterističan je za ovu, površinom, ali i kulturom i gastronomijom impozantnu općinu.
Slikoviti teritorij Žminja broji 33 naselja i 112 sela.
Nedaleko centra grada Žminja, u izgradnji je zgrada modernog dizajna koja se proteže kroz prizemlje i dva kata te sadrži sveukupno osam stambenih jedinica. U izgradnji se koriste trajni i pouzdani materijali koji jamče dugoročno zadovoljstvo i sigurnost stanovanja.
Planiranje prostora svake etaže detaljno je provedeno što je rezultiralo kvalitetnim rasporedom prostorija čime je zajamčena potpuna iskoristivost prostora.
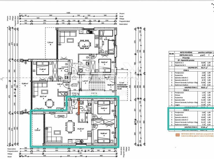
Predmet prodaje je stan ukupne površine 68 m² koji se nalazi u prizemlju zgrade.
Sastoji se od dvije spavaće sobe, kupaonice i prostora otvorenog koncepta koji ujedinjuje dnevni boravak, blagovaonicu i kuhinju s izlazom na natkrivenu terasu.
Stanu pripada vrt od 145 m2.
Parkirna mjesta i vrtovi stanova u prizemlju zgrade kupuju se odvojeno prema pripadajućem obračunskom koeficijentu.
Ovaj stan u novogradnji na pješačkoj udaljenosti trgovačkih, kul
Kontakt info
- Agencija
-
DUX NEKRETNINE
- Kontakt osoba
- Dux Nekretnine
- Telefon 1
- + 385 51 518... Prikaži broj
- Telefon 2
- + 385 91 480 ... Prikaži broj
- Adresa
- Tizianova 8
- Rijeka, Hrvatska
Slične nekretnine
Istra, Žminj - Prodaja stanova u novogradnji
- 176.800€ 67 m2
Žminj, novogradnja, jednosobni stan u prizemlju
- 172.160€ 53 m2
Žminj, novogradnja, jednosobni stan u prizemlju
- 172.160€ 53 m2
Žminj, novogradnja, jednosobni stan na prvom katu
- 169.344€ 52 m2
Žminj, novogradnja, jednosobni stan na prvom katu
- 169.344€ 52 m2
Žminj, novoizgrađeni stan 67.66 m2 - S3
- 189.448€ 67 m2
ŽMINJ, DVOSOBAN STAN U PRIZEMLJU, NOVOGRADNJA
- 190.000€ 68 m2
Žminj - Novogradnja u izgradnji, stan F
- 195.500€ 61 m2
Žminj - Novogradnja u izgradnji, STAN G
- 195.500€ 61 m2
ISTRA, ŽMINJ - Jednosoban stan u modernoj novogradnji
- 195.500€ 61 m2