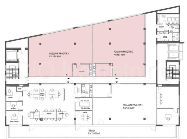
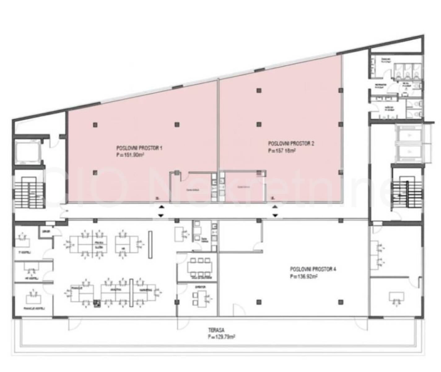
Split, Dračevac, poslovni prostor 157,18 m2+parking
Dračevac, Split
2.357€ /mjesečno
15 €/m2
Tip
Poslovni prostor
Površina
157 m2
Struktura
1
Grijanje
Klima uređaj
Detalji
- Tip
- Poslovni prostor
- Struktura
- 1
- Cijena
- 2.357€ /mjesečno
- Površina
- 157 m2 (15 €/m2)
- Grijanje
- Klima uređaj
- Garaža
- Da
- Ažuriran
- 03.04.2026
- ID
- 105573
Opis
Split – Dračevac | Poslovni prostor za najam, 157,18 m²
U ponudi je prostran i suvremen poslovni prostor smješten u novoj poslovnoj zgradi na atraktivnoj lokaciji u Dračevcu, Split.
Karakteristike prostora:
Površina: 157,18 m²
2. kat
Moderna poslovna zgrada novije gradnje
Fleksibilan, modularan raspored prilagodljiv potrebama korisnika
Velike staklene stijene koje osiguravaju obilje dnevnog svjetla
Kvalitetna opremljenost (struja, optički internet, klimatizacija)
Uređeni sanitarni čvorovi
Mogućnost podjele na više funkcionalnih cjelina
Parking:
Garažna i vanjska parkirna mjesta dostupna uz nadoplatu
Broj mjesta prema dogovoru
Dodatne prednosti:
Izvrsna prometna povezanost, brzi pristup s brze ceste
Reprezentativan ulaz i moderno uređeni zajednički prostori
Energetski učinkovita zgrada
Prostor spreman za useljenje odmah, svjetao i prozračan ua ugodno radno okruženje
Teretni lift + 2 lifta za osobe
Zahvaljujući svojoj veličini i fleksibilnom rasporedu, prostor je idealan za različite djelatnosti poput ureda, IT tvrtki, call centara, medicinskih i edukacijskih ustanova, showrooma te raznih uslužnih aktivnosti.
Više informacija kao i razgledavanje nekretnine s agentom moguće je isključivo uz potpisani Ugovor o posredovanju koji je u skladu sa Zakonom o zaštiti podataka i Zakonom o posredovanju u prometu nekretnina.
Agencijska provizija: 1 mjesečna najamnina + pdv
Kontakt info
- Agencija
-
Cio Nekretnine
- Kontakt osoba
- Srđan J.
- Mobilni telefon
- + 385 99 555... Prikaži broj
- Adresa
- Gundulićeva 32
- Split, Hrvatska
Slične nekretnine
Split, Dračevac, poslovni prostor 151 m2+parking
- 2.265€/mjesečno 151 m2
Split, Trstenik, najam poslovnog prostora
- 2.200€/mjesečno 89 m2
Split, Mejaši, Poslovni prostor 200 m2, parking, dugoročni najam
- 2.600€/mjesečno 200 m2
Split, Poljud, najam poslovnog prostora
- 2.100€/mjesečno 175 m2
Split, Trstenik, najam poslovnog prostora
- 2.000€/mjesečno 47 m2
Split, Sućidar, poslovni prostor uz prometnicu
- 1.800€/mjesečno 156 m2
Split, Grad, poslovni prostor, dugoročan najam
- 3.000€/mjesečno 101 m2
Split, Trstenik ,najam poslovnog prostora
- 1.600€/mjesečno 58 m2
Split, Bačvice, najam poslovnog prostora,
- 1.500€/mjesečno 78 m2
Split, Sukoišan, poslovni prostor 54 m2, najam
- 1.500€/mjesečno 54 m2
Odlična lokacija, Poljička cesta, uredski, 1.kat, 47m2, uredski
- 1.250€/mjesečno 64 m2
Poslovni prostor na Poljičkoj ulici, uredski, 1.kat, 47m2, uredski
- 1.250€/mjesečno 64 m2