ISTRA, BRTONIGLA - Prizemnica s bazenom u izgradnji
Brtonigla
495.000€
3 413 €/m2
Tip
Kuća
Površina
145 m2
Struktura
3
Detalji
- Tip
- Kuća
- Struktura
- 3
- Cijena
- 495.000€
- Površina
- 145 m2 (3 413 €/m2)
- Površina zemljišta
- 502
- Grijanje
- Sustav grijanja, klimatizacije i ventilacije
- Terasa
- Da
- Udaljenost od mora
- 9000m
- Parkirno mjesto
- Da
- Ažuriran
- 12.01.2026
- ID
- 49708
Opis
ISTRA, BRTONIGLA - Prizemnica s bazenom u izgradnji
Brtonigla je općina koja je bogata prirodnim resursima i koja je ponosna na svoju netaknutu prirodu. Obuhvaća morsku obalu i unutrašnju, zelenu, Istru. Na području općine prevladava blaga, mediteranska klima, što omogućava ugodan boravak tijekom cijele godine. Većina aktivnog stanovništva općine bavi se poljoprivredom, a primarni proizvodi visoke kvalitete su vino, masline i maslinovo ulje, sir, riba, tartufi, meso, istarski pršut, povrće, jedinstveno mirisno i aromatično bilje. Druga osnovna gospodarska grana u općini je turistička djelatnost. Tu se nalazi i drugi najbolji aquapark u Europi.
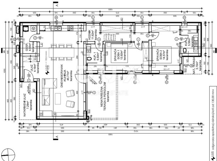
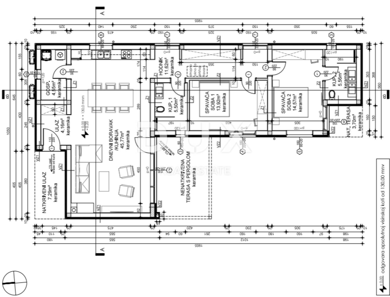
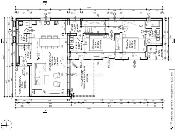
Nedaleko Brtonigle, na prodaju je samostojeća kuća u izgradnji. Planirana je kao prizemnica ukupne površine 145 m2 koja će se sastojati od kuhinje, blagovaonice i dnevnog boravka otvorenog koncepta, kupaonice, 2 spavaće sobe od kojih će jedna imati vlastitu kupaonicu. Dnevni boravak biti će orijentiran prema bazenu površine 21 m2.
Predviđeno grijanje je podno s toplinskom pumpom, dok su za hlađenje predviđeni klima uređaji.
Površina na kojoj će biti smješten objekt je površine 502 m2.
Cijena se odnosi na u potpunosti dovršen objekt, bez namještaja, s uređenom okućnicom.
Idealna nekretnina za život moderne obitelji ili kao nekretnina u svrhu turističkog najma.
Poštovani klijenti, agencijska provizija naplaćuje se u skladu s Općim uvjetima poslovanja:
www.dux-nekretnine.hr/opci-uvjeti
Kontakt info
- Agencija
-
DUX NEKRETNINE
- Kontakt osoba
- Dux Nekretnine
- Telefon 1
- + 385 51 518... Prikaži broj
- Telefon 2
- + 385 91 480 ... Prikaži broj
- Adresa
- Tizianova 8
- Rijeka, Hrvatska
Slične nekretnine
ISTRA, BRTONIGLA - Moderna pametna vila s bazenom
- 539.000€ 150 m2
Brtonigla, Okolica- Istra- Dvojna kuća kod...
- 445.000€ 116 m2
Brtonigla - novogradnja u izgradnji sa bazenom
- 445.000€ 116 m2
Brtonigla - prekrasna novogradnja sa bazenom u izgradnji
- 445.000€ 116 m2
ISTRA, BRTONIGLA - Moderna kuća sa bazenom na mirnoj lokaciji
- 445.000€ 116 m2
ISTRA, MODERNA KUĆA S BAZENOM
- 445.000€ 116 m2
Brtonigla, okolica! Prekrasna moderna dvojna vila u izgradnji!
- 445.000€ 116 m2
Brtonigla, okolica, novogradnja! Prekrasna moderna dvojna vila!
- 445.000€ 116 m2
Duplex kuća sa bazenom, Brtonigla
- 445.000€ 116 m2
ISTRA, BRTONIGLA - Kuća s panoramskim pogledom
- 550.000€ 220 m2