CRIKVENICA - Zemljište + dozvola
Crikvenica
205.000€
330 €/m2
Tip
Zemljiste
Površina
620 m2
Detalji
- Tip
- Zemljiste
- Cijena
- 205.000€
- Površina
- 620 m2 (330 €/m2)
- Udaljenost od mora
- 400m
- Ažuriran
- 05.10.2025
- ID
- 80908
Opis
CRIKVENICA – Zemljiste s dozvolom za luksuznu obiteljsku kuću s 4 spavaće sobe i bazenom
Na prodaju je građevinsko zemljište u Crikvenici s već ishodovanom građevinskom dozvolom za izgradnju moderne obiteljske kuće s bazenom - komunalije plaćene!
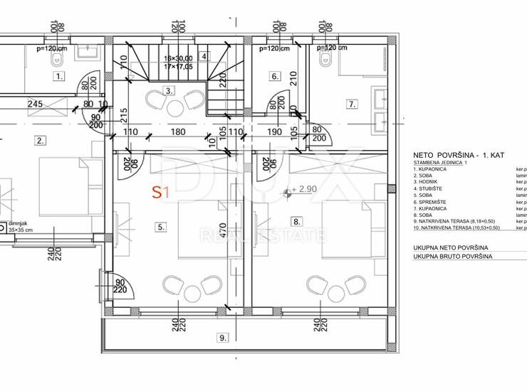
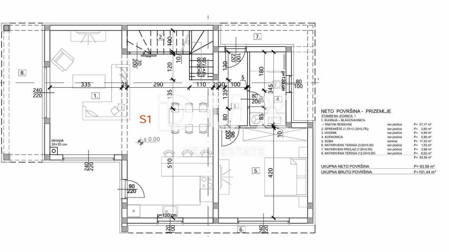
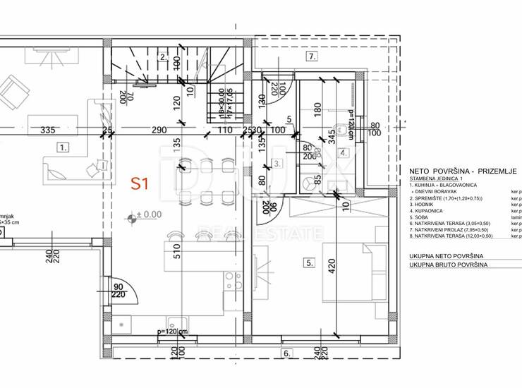
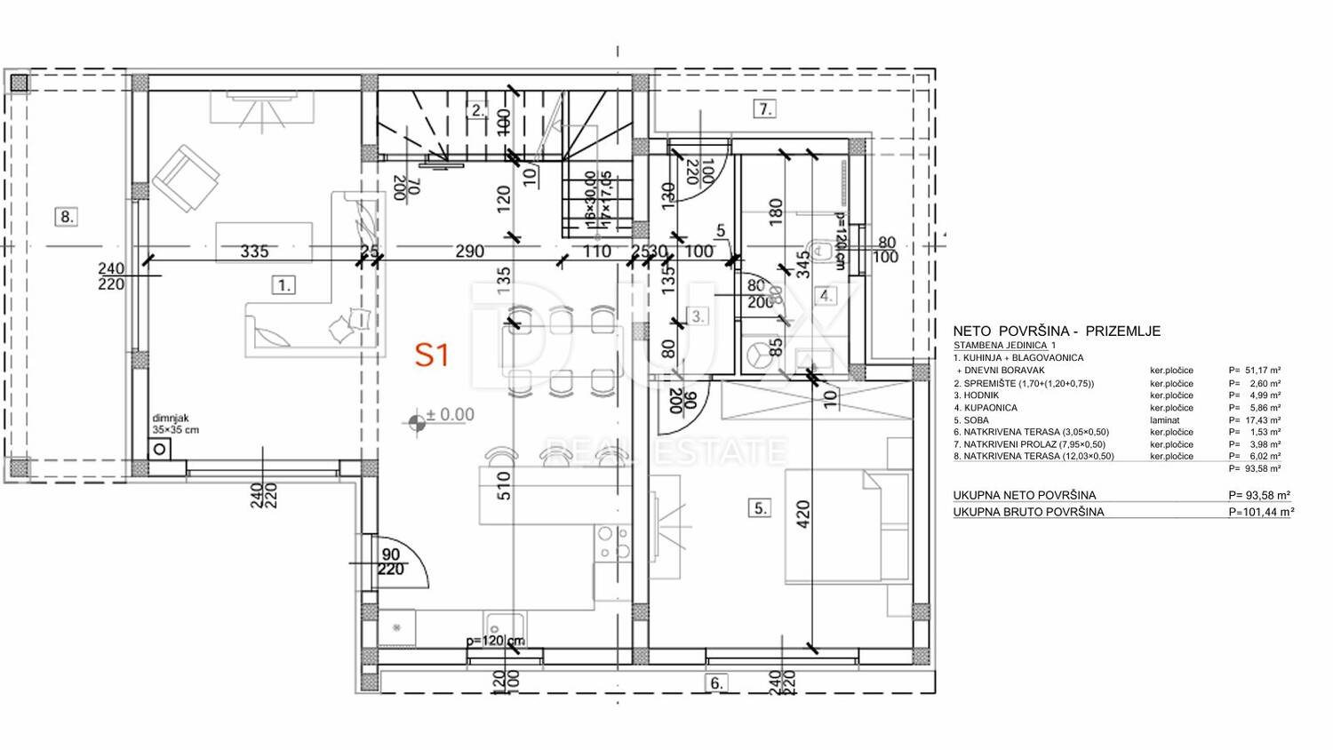
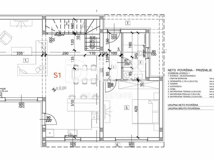
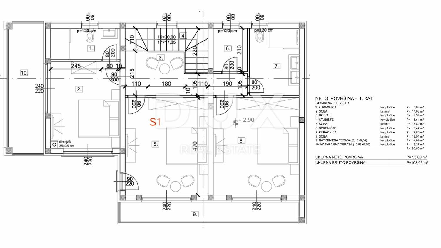
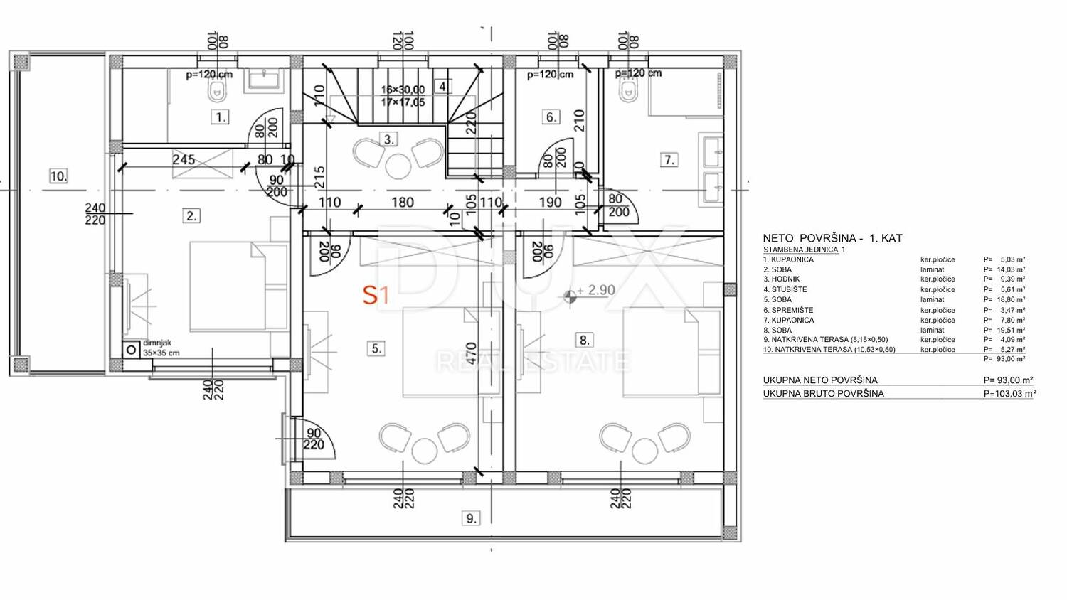
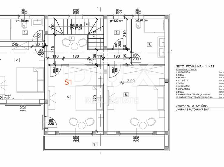
Projektirana kuća: samostojeća, P+1, ravni neprohodni krov
Bruto površina: cca 200 m² (razvedeni tlocrt: 14,60 x 9,80 m)
Sadržaj prizemlja: hodnik, kupaonica, spremište, spavaća soba, kuhinja s blagovaonicom i dnevnim boravkom, izlaz na natkrivenu terasu
Kat: tri spavaće sobe, dvije kupaonice, hodnik, spremište i dvije natkrivene terase
Bazen: nepravilnog oblika s max. dimenzijama 6,0 x 5,05 m
Moderan dizajn: svijetla fasada, detalji u kamenu ili drvu
Kvalitetna gradnja: AB konstrukcija, ETICS fasadni sustav, PVC stolarija s izo staklom
Planirano grijanje/hlađenje: klima uređaji (split sistem), mogućnost peći na biomasu
Prirodno osvjetljenje i ventilacija u svim prostorijama
Ovo zemljište predstavlja odličnu priliku za realizaciju vrhunskog projekta s već pripremljenom dokumentacijom. Smješteno je u mirnom i urbaniziranom dijelu Crikvenice, s brzom povezanošću do svih sadržaja.
Za više informacija i termin obilaska kontaktirajte nas odmah!
Poštovani klijenti, agencijska provizija naplaćuje se u skladu s Općim uvjetima poslovanja
www.dux-nekretnine.hr/opci-uvjeti-poslovanja
ID KOD AGENCIJE: 38911
Mladen Tićak
Agent s licencom
Mob: + 385 97 775 ... Prikaži broj
Tel: + 385 99 640 ... Prikaži broj
E-mail: mlade
Kontakt info

- Agencija
-
DUX NEKRETNINE
- Kontakt osoba
- Dux Nekretnine
- Telefon 1
- + 385 51 518... Prikaži broj
- Telefon 2
- + 385 91 480 ... Prikaži broj
- Adresa
- Tizianova 8
- Rijeka, Hrvatska
Slične nekretnine

CRIKVENICA - Zemljište + dozvola
- 205.000€ 493 m2

Crikvenica - prodaja građevinskog zemljjišta, 1600m2!
- 206.000€ 1600 m2

CRIKVENICA - zemljište s građevinskom dozvolom za vilu
- 195.000€ 600 m2

CRIKVENICA - zemljište s građevinskom dozvolom
- 195.000€ 500 m2

CRIKVENICA - Građevinsko zemljište - PRILIKA!
- 219.000€ 754 m2

CRIKVENICA - građevinsko zemljište s otvorenim pogledom na more
- 219.000€ 784 m2

CRIKVENICA zemljište sa gradj.dozvolama
- 220.000€ 600 m2

CRIKVENICA, GRAĐEVINSKO ZEMLJIŠTE S PANORAMSKIM POGLEDOM
- 228.000€ 784 m2

Crikvenica teren s pravomoćnom građevinskom dozvolom
- 180.000€ 600 m2