CRIKVENICA - Zemljište + dozvola
Crikvenica
205.000€
415 €/m2
Tip
Zemljiste
Površina
493 m2
Detalji
- Tip
- Zemljiste
- Cijena
- 205.000€
- Površina
- 493 m2 (415 €/m2)
- Udaljenost od mora
- 400m
- Ažuriran
- 07.10.2025
- ID
- 80910
Opis
CRIKVENICA – Građevinsko zemljište s panoramskim pogledom na more i građevinskom dozvolom za modernu kuću
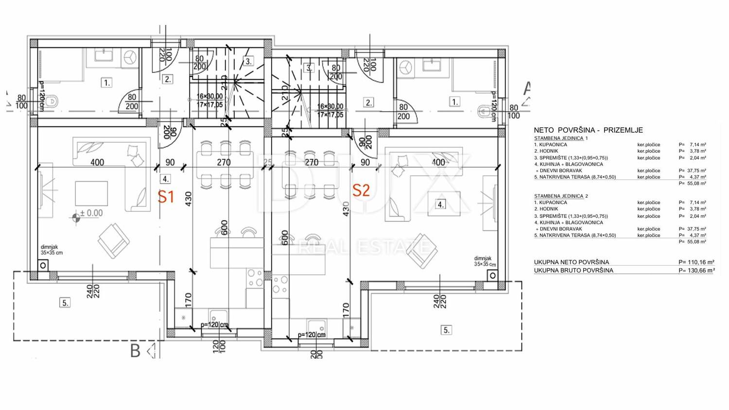
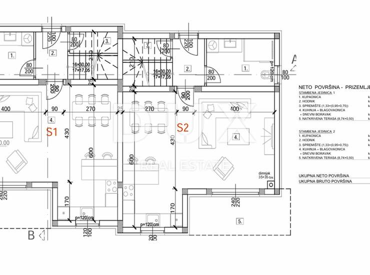
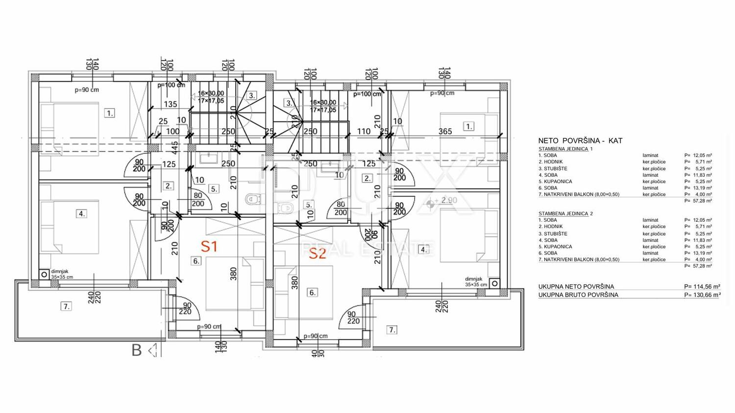
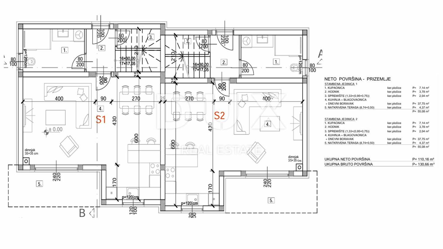
Na prodaju je građevinsko zemljište s kompletnom projektno-tehničkom dokumentacijom i važećom građevinskom dozvolom za izgradnju moderne dvojne kuće (P+1) u mirnom dijelu Crikvenice.
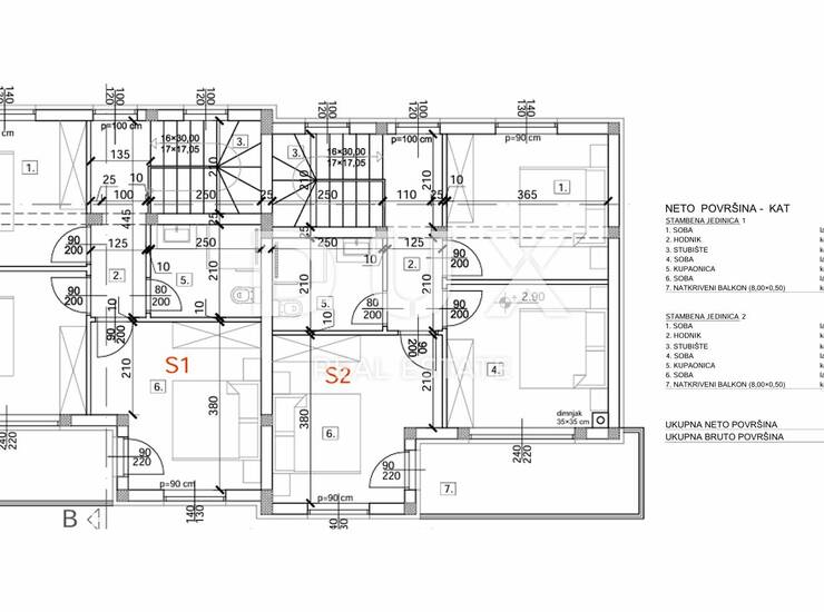
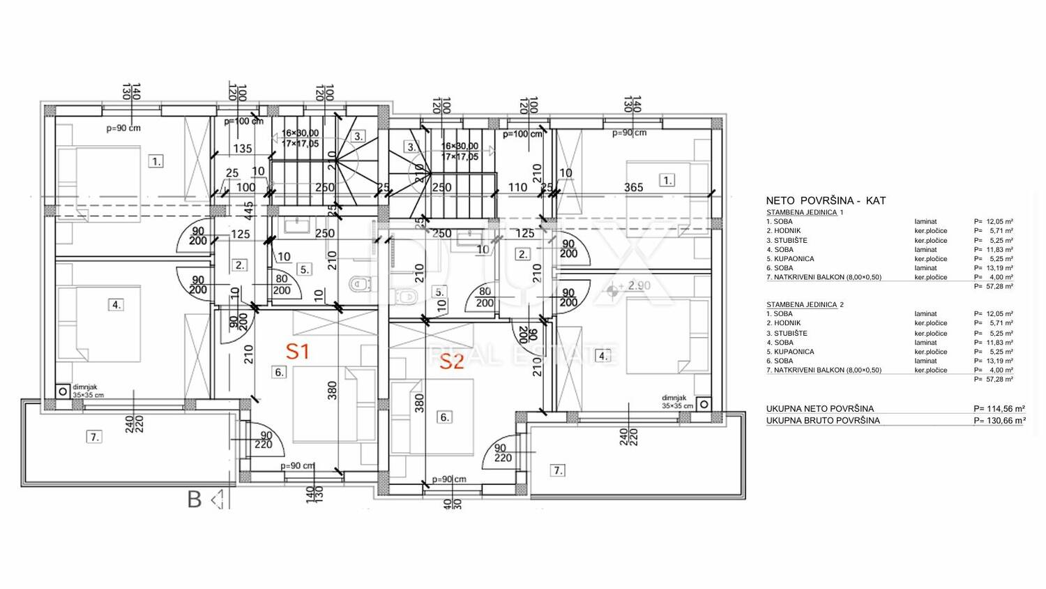
Predviđena gradnja dvije identične dvoetažne stambene jedinice
Svaka jedinica se prostire kroz prizemlje i kat, s ukupno 3 spavaće sobe
Prizemlje uključuje dnevni boravak s kuhinjom i blagovaonom, kupaonicu, spremište i natkrivenu terasu
Kat sadrži tri spavaće sobe, kupaonicu i natkriveni balkon
Kuća je modernog dizajna s ravnim krovom i detaljima od kamena ili dekorativnog drva
Projekt uključuje kvalitetnu PVC stolariju, izolaciju prema energetskim standardima, klima uređaje te mogućnost grijanja na biomasu
Svaka jedinica ima vlastiti ulaz i privatnost
Parcela je u potpunosti spremna za početak gradnje – idealno za investitore ili one koji žele kreirati vlastitu nekretninu za odmor ili dugoročno stanovanje.
Zemljište predstavlja odličnu priliku za investitore ili za one koji žele sagraditi svoj dom na atraktivnoj lokaciji s pogledom koji oduzima dah.
Kontaktirajte nas za više informacija i termin obilaska!
Poštovani klijenti, agencijska provizija naplaćuje se u skladu s Općim uvjetima poslovanja
www.dux-nekretnine.hr/opci-uvjeti-poslovanja
ID KOD AGENCIJE: 38909
Mladen Tićak
Agent s licencom
Mob: + 385 97 775 ... Prikaži broj
Tel: + 385 99 640 ... Prikaži broj
E
Kontakt info

- Agencija
-
DUX NEKRETNINE
- Kontakt osoba
- Dux Nekretnine
- Telefon 1
- + 385 51 518... Prikaži broj
- Telefon 2
- + 385 91 480 ... Prikaži broj
- Adresa
- Tizianova 8
- Rijeka, Hrvatska
Slične nekretnine

CRIKVENICA - Zemljište + dozvola
- 205.000€ 620 m2

Crikvenica - prodaja građevinskog zemljjišta, 1600m2!
- 206.000€ 1600 m2

CRIKVENICA - zemljište s građevinskom dozvolom za vilu
- 195.000€ 600 m2

CRIKVENICA - zemljište s građevinskom dozvolom
- 195.000€ 500 m2

CRIKVENICA - Građevinsko zemljište - PRILIKA!
- 219.000€ 754 m2

CRIKVENICA - građevinsko zemljište s otvorenim pogledom na more
- 219.000€ 784 m2

CRIKVENICA zemljište sa gradj.dozvolama
- 220.000€ 600 m2

CRIKVENICA, GRAĐEVINSKO ZEMLJIŠTE S PANORAMSKIM POGLEDOM
- 228.000€ 784 m2

Crikvenica teren s pravomoćnom građevinskom dozvolom
- 180.000€ 600 m2