Novo u ponudi! U predivnoj Fažani nudimo moderne stanove u novogradnji s ...
Fažana
217.566€
4 629 €/m2
Tip
Stan
Površina
47 m2
Struktura
1
Detalji
- Tip
- Stan
- Struktura
- 1
- Cijena
- 217.566€
- Površina
- 47 m2 (4 629 €/m2)
- Površina zemljišta
- 54
- Ukup. katova
- 3
- Udaljenost od mora
- 1300m
- Parkirno mjesto
- Da
- Ažuriran
- 27.05.2026
- ID
- 106246
Opis
Novo u ponudi!
U predivnoj Fažani nudimo moderne stanove u novogradnji s bazenom, smještene u sklopu atraktivnog projekta koji se sastoji od četiri zgrade s ukupno 23 stana različitih veličina i rasporeda. Projekt se nalazi na odličnoj lokaciji – mirno okruženje u blizini mora i svih važnih sadržaja.
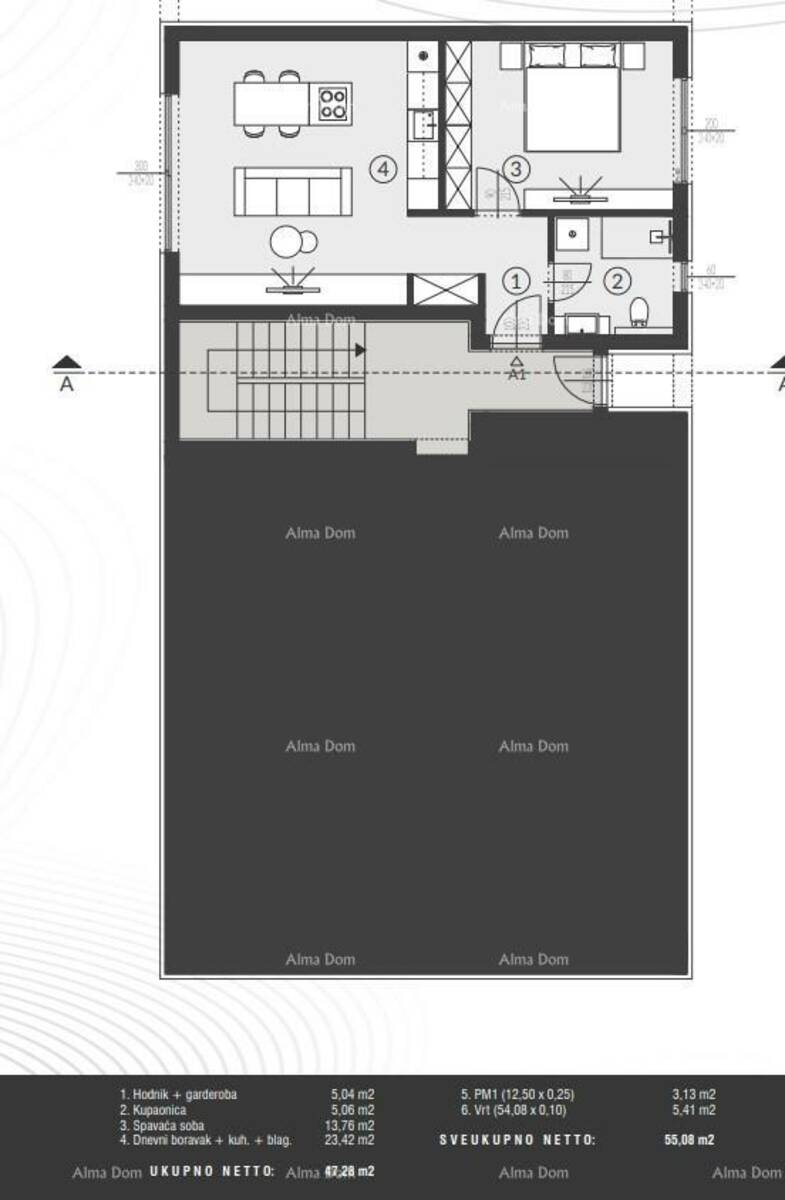
Stan A1 nalazi se u prizemlju zgrade s 3 etaže.
Stan se sastoji od ulaznog hodnika, garderobe, dnevnog boravka s kuhinjom i blagovaonom, spavaće sobe, kupaone.
Vrt 5,41 m² – idealan za opuštanje i uživanje.
Oprema i standard:
Podno grijanje u kupaonicama.
Keramičke pločice visoke kvalitete.
PVC stolarija francuskog tipa s roletama i komarnicima.
Kupaonska oprema renomiranih proizvođača.
Klima uređaj.
Protuprovalna ulazna vrata.
Mogućnost izbora završnog poda – keramika, parket ili laminat u spavaćim sobama.
1 parkirno mjesto uključeno u cijenu.
Ova nekretnina idealna je za boravak tijekom cijele godine, odmor ili kao investicija za turistički najam.
Za dodatne informacije, molimo kontaktirajte:
Azra:
+ 385 91 611 ... Prikaži broj
+ 385 98 420... Prikaži broj
azra@almadominvest.com
Kontakt info
- Agencija
-
Alma Dom
- Kontakt osoba
- Alma Dom
- Telefon 1
- + 385 52 213... Prikaži broj
- Telefon 2
- + 385 52 210... Prikaži broj
- Adresa
- Istarska 10
- Pula, Hrvatska