Novo u ponudi! U predivnoj Fažani nudimo moderne stanove u novogradnji s...
Fažana
290.174€
4 030 €/m2
Tip
Stan
Površina
72 m2
Struktura
2
Detalji
- Tip
- Stan
- Struktura
- 2
- Cijena
- 290.174€
- Površina
- 72 m2 (4 030 €/m2)
- Površina zemljišta
- 0
- Kat
- 1
- Ukup. katova
- 3
- Udaljenost od mora
- 1300m
- Parkirno mjesto
- Da
- Ažuriran
- 23.04.2026
- ID
- 98643
Opis
Novo u ponudi!
U predivnoj Fažani nudimo moderne stanove u novogradnji s bazenom, smještene u sklopu atraktivnog projekta koji se sastoji od četiri zgrade s ukupno 23 stana različitih veličina i rasporeda. Projekt se nalazi na odličnoj lokaciji – mirno okruženje u blizini mora i svih važnih sadržaja.
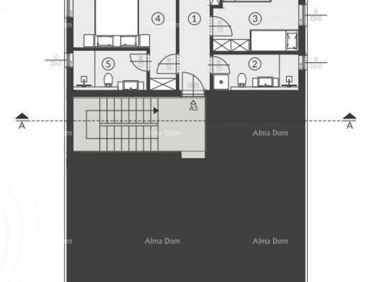
Stan A3, površine 72,24 m2, nalazi se na 1.katu zgrade s 3 etaže.
Stan se sastoji od ulaznog hodnika, garderobe, dnevnog boravka s kuhinjom i blagovaonom, 2 spavaće sobe, 2 kupaone i terase.
Oprema i standard:
Podno grijanje u kupaonicama.
Keramičke pločice visoke kvalitete.
PVC stolarija francuskog tipa s roletama i komarnicima.
Kupaonska oprema renomiranih proizvođača.
Klima uređaj.
Protuprovalna ulazna vrata.
Mogućnost izbora završnog poda – keramika, parket ili laminat u spavaćim sobama.
Parkirno mjesto uključeno u cijenu.
Priprema za stanice za punjenje električnih automobila na svakom parkirnom mjestu.
Početak radova planiran je krajem 2026., a završetak se očekuje do 2028.
Ova nekretnina idealna je za boravak tijekom cijele godine, odmor ili kao investicija za turistički najam.
Za dodatne informacije, molimo kontaktirajte:
Azra:
+ 385 91 611 ... Prikaži broj
+ 385 98 420... Prikaži broj
azra@almadominvest.com
Kontakt info
- Agencija
-
Alma Dom
- Kontakt osoba
- Alma Dom
- Telefon 1
- + 385 52 213... Prikaži broj
- Telefon 2
- + 385 52 210... Prikaži broj
- Adresa
- Istarska 10
- Pula, Hrvatska