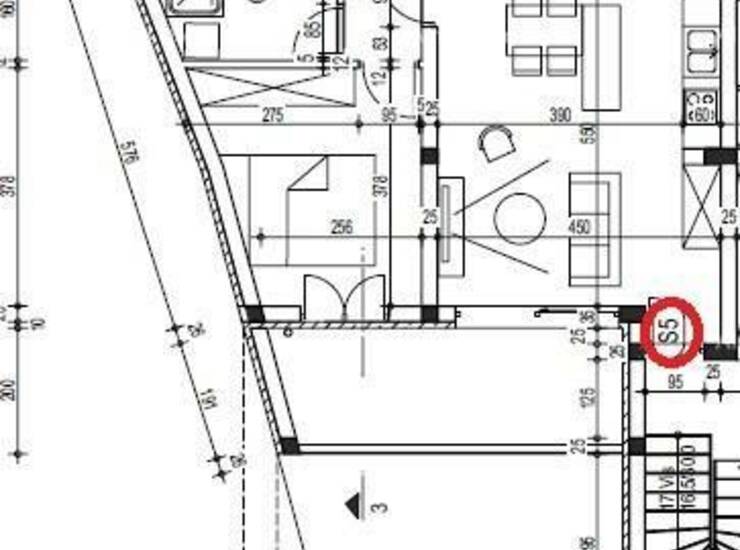
Novo u ponudi! Na prodaju je stan S5 smješten na 2 katu stambene zgrade, ...
Ližnjan
189.800€
3 514 €/m2
Tip
Stan
Površina
54 m2
Struktura
1
Detalji
- Tip
- Stan
- Struktura
- 1
- Cijena
- 189.800€
- Površina
- 54 m2 (3 514 €/m2)
- Površina zemljišta
- 0
- Kat
- 2
- Ukup. katova
- 4
- Udaljenost od mora
- 1500m
- Ažuriran
- 20.12.2025
- ID
- 98156
Opis
Novo u ponudi!
Na prodaju je stan S5 smješten na 2 katu stambene zgrade, na odličnoj lokaciji u neposrednoj blizini centra grada. Stan se sastoji od jedne spavaće sobe, dnevnog boravka povezanog s kuhinjom i blagovaonicom, kupaonice te prostrane terase površine 10,79 m², idealne za opuštanje i boravak na otvorenom.
Ugrađena je PVC stolarija s roletama, a stan će biti opremljen podnim grijanjem, uz dodatne klima uređaje za grijanje i hlađenje. Podne obloge u cijelom stanu bit će izvedene u kvalitetnoj keramici, čime se osigurava moderan izgled i jednostavno održavanje.
Unutarnja stambena površina stana iznosi 43,33 m², dok ukupna površina stana s terasom iznosi 54,23 m². Lokacija stana omogućuje brz i jednostavan pristup svim potrebnim sadržajima, a udaljenost do plaže iznosi približno 1,5 km.
Ova nekretnina predstavlja odličnu priliku za ugodan život, odmor ili investiciju.
Za dodatne informacije, molimo kontaktirajte:
Azra
+ 385 91 611 5... Prikaži broj
+ 385 98 420 ... Prikaži broj
azra@almadominvest.com
Kontakt info
- Agencija
-
Alma Dom
- Kontakt osoba
- Alma Dom
- Telefon 1
- + 385 52 213... Prikaži broj
- Telefon 2
- + 385 52 210... Prikaži broj
- Adresa
- Istarska 10
- Pula, Hrvatska