Penthouse u novogradnji u blizini mora Medulin, mirna lokacija, blizina mo...
Medulin
330.000€
3 928 €/m2
Tip
Stan
Površina
84 m2
Struktura
3
Detalji
- Tip
- Stan
- Struktura
- 3
- Cijena
- 330.000€
- Površina
- 84 m2 (3 928 €/m2)
- Površina zemljišta
- 0
- Kat
- 2
- Ukup. katova
- 3
- Udaljenost od mora
- 0m
- Parkirno mjesto
- Da
- Ažuriran
- 24.10.2025
- ID
- 93540
Opis
Penthouse u novogradnji u blizini mora
Medulin, mirna lokacija, blizina mora - stan na 2. katu.
Zgrada ima 3 kata, po jednom stanu na svakom katu.
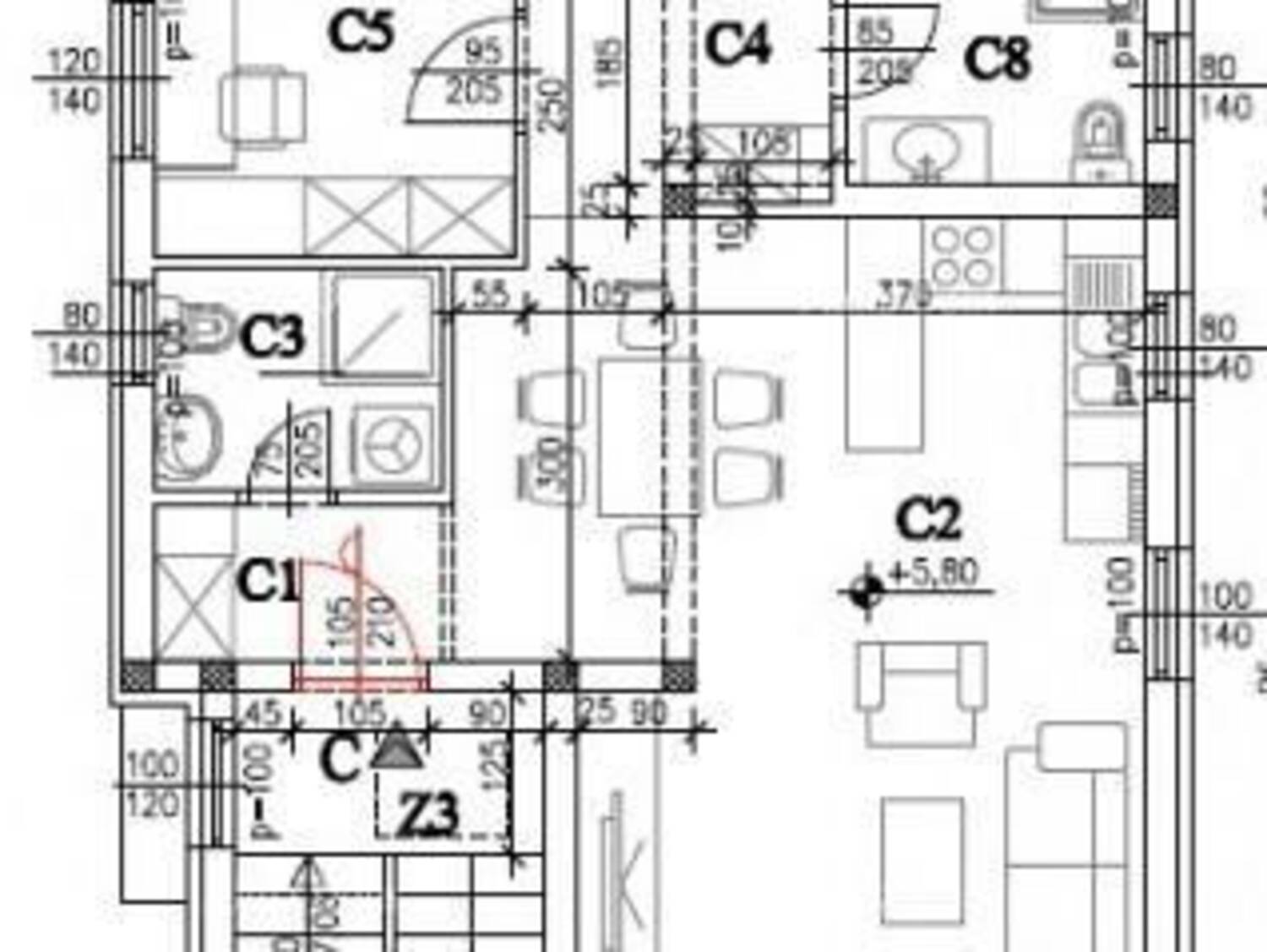
Ovaj komforan stan na 2. katu je oznake "C" s 3 spavaće sobe, 2 kupatila i balkonom od 16 m2 s prekrasnim pogledom na zelene borove i more:
HODNIK - 2.76m2
DNEVNI BORAVAK I KUHINJA - 29.76 m2
KUPAONICA - 3.74 M2
PREDSOBLJE - 4.77 m2
SPAVAONICA - 11.55 m2
SPAVAONICA - 11.13 m2
KUPAONICA - 4.83 M2
SPAVAONICA - 8.25 m2
BALKON - 13.62m2*0,50+2.33m2*0,25=7.39 m2
Ukupna netto površina stana "C" je 84.18 m2.
Uz stan se može birati 2 vanjskih parkirnih mjesta ili 1 parkirno mjesto i garažu ovisno o raspoloživosti garaži, jer u zgradi ima samo 1 garaža, kao što i spremište uz nadoplatu. Cijena je bazna samo za stambenu površinu.
Zgrada je izgrađena, stan je useljiv. Opremljen je inverter klima uređajima u svakoj sobi na podu kojih je laminat, a u kupatilu, dnevnom boravku i kuhinji su postavljeni kvalitetne keramičke pločice s instalacijom podnog grijanja.
Prozori su troslojne antracit boje s vanjske i unutarnje strane, s podiznim kliznim prozorima u dnevnom boravku s izlazom na terasu, također samo na ovim prozorima su instalirani električne rulete.
Komarnici su na svim prozorima.
Za više informaciija, nazovite nas ili dogovorite termin razgleda:
Azra
+ 385 91 611 ... Prikaži broj
+ 385 98 420... Prikaži broj
azra@almadominvest.com
Kontakt info
- Agencija
-
Alma Dom
- Kontakt osoba
- Alma Dom
- Telefon 1
- + 385 52 213... Prikaži broj
- Telefon 2
- + 385 52 210... Prikaži broj
- Adresa
- Istarska 10
- Pula, Hrvatska