Prodaja stanova u novom stambenom kompleksu – Medulin U ponudi su stanov...

Medulin

240.698€

5 870 €/m2

Novo 2
Jednosoban stan, Medulin, prodaja, 240698 €, 41 m2
Jednosoban stan, Medulin, prodaja, 240698 €, 41 m2
Tip

Stan

Površina

41 m2

Struktura

1

Detalji

Tip
Stan
Struktura
1
Cijena
240.698€
Površina
41 m2 (5 870 €/m2)
Površina zemljišta
4
Kat
p
Ukup. katova
4
Udaljenost od mora
300m
Lift
Da
Ažuriran
24.04.2026
ID
107022

Opis

Prodaja stanova u novom stambenom kompleksu – Medulin

U ponudi su stanovi u modernom stambenom kompleksu smještenom u Medulinu, jednoj od najatraktivnijih turističkih mikrolokacija južne Istre. Lokacija u neposrednoj blizini mora, uređenih plaža i svih ključnih sadržaja čini ovaj projekt iznimno poželjnim za život, ali i kao sigurnu investiciju.

Zahvaljujući izvrsnoj poziciji, osigurana je stabilna i dugoročna potražnja za turističkim najmom, uz značajan potencijal rasta vrijednosti nekretnina.

Kompleks se sastoji od ukupno 8 zgrada:
stambene zgrade
stambeno-poslovne zgrade s poslovnim sadržajima u prizemlju

Dio kompleksa uključuje podzemnu garažu, čime je omogućena kvalitetna organizacija parkiranja i očuvanje vanjskog prostora.

Projekt također obuhvaća:
uređene zelene površine
zone za boravak na otvorenom
modernu prometnu i komunalnu infrastrukturu

Koncept je osmišljen tako da zadovoljava potrebe dugoročnog stanovanja, ali i turističkog najma.

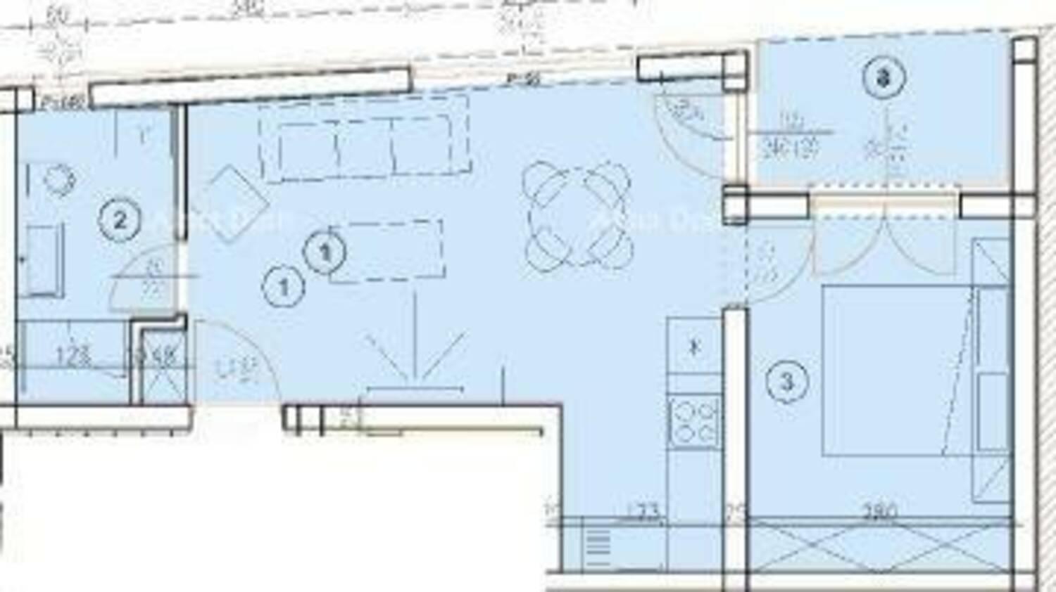
U ponudi je stan, ukupne površine 41,38 m², smješten u prizemlju zgrade. Stan se sastoji od kuhinje s blagovaonicom, dnevnog boravka, jedne spavaće sobe, kupaonice te lođe, što osigurava funkcionalan i ugodan raspored prostora. Stanu pripada vrt površine 4,44 m².

Početak radova: 2026. godina
Planirani završetak: 2029. godina

Za dodatne informacije, molimo kontaktirajte:

Azra
+ 385 91 611 ... Prikaži broj
+ 385 98 420... Prikaži broj
azra@almadominvest.com

Kontakt info

Agencija
Alma Dom
Kontakt osoba
Alma Dom
Telefon 1
+ 385 52 213... Prikaži broj
Telefon 2
+ 385 52 210... Prikaži broj
Adresa
Istarska 10
Pula, Hrvatska

Kontakt forma