Stan u novoj modernoj zgradi u Medulinu, u izgradnji. STAN - C3 je na dva ...
Medulin
414.461€
5 526 €/m2
Tip
Stan
Površina
75 m2
Struktura
2
Detalji
- Tip
- Stan
- Struktura
- 2
- Cijena
- 414.461€
- Površina
- 75 m2 (5 526 €/m2)
- Površina zemljišta
- 0
- Kat
- 2
- Ukup. katova
- 4
- Udaljenost od mora
- 300m
- Parkirno mjesto
- Da
- Ažuriran
- 26.02.2026
- ID
- 99131
Opis
Stan u novoj modernoj zgradi u Medulinu, u izgradnji.
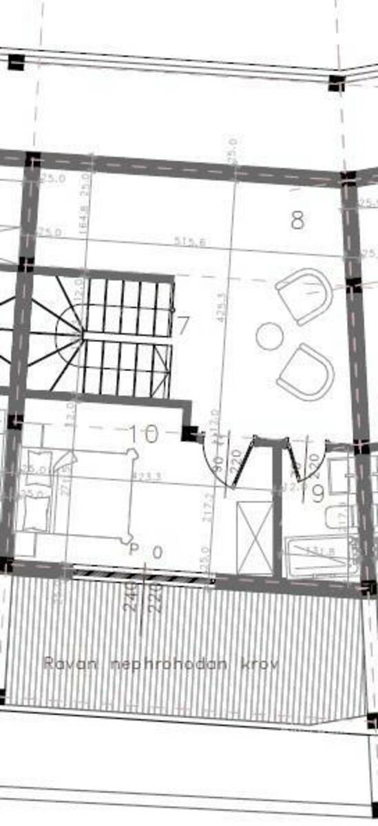
STAN - C3 je na dva kata i nalazi se na 2 i 3.katu zgrade. Stan se sastoji od:
hodnika, 2 kupaonice, kuhinje + blagovaonice, dnevnog boravka, 2 spavaće sobe i terase. Ukupna neto površina: 75,26 m2
Uz nekretninu dolazi parkirno mjesto, uključeno u cijenu.
Morski zrak i klima: Mediteranska klima s toplim ljetima i blagim zimama – idealno za stalni boravak ili odmor.
Odlična lokacija:
Medulin je jedan od najpopularnijih gradova u južnoj Istri,
do mora - 300 m!!!
centar Medulina udaljen je samo nekoliko minuta vožnje autom,
u blizini se nalazi šetnica, restorani, trgovine, asfaltirana cesta.
Za više informacija, molimo kontaktirajte:
Azra Valjevac
+ 385 91 611 ... Prikaži broj
+ 385 98 420... Prikaži broj
azra@almadominvest.com
Kontakt info
- Agencija
-
Alma Dom
- Kontakt osoba
- Alma Dom
- Telefon 1
- + 385 52 213... Prikaži broj
- Telefon 2
- + 385 52 210... Prikaži broj
- Adresa
- Istarska 10
- Pula, Hrvatska