Blizina Banjola! Luksuzna novogradnja! Stan 1, prizemlje - 109.91 m2, sast...
Volme, Medulin
485.000€
4 409 €/m2
Tip
Stan
Površina
110 m2
Struktura
3
Detalji
- Tip
- Stan
- Struktura
- 3
- Cijena
- 485.000€
- Površina
- 110 m2 (4 409 €/m2)
- Površina zemljišta
- 0
- Kat
- p
- Ukup. katova
- 3
- Udaljenost od mora
- 300m
- Parkirno mjesto
- Da
- Ažuriran
- 29.03.2026
- ID
- 97940
Opis
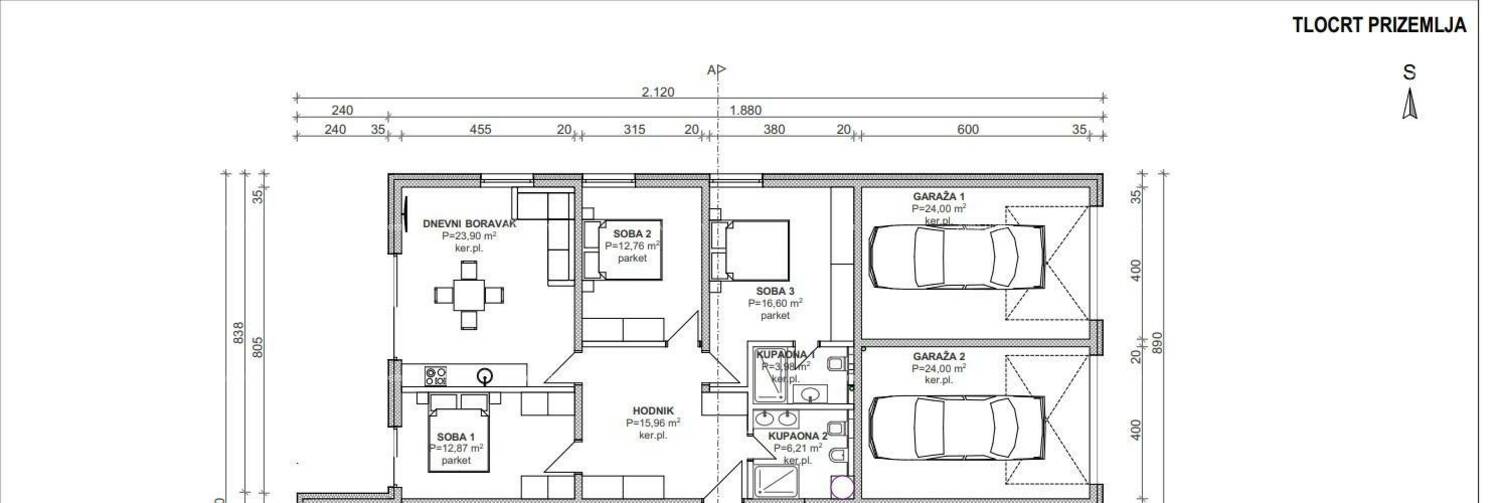
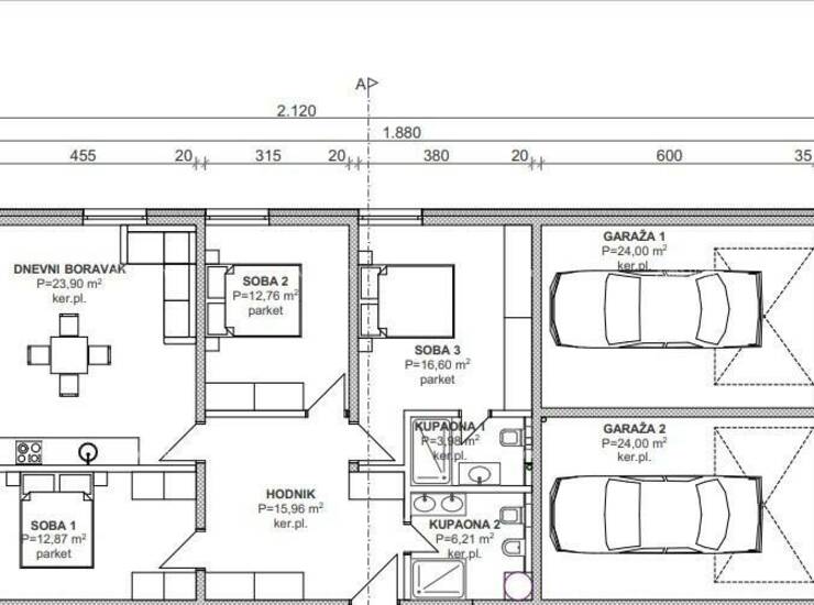
Blizina Banjola! Luksuzna novogradnja!
Stan 1, prizemlje - 109.91 m2, sastoji se od sljedećih prostorija:
- prostorno predsoblje od 16.47 m2,
- kuhinja sa blagovaonom i dnevnim boravkom - 23.9 m2 iz koje se izlaze na veliku natkrivenu terasu od 16.50 m2 s pogledom na more.
Na terasi su izvjedene sve potrebne instalacije za ugradnju ljetne kuhinji i jacuzzi. S terase niz stepenica je zona odmora s bazenom i sunčalištem. Kupca čeka odluka za obloge u bazenu -folija, pločice ili drugo.
Dalje u stanu ima
- spavaća sobe od 10.81 m2,
- spavaće sobe od 12.73 m2 s izlazom na terasu
- spavaće sobe od 14.64 m2 sa svojim kupatilom od 4.56 m2
- kupatilo od 6.87 m2.
Ukupne površine stana bez terasei drugih pripadajučih površina je 93 m2.
Stanu pripada parkirno mjesto ispred zgrade.
Podno grijanje u svim prostorijama, a svakoj prostoriji je zaseban termostat za regulaciju temperature.
U dnevnom boravku je digitalni termostat koji se može paliti/gasiti preko mobilnog uređaja.
U svakoj sobi je Mitsubischi klima uređaj.
Prozore su troslojne s aluminijskom stolarijom.
Na svim prozorima su električne rulete i komarnici.
Zgrada je izolirana termo fasadom od 15 cm.
Info:
+ 385 91 611 ... Prikaži broj
azra@almadominvest.com
+ 385 9842... Prikaži broj
www.almadom.com
Kontakt info
- Agencija
-
Alma Dom
- Kontakt osoba
- Alma Dom
- Telefon 1
- + 385 52 213... Prikaži broj
- Telefon 2
- + 385 52 210... Prikaži broj
- Adresa
- Istarska 10
- Pula, Hrvatska