ZADAR, ZATON - Atraktivna novogradnja s podnim grijanjem! S3
Zaton, Nin
213.500€
3 558 €/m2
Tip
Stan
Površina
60 m2
Struktura
3
Detalji
- Tip
- Stan
- Struktura
- 3
- Cijena
- 213.500€
- Površina
- 60 m2 (3 558 €/m2)
- Kat
- 1
- Grijanje
- Podno grijanje
- Terasa
- Da
- Udaljenost od mora
- 870m
- Ažuriran
- 25.09.2025
- ID
- 78477
Opis
ZADAR, ZATON - Atraktivna novogradnja s podnim grijanjem! S3.
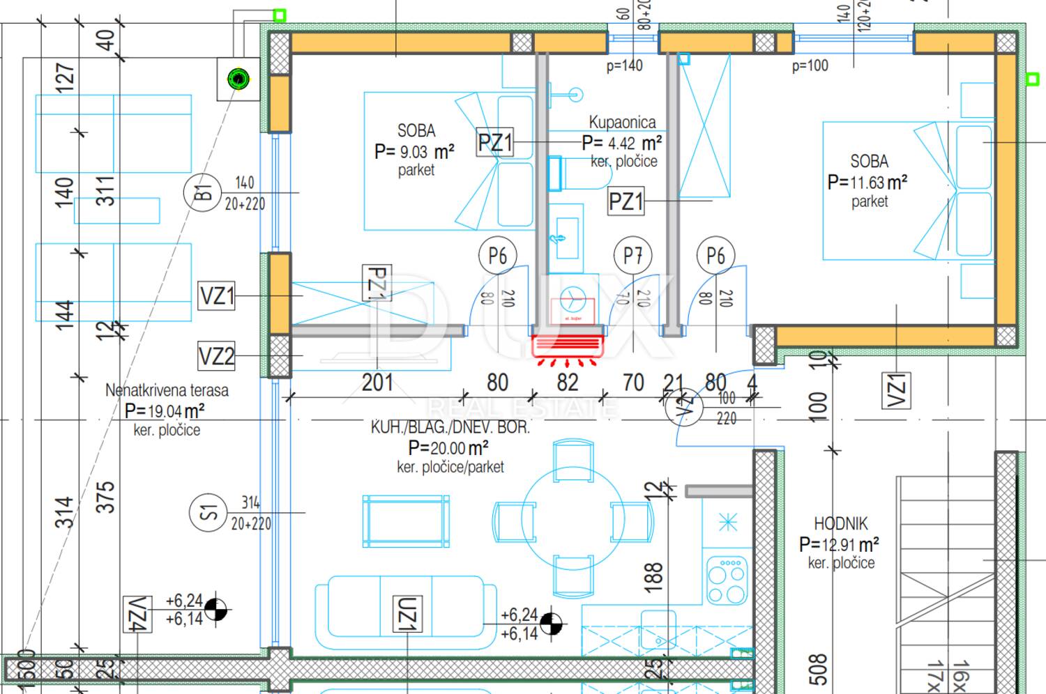
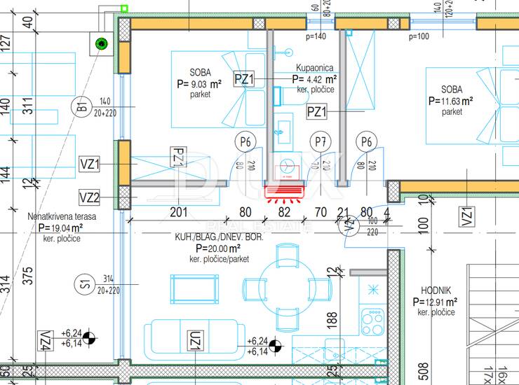
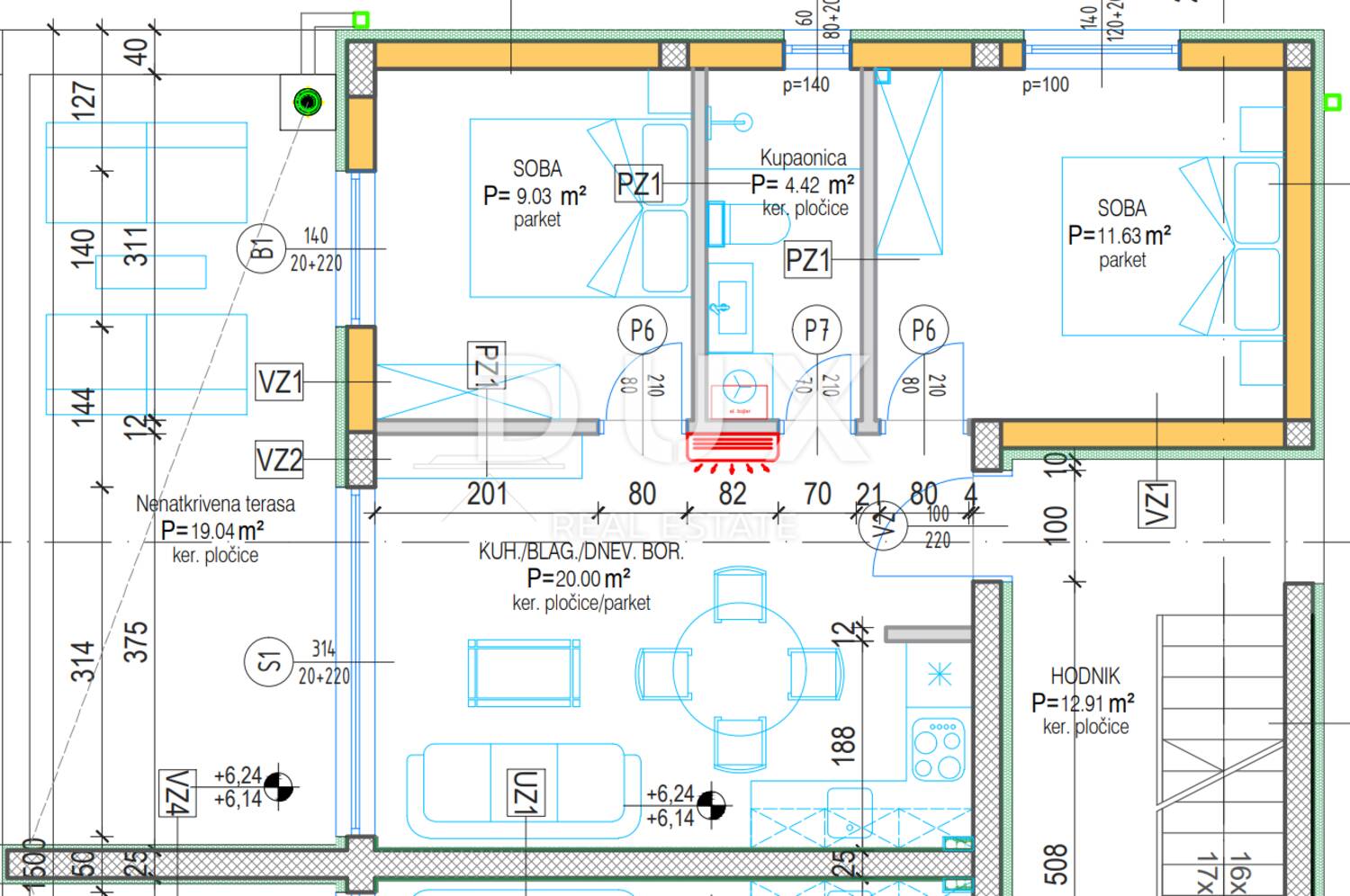
Na atraktivnoj lokaciji u mirnom i šarmantnom mjestu Zaton pokraj Zadra, prodaje se moderan stan u manjoj zgradi s ukupno četiri stambene jedinice. Ova nekretnina je sjajan izbor za one koji traže udoban dom, pametnu investiciju za dugoročni ili turistički najam, ili savršeno mjesto za bijeg od svakodnevice vikendom. More i plaže udaljeni su svega petnaestak minuta lagane šetnje, odnosno par minuta autom, dok su Zadar i povijesni Nin nadohvat ruke – svega pet minuta vožnje.
Stan se prostire na 60,24 m2 neto površine i odlikuje se iznimno funkcionalnim rasporedom: kuhinja s blagovaonicom i dnevnim boravkom čini središte doma, dok dvije spavaće sobe i kupaonica osiguravaju udobnost za svakodnevni život. Uz stan dolazi prostrana natkrivena terasa od čak 19,04 m2 – savršeno mjesto za opuštanje ili druženje, dva vlastita vanjska parkirna mjesta ukupne površine 28 m2 te zajedničko spremište površine 20 m2, što dodatno olakšava organizaciju prostora.
U gradnji i opremanju korišteni su najmoderniji materijali i tehnologije: troslojna PVC stolarija s električnim roletama, podno grijanje, klima uređaj s Wi-Fi upravljanjem, protuprovalna i protupožarna vrata, vrhunska toplinska izolacija debljine 10 cm, video portafon te ugrađeni Geberit sustavi – sve kako bi se osigurala maksimalna udobnost i sigurnost budućih vlasnika.
Stan je u sustavu PDV-a, što znači da kupac ne plaća
Kontakt info

- Agencija
-
DUX NEKRETNINE
- Kontakt osoba
- Dux Nekretnine
- Telefon 1
- + 385 51 518... Prikaži broj
- Telefon 2
- + 385 91 480 ... Prikaži broj
- Adresa
- Tizianova 8
- Rijeka, Hrvatska
Slične nekretnine

ZADAR, ZATON - Atraktivna novogradnja s podnim grijanjem! S4
- 213.500€ 60 m2

ZADAR, ZATON - Atraktivna novogradnja s podnim grijanjem! S2
- 213.500€ 60 m2

ZADAR, ZATON - Atraktivna novogradnja s podnim grijanjem! S1
- 213.500€ 60 m2

ZADAR, ZATON - Moderan stan s vrtom
- 295.000€ 75 m2