ZADAR, ZATON - Kvalitetna novogradnja s podnim grijanjem u Zatonu! S6
Zaton, Nin
202.000€
2 729 €/m2
Tip
Stan
Površina
74 m2
Struktura
3
Detalji
- Tip
- Stan
- Struktura
- 3
- Cijena
- 202.000€
- Površina
- 74 m2 (2 729 €/m2)
- Kat
- 1
- Grijanje
- Podno grijanje/Dizalica topline
- Udaljenost od mora
- 1160m
- Ažuriran
- 01.12.2025
- ID
- 64094
Opis
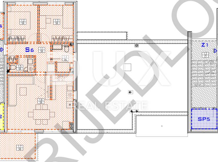
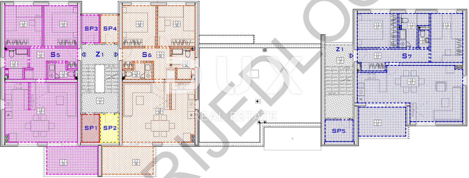
ZADAR, ZATON - Kvalitetna novogradnja s podnim grijanjem u Zatonu! S6
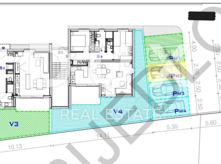
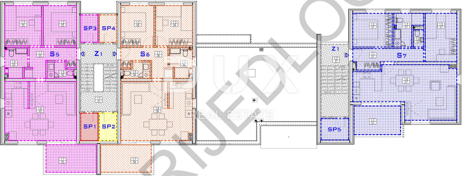
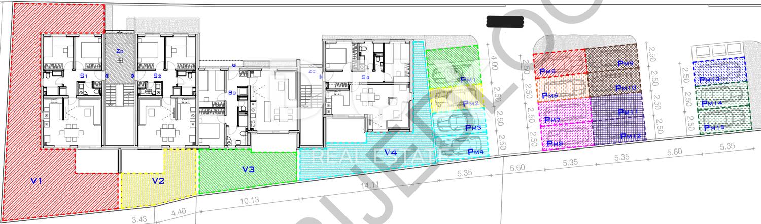
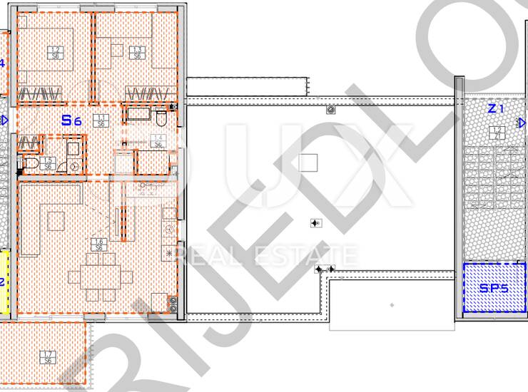
Prodaje se prekrasan stan u novogradnji smješten u mirnom naselju Zaton, idealan za obiteljski život ili opuštanje u modernom i ugodnom prostoru. Stan se nalazi na katu zgrade posebnog arhitektonskog dizajna, koja broji sveukupno deset stanova. Svaki stan ima svoj vlastiti dimnjak, što omogućuje individualno rješenje za grijanje ili ugradnju kamina, čineći prostor dodatno toplim i ugodnim.
Površina stana iznosi 74,78 m2 netto, a sastoji se od prostranog dnevnog boravka, moderne kuhinje, dvije udobne spavaće sobe, kupaonice te dodatnog WC-a. Iz dnevnog boravka izlazi se na lijepu lođu, savršenu za opuštanje uz jutarnju kavu ili večernje druženje.
Stan je opremljen podnim grijanjem te dizalicom topline, osiguravajući niske troškove i visoku energetsku učinkovitost tijekom cijele godine. Također, tu je i klima uređaj koji će vam omogućiti ugodnu temperaturu u ljetnim mjesecima. Uz stan dolazi i spremište te parkirno mjesto, što čini ovu nekretninu još praktičnijom za svakodnevni život.
Planirani završetak gradnje je na proljeće 2026.
Ovaj stan pruža sve što vam je potrebno za kvalitetan i udoban život. Ne propustite priliku postati vlasnikom ovog izuzetnog prostora – kontaktirajte nas za dogovor oko razgledavanja i dodatne informacije.
Poštovani klijenti, agencijska provizija naplaćuje se u skladu s Općim uvjetima poslovanja.
www.dux-nekretnine.hr/opci-u
Kontakt info
- Agencija
-
DUX NEKRETNINE
- Kontakt osoba
- Dux Nekretnine
- Telefon 1
- + 385 51 518... Prikaži broj
- Telefon 2
- + 385 91 480 ... Prikaži broj
- Adresa
- Tizianova 8
- Rijeka, Hrvatska
Slične nekretnine
ZADAR, ZATON - Atraktivna novogradnja s podnim grijanjem! S4
- 213.500€ 60 m2
ZADAR, ZATON - Atraktivna novogradnja s podnim grijanjem! S3
- 213.500€ 60 m2
ZADAR, ZATON - Atraktivna novogradnja s podnim grijanjem! S2
- 213.500€ 60 m2
ZADAR, ZATON - Atraktivna novogradnja s podnim grijanjem! S1
- 213.500€ 60 m2
ZADAR, ZATON - Vrhunska novogradnja 30 metara od plaže! S2
- 310.880€ 77 m2