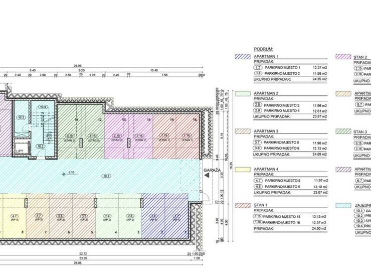
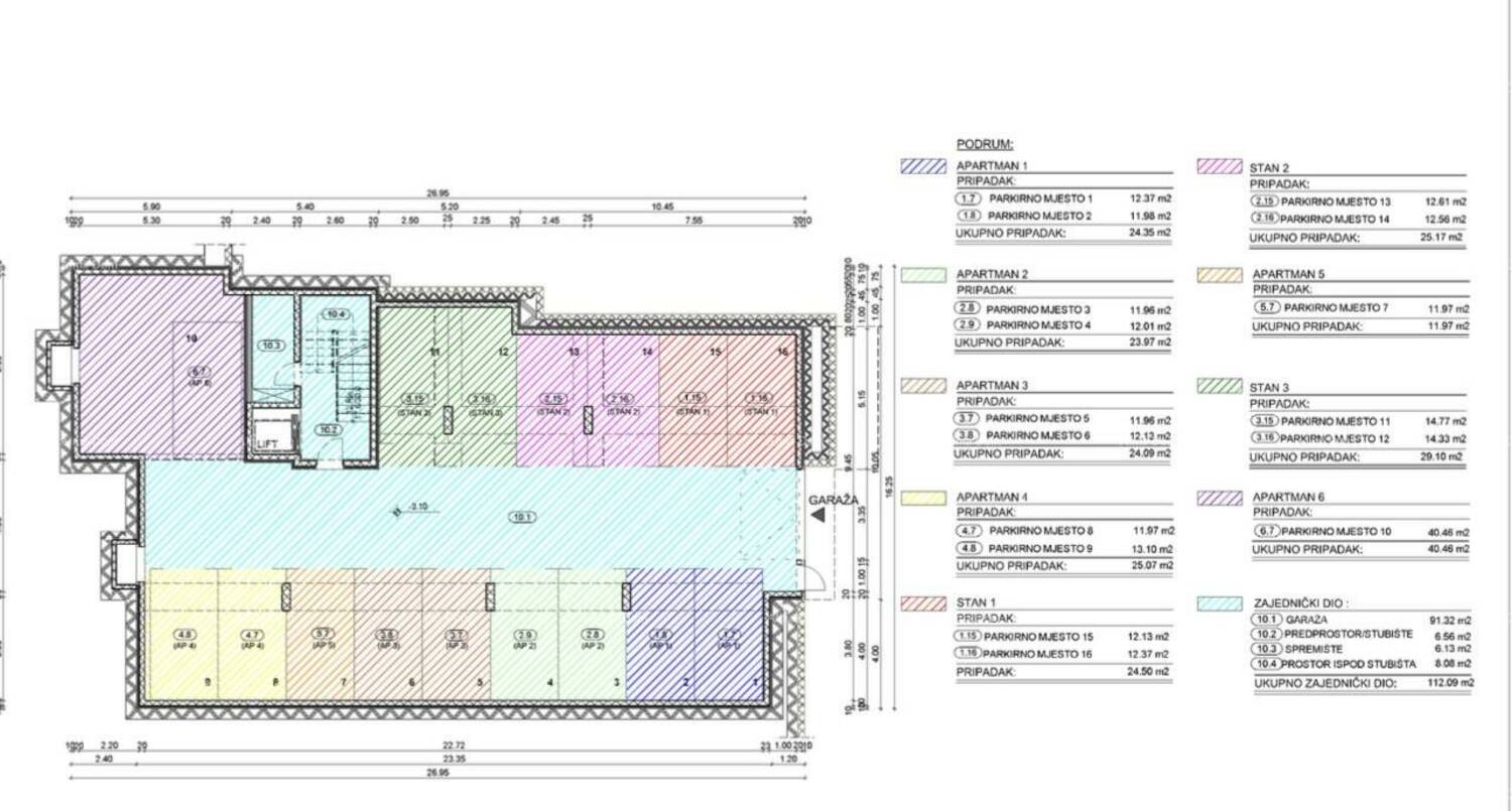
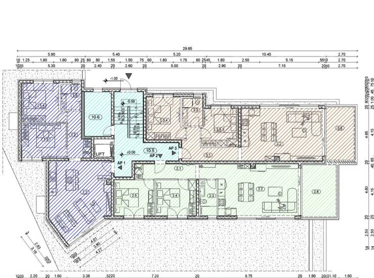
Novo u Ponudi! Luksuzna stambena jedinica od 9 stanova u Opatiji. Apartm... Opatija 690.000€ 10 615 €/m2 Novo 10 Tip Stan Površina 65 m2 Struktura 2 Detalji Tip Stan Struktura 2 Cijena 690.000€ Površina 65 m2 (10 615 €/m2) Površina zemljišta 91 Kat p Ukup. katova 4 Udaljenost od mora 750m Lift Da Garaža Da Ažuriran 17.12.2025 ID 97886 Opis Novo u Ponudi! Luksuzna stambena jedinica od 9 stanova u Opatiji. Apartman 1 nalazi se u prizemlju zgrade i sastojat će se od hodnika, kuhinje sa dnevnim boravkom i blagavaonicom, 2 spavaće sobe i kupaonice. Apartmanu pripadaju 2 parkirna mjesta. Gradnja ovog projekta počinje 15.9.2025., a planirani završetak je 12/2026. Nekretnina je udaljena 15 min šetnje od plaža. Za više informacija, molimo kontaktirajte: Azra + 385 91 611 5706... Prikaži broj + 385 98 420 885... Prikaži broj azra@almadominvest.com Kontakt podaci Kontakt info Agencija Alma Dom Kontakt osoba Alma Dom Telefon 1 + 385 52 213 332... Prikaži broj Telefon 2 + 385 52 210 160... Prikaži broj Adresa Istarska 10 Pula, Hrvatska Kontakt forma Vaše ime Telefon (opciono) Email Pitanje U sledeće (antibot) polje upišite broj 3 slovima