Novo u Ponudi! Luksuzna stambeno-poslovna jedinica od 9 stanova u Opatiji. ...

Opatija

1.305.279€

8 367 €/m2

Tip

Stan

Površina

156 m2

Struktura

4

Detalji

Tip
Stan
Struktura
4
Cijena
1.305.279€
Površina
156 m2 (8 367 €/m2)
Površina zemljišta
0
Kat
1
Ukup. katova
4
Udaljenost od mora
750m
Lift
Da
Garaža
Da
Parkirno mjesto
Da
Ažuriran
30.12.2025
ID
98559

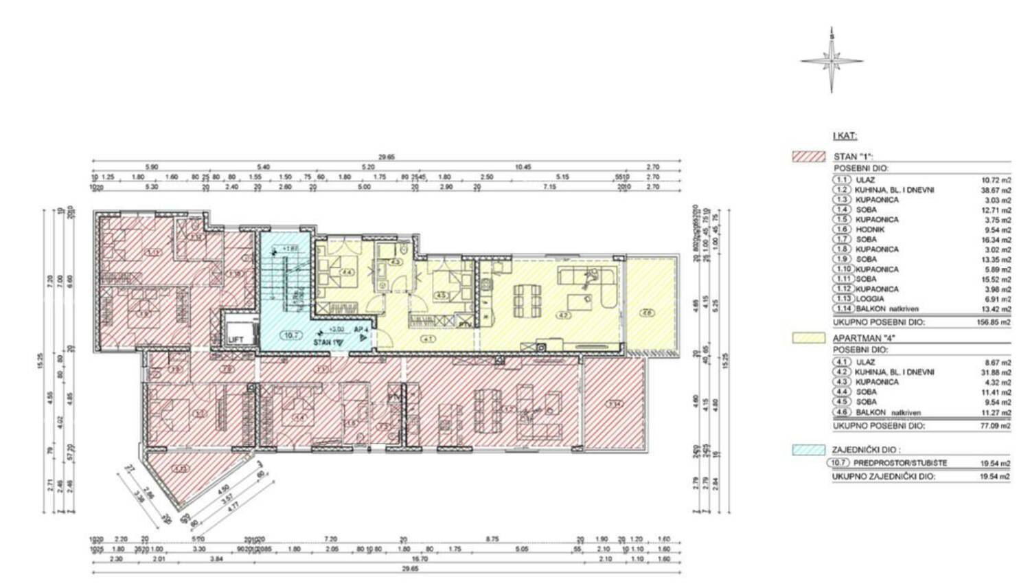
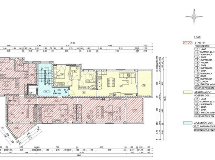
Opis

Novo u Ponudi!
Luksuzna stambeno-poslovna jedinica od 9 stanova u Opatiji.

Stan 1 nalazi se na 1.katu zgrade i sastojat će se od ulaza, kuhinje sa dnevnim boravkom i blagavaonicom, 4 spavaće sobe, 5 kupaonica, loggia-e i natkrivenog balkona.
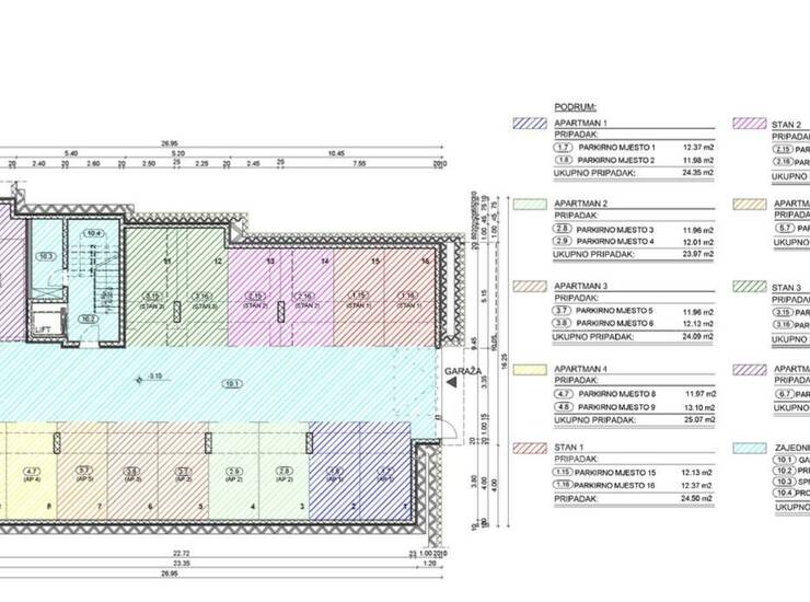
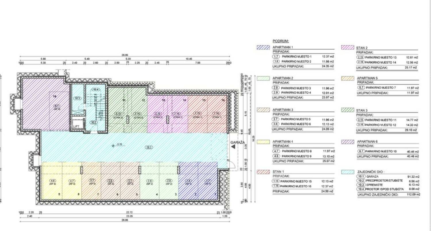
Apartmanu pripadaju 3 parkirna mjesta.
Gradnja ovog projekta počinje 15.9.2025., a planirani završetak je 15.09.2026.

Nekretnina je udaljena 15 min šetnje od plaža.

Za više informacija, molimo kontaktirajte:

Azra:
+ 385 91 611 ... Prikaži broj
+ 385 98 420... Prikaži broj
azra@almadominvest.com

Kontakt info

Agencija
Alma Dom
Kontakt osoba
Alma Dom
Telefon 1
+ 385 52 213... Prikaži broj
Telefon 2
+ 385 52 210... Prikaži broj
Adresa
Istarska 10
Pula, Hrvatska

Kontakt forma