Prodajemo moderne stanove u novom projektu, koji se sastoji od 4 zgrade, na...
Finida, Poreč
251.124€
5 124 €/m2
Tip
Stan
Površina
49 m2
Struktura
1
Detalji
- Tip
- Stan
- Struktura
- 1
- Cijena
- 251.124€
- Površina
- 49 m2 (5 124 €/m2)
- Površina zemljišta
- 0
- Kat
- 1
- Ukup. katova
- 4
- Udaljenost od mora
- 800m
- Lift
- Da
- Parkirno mjesto
- Da
- Ažuriran
- 19.03.2026
- ID
- 102048
Opis
Prodajemo moderne stanove u novom projektu, koji se sastoji od 4 zgrade, na odličnoj lokaciji u Poreču.
Projekt obuhvaća ukupno 67 stanova različitih veličina i rasporeda.
Stan se nalazi na 1 katu zgrade s 4 etaže.
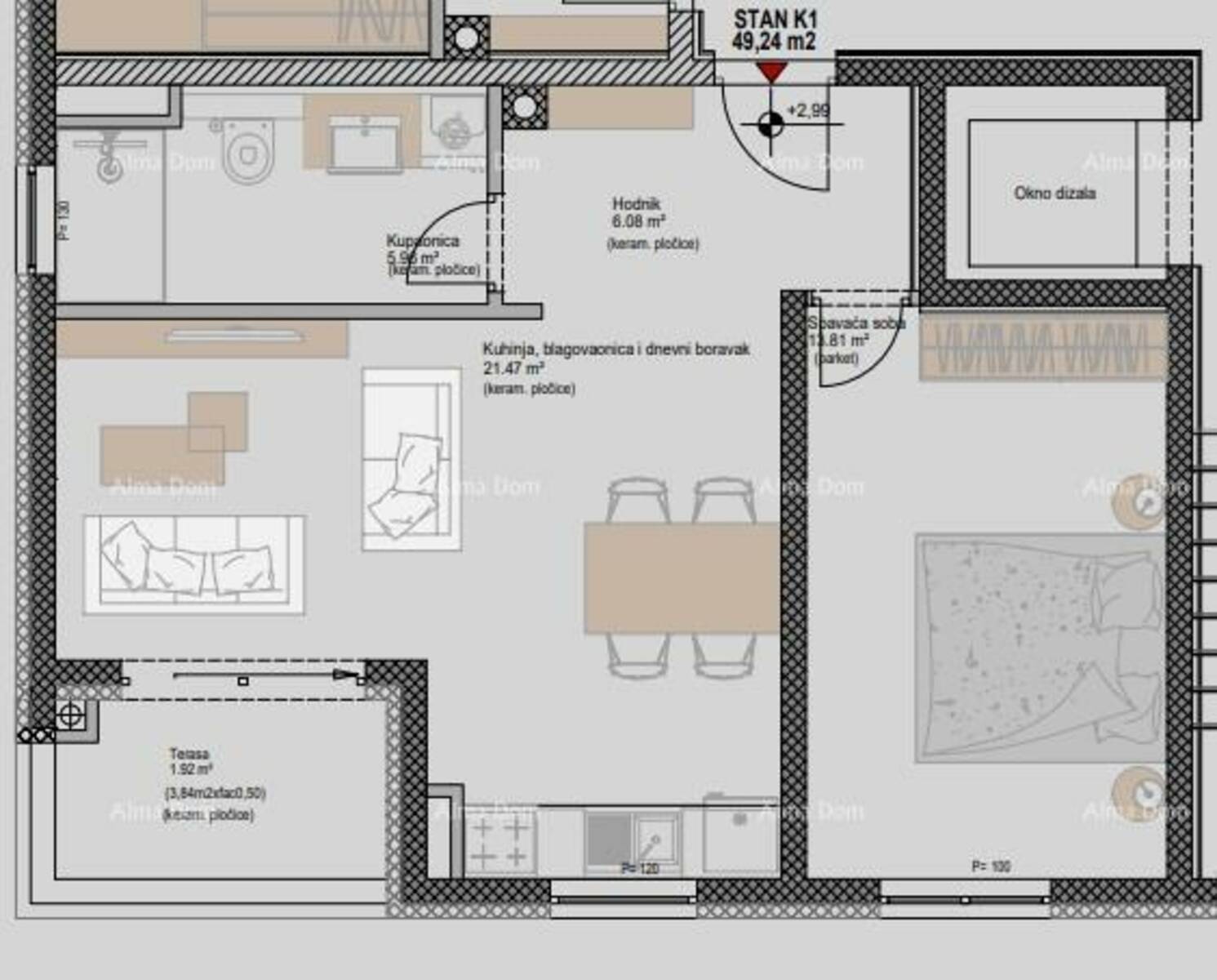
Stan K1, sastoji se od ulaznog hodnika, dnevnog boravka s kuhinjom i blagovaonom, spavaće sobe, kupaone i terase.
Tehnička oprema stana:
-Kvalitetna PVC stolarija s komarnicima i motoriziranim roletama
-Grijanje i hlađenje putem Daikin toplinske pumpe
-Električno podno grijanje u kupaonici
-Keramičke podne obloge Marazzi
Mogućnost kupnje različitih tipova parkirnih mjesta:
Podzemna garaža: 15.000 eura
Natkriveno parkirno mjesto s mogućnosću punjenja za el.vozila: 10.000 eura
Nenatkriveno parkirno mjesto: 5000 eura.
Podzemna etaža/garaža posjeduje 13 parkirnih mjesta, uključujući parkirno mjesto prilagođeno osobama s invaliditetom i 6 vanjskih parkirnih mjesta.
Predviđeni datum useljenja je: 01.07.2026. godine.
Za dodatne informacije, molimo kontaktirajte:
Azra:
+ 385 91 611 ... Prikaži broj
+ 385 98 420... Prikaži broj
azra@almadominvest.com
Kontakt info
- Agencija
-
Alma Dom
- Kontakt osoba
- Alma Dom
- Telefon 1
- + 385 52 213... Prikaži broj
- Telefon 2
- + 385 52 210... Prikaži broj
- Adresa
- Istarska 10
- Pula, Hrvatska