U Vabrigi, Istra, prodajemo jednosoban stan oznake B3 od 52,86 m2 na 3. kat...
Poreč
273.020€
5 250 €/m2
Tip
Stan
Površina
52 m2
Struktura
1
Detalji
- Tip
- Stan
- Struktura
- 1
- Cijena
- 273.020€
- Površina
- 52 m2 (5 250 €/m2)
- Površina zemljišta
- 0
- Kat
- 3
- Ukup. katova
- 4
- Udaljenost od mora
- 0m
- Lift
- Da
- Parkirno mjesto
- Da
- Ažuriran
- 25.01.2026
- ID
- 97573
Opis
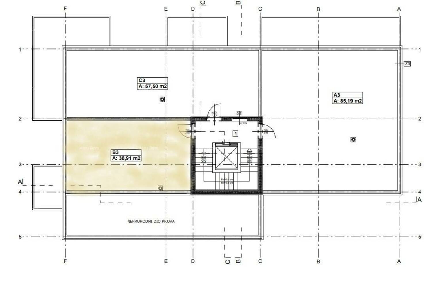
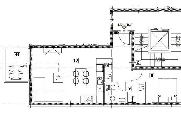
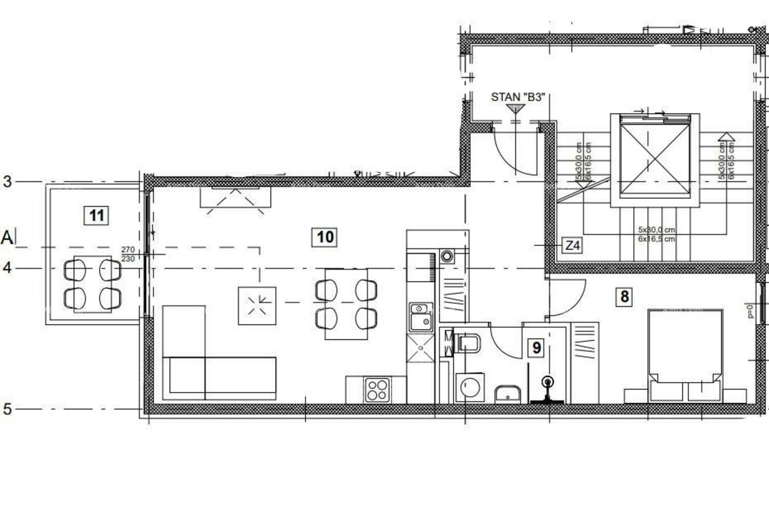
U Vabrigi, Istra, prodajemo jednosoban stan oznake B3 od 52,86 m2 na 3. katu. Stanu pripada i krovna terasa od 39 m2 s koje se pruža predivan pogled na more.
Stan se nalazi u zgradi od ukupno 23 stana, zgrada će biti opremljena liftom.
Stan B3 površine 52,86 m² sastoji od:
- predsoblje, dnevni boravak , kuhinja i blagovaonica 35,06 m2
- natkrivena terasa 5,16 m2*koef 0.50=2,58 m2
- spavaća soba od 11,19 m2,
- kupaonica od 4,03m2
Stanu također pripada spremište (1.82m²m2*koef.0,50=0,91m2) u prizemlju zgrade, krovna terasa (39m²*koef.0,25=9,70m2) i parkirno mjesto.
U svakoj prostoriji je predviđen klima uređaji, te podno grijanje u kupaonici.
Kupac je oslobođen od plaćanja poreza na promet nekretnina u iznosu od 3%.
Stojimo na raspolaganju za dodatne informacije i razgled
+ 385 91 611... Prikaži broj
+ 385 98 420... Prikaži broj
azra@almadominvest.com
Kontakt info
- Agencija
-
Alma Dom
- Kontakt osoba
- Alma Dom
- Telefon 1
- + 385 52 213... Prikaži broj
- Telefon 2
- + 385 52 210... Prikaži broj
- Adresa
- Istarska 10
- Pula, Hrvatska