Hrvatska, Pag, Povljana, Luksuzni apartmani, 90.96 m2 m2, Prvi red do mora, S11

Povljana

463.000€

5 144 €/m2

Tip

Stan

Površina

90 m2

Struktura

3.5

Detalji

Tip
Stan
Struktura
3.5
Cijena
463.000€
Površina
90 m2 (5 144 €/m2)
Ažuriran
25.04.2026
ID
92376

Opis

OTOK PAG-POVLJANA

Prodaje se dvoetazan trosoban stan na 2.katu u novogradnji.

Stan se sastoji od:

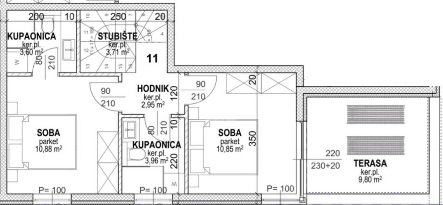
2.kat:

ulaznog hodnika:1.98m2

wc-a:1.44m2

dnevnog boravka/blagovaone/kuhinje:28,84m2

balkona:9,80m2

stubišta:4.5m2

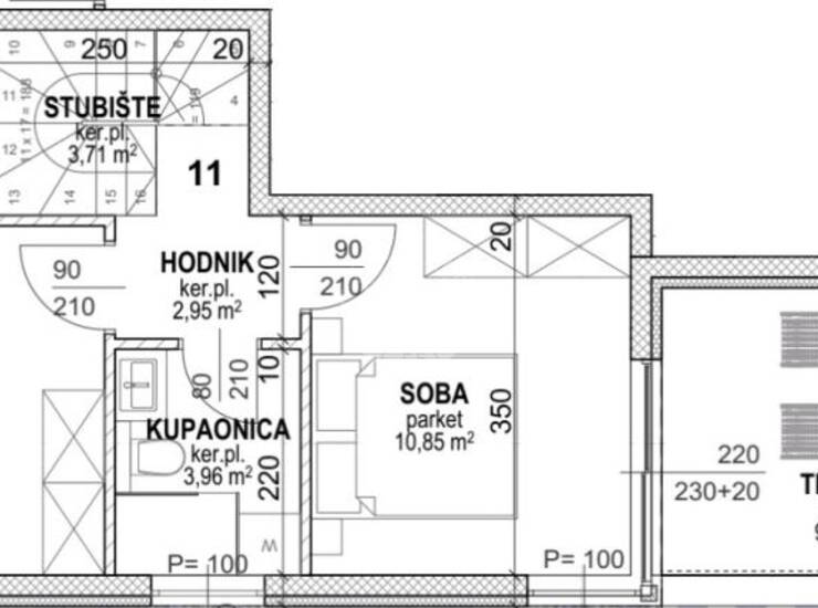
3.kat:

stubišta:3,71m2

hodnika:2,95m2

spavaće sobe1:10,88m2

kupaonice1:3,60m2

spavaće sobe2:10,85m2

kupaonice2:3,96m2

spremišta:2.13m2×0.75=1.6m2

_________________________

UKUPNO:90.96m2

Uz stan je obavezna kupnja vanjskog ili garažnog parkirnog mjesta.

Vanjsko parkirno mjesto:18.000€

Garažno parkirno mjesto:35.000€

O PROJEKTU:

Početak gradnje listopad 2025g. a završetak gradnje prosinac 2026g.

Građevina stambene namjene s 12 stambenih jedinica.

Predviđene su stambene jedinice sa jednom spavaćom sobom, dvije ili tri.

Vizija je izgraditi objekt koji se odmiče od konkurencije i konfekcije, upravo sa svojim izgledom, sadržajima, kvalitetom izgradnje te posebice opremanjem stanova, zajedničkih dijelova i sveobuhvatne završne obrade.

Objekt je interpoliran u smjeru juga sa pogledom na more sa svake etaže.

Predviđena je izgradnja po svim zadnjim trendovima u graditeljstvu, upotrebom materijala isključivo vrhunske kvalitete.

To se također odnosi na opremanje stambenih jedinica gdje se ugrađuju isključivo prvoklasni parketi, vanjska i unutarnja stolarija, sanitarija, keramika.

Zgrada ima lift.

SIGURNOST i GARANCIJA:

stabilni investitor, građev

Kontakt info

Cro Living
Agencija
CRO LIVING
Kontakt osoba
Marija Božić
Telefon 1
+ 385 91 617 ... Prikaži broj
Adresa
Jurišićeva ul. 19/1
Zagreb, Hrvatska

Kontakt forma