OTOK PAG, POVLJANA - PRILIKA! Novoizgrađeni apartman uz more!
Povljana
220.000€
3 666 €/m2
Tip
Stan
Površina
60 m2
Struktura
3
Detalji
- Tip
- Stan
- Struktura
- 3
- Cijena
- 220.000€
- Površina
- 60 m2 (3 666 €/m2)
- Kat
- 1
- Grijanje
- Podno grijanje/Dizalica topline
- Terasa
- Da
- Udaljenost od mora
- 300m
- Parkirno mjesto
- Da
- Ažuriran
- 05.03.2026
- ID
- 103395
Opis
OTOK PAG, POVLJANA - PRILIKA! Novoizgrađeni apartman uz more!
ATRAKTIVNA NOVOGRADNJA – 300 m od mora, Povljana (otok Pag)
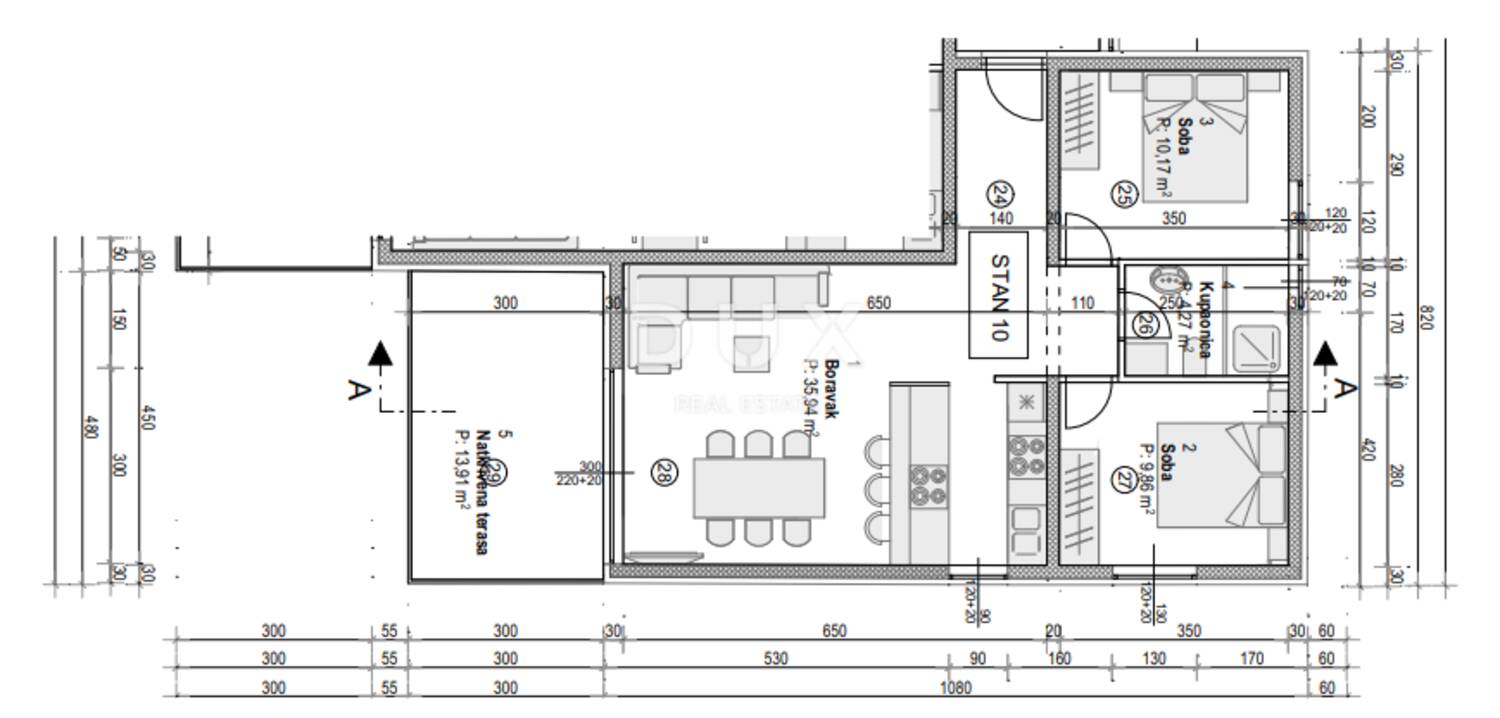
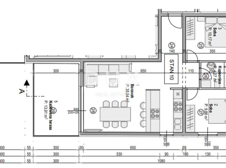
Prodaje se moderan stan oznake "Stan 10", smješten na 1. katu ekskluzivne novogradnje u mirnom i sunčanom dijelu Povljane. Ova nekretnina predstavlja savršen spoj funkcionalnosti i mediteranskog stila života.
Osnovne karakteristike:
Površina stana: 60,24 m² (maksimalno iskorišten tlocrt)
Terasa: Prostrana natkrivena terasa od čak 13,91 m² – idealna za uživanje u ljetnim večerima.
Parking: Vlastito parkirno mjesto (12,15 m²) uključeno u cijenu.
Lokacija: Mirna ulica, svega 300 metara lagane šetnje do kristalno čistog mora.
Raspored prostorija:
Unutrašnjost stana osmišljena je moderno i prozračno:
Open-concept dnevni boravak s kuhinjom i blagovaonicom (35,94 m²)
Udobna spavaća soba (10,17 + 9,86 m²)
Kupaonica (4,26 m²)
Zašto odabrati Povljanu i otok Pag?
Povljana je smještena na južnom dijelu otoka Paga i pravi je dragulj za one koji traže mir, čisto more i netaknutu prirodu. Mjesto nudi sve sadržaje potrebne za život i turizam – od izvrsnih restorana i trgovina do uređenih šetnica.
Vrhunska povezanost:
Cestovni pristup: Paški most omogućuje brz dolazak automobilom u bilo koje doba godine.
Zračna povezanost: Zračna luka Zadar udaljena je svega sat vremena vožnje.
Nautičke linije: Trajektna linija Žigljen–Prizna te brze brodske linije prema Rijeci, Rabu i Lošinju.
Investicijski potencijal: Zbo
Kontakt info
- Agencija
-
DUX NEKRETNINE
- Kontakt osoba
- Dux Nekretnine
- Telefon 1
- + 385 51 518... Prikaži broj
- Telefon 2
- + 385 91 480 ... Prikaži broj
- Adresa
- Tizianova 8
- Rijeka, Hrvatska
Slične nekretnine
OTOK PAG, POVLJANA - Moderan stan s vrtom u novogradnji S1
- 229.000€ 58 m2
OTOK PAG, POVLJANA - Predivan apartman 47 m2, 1. red do mora
- 230.000€ 47 m2
PAG, POVLJANA - PRILIKA! Novogradnja 200m od plaže! S5
- 232.767€ 62 m2
PAG, POVLJANA - PRILIKA! Novogradnja 200m od plaže! S4
- 239.390€ 64 m2
OTOK PAG, POVLJANA, 2s+db stan u vrhunskoj novogradnji
- 242.532€ 70 m2