PAG, POVLJANA - Stan u blizini mora s galerijom, S8
Povljana
320.400€
3 769 €/m2
Tip
Stan
Površina
85 m2
Struktura
2
Detalji
- Tip
- Stan
- Struktura
- 2
- Cijena
- 320.400€
- Površina
- 85 m2 (3 769 €/m2)
- Kat
- 2
- Udaljenost od mora
- 250m
- Ažuriran
- 17.01.2026
- ID
- 53595
Opis
PAG, POVLJANA - Stan u blizini mora s galerijom, S8
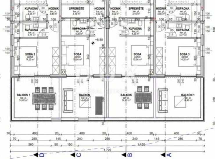
Prodaje se stan na drugom katu veličine cca 85,36 m2 sa spremištem na 250m od mora.
Stan se sastoji od: hodnika, kupaonice, kuhinje, dnevnoga boravka i blagavaonice, spavaće sobe, balkona i galerije s terasom (14,40 m2). Osim toga, stanu pripada i vanjsko parkirno mjesto, a garažno je moguće kupiti.
Fasada u kombinaciji toplinske izolacije mineralne vune (12 cm) i DEMIT završnog sloja.
Pregradni unutarnji zidovi od opeke (cigle) debljine 10 cm.
Razred A energetske učinkovitosti zgrade.
PVC stolarija s Low-E dvostrukim izo-staklima s komarnicima i električnim roletnim sustavom.
Grijanje i hlađenje na električnu energiju (Multi Split inverterski sustav).
Hidroizolacija, toplinska te izolacija od buke.
Kupac ne plaća porez na promet nekretnina.
Poštovani klijenti, agencijska provizija se naplaćuje u skladu s Općim uvjetima poslovanja.
https://www.dux-nekretnine.hr/opci-uvjeti-poslovanja
ID KOD AGENCIJE: 29853
DUX Nekretnine
Mob: + 385 91 480 ... Prikaži broj
Tel: + 385 99 640 ... Prikaži broj
E-mail: info@dux-nekretnine.hr
www.dux-nekretnine.hr
Kontakt info
- Agencija
-
DUX NEKRETNINE
- Kontakt osoba
- Dux Nekretnine
- Telefon 1
- + 385 51 518... Prikaži broj
- Telefon 2
- + 385 91 480 ... Prikaži broj
- Adresa
- Tizianova 8
- Rijeka, Hrvatska
Slične nekretnine
PAG, POVLJANA - PRILIKA! Novogradnja 200m od plaže! S8
- 320.864€ 86 m2
PAG, POVLJANA - Stan u blizini mora s vrtom, S2
- 322.800€ 87 m2
PAG, POVLJANA - Stan u blizini mora s vrtom, S3
- 324.100€ 82 m2
PAG, POVLJANA - Stan u blizini mora, S5
- 306.450€ 85 m2
PAG, POVLJANA - PRILIKA! Novogradnja 200m od plaže! S3
- 293.854€ 79 m2
OTOK PAG, POVLJANA - Dvosobni stan s vrtom u novogradnji
- 290.150€ 82 m2
OTOK PAG, POVLJANA - Dvosobni stan s vrtom u novogradnji
- 290.150€ 82 m2
Povljana - prodaja stana u novogradnji, 100 m od mora!
- 285.000€ 70 m2
Povljana - prodaja stana u novogradnji, 100 m od mora!
- 285.000€ 70 m2
PAG, POVLJANA - PRILIKA! Novogradnja 200m od plaže! S1
- 271.580€ 73 m2